Перейти до публікації
Пошук в
  • Додатково...
Шукати результати, які містять...
Шукати результати в...

Тендер на битумку

vale3

Рекомендовані повідомлення

На середину августа нужна бригада на монтаж битумной черепицы Шинглас

Готовность стропилки 85% (нужно докрыть террассу)

Угол наклона 42 градуса

- набить мембрану

- брус

- контрбрус

- осб

- битумку с всеми элементами

Площадь крыши - 148 квадратов

Также нужно доложить фронтоны из газоблока до 2х-3х кубов

доделать дымоходы залить пару перемычек из бетона

Фото того что есть сейчас прикрепляю

Цены на почту

edgetolife(собака)ukr.net

1089335328_0195.thumb.jpg.a45e4ad72b101680f7c144260213163b.jpg

1648859555_0196.thumb.jpg.cfb5ba0034b1e755a320b71425525f01.jpg

509644053_0197.thumb.jpg.d73bbac2048ec45e6d0211e86af367ba.jpg

1389067029_0198.thumb.jpg.ad5c941ad7eb0abf4248c51e150970f2.jpg

785046738_0199.thumb.jpg.83882a2b4a6ad40a9baecbc34560c0d9.jpg

Змінено користувачем vale3
Посилання на коментар
Поділитися на інших сайтах

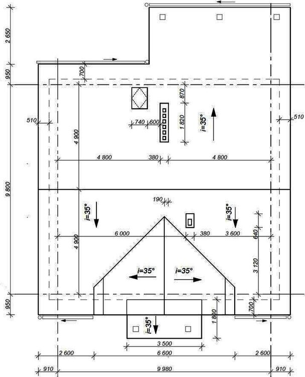
На початок вересня потрібна бригада (можна і три гада:D) на монтаж даху.

Об"єм робіт:

- монтаж кроквяної (стропильной) конструкції;

- монтаж євробар"єру, контрбруса, обрешітки, OSB;

- монтаж бітумної черепиці Katepal (super Rocky) - 200 м2 із усіма комплектуючими.

 

Свої пропозиції з фото виконаних робіт прошу надсилати на адресу в підписі або в особисті повідомлення до 01.09.12.

Місце виконання робіт - с. Зазим"я, Броварський р-н.

Креслення додаю!

Дякую!

242058034_1-2.thumb.jpg.65f07965f9d942999c978fdf475926a9.jpg

1084432689_3-4.thumb.jpg.2aee6107c75e5e337038772878f2095d.jpg

477972893_.thumb.jpg.02bab949155660abe188a5c53eecff6e.jpg

Посилання на коментар
Поділитися на інших сайтах

Потреба у бригаді й досі актуальна!

Також додатково потрібно докласти біля 6-7м3 газоблоку на фронтони та біля 2500 шт цегли (вентканали та комин).

Вот що маємо на сьогодні і що має буди у фіналі.

DSC03620.thumb.JPG.936bd180ccbfe371b7401731081112f2.JPG

DSC03588.thumb.JPG.59d865502a91d11530cd70d8a9f17c7e.JPG

DSC03596.thumb.JPG.078311b64e0d5dd6c480b0398efff457.JPG

DSC03594.thumb.JPG.5a3dbf683c96ef9efba90dbf96a1292b.JPG

739875529_.thumb.jpg.c61add8fa1ab2bfe007e95da84e98ec2.jpg

Посилання на коментар
Поділитися на інших сайтах

Створіть акаунт або увійдіть у нього для коментування

Ви маєте бути користувачем, щоб залишити коментар

Створити акаунт

Зареєструйтеся для отримання акаунта. Це просто!

Зареєструвати акаунт

Увійти

Вже зареєстровані? Увійдіть тут.

Увійти зараз
×
×
  • Створити...