Перейти до публікації
Пошук в
  • Додатково...
Шукати результати, які містять...
Шукати результати в...

Заливка фундамента

Upletai

Рекомендовані повідомлення

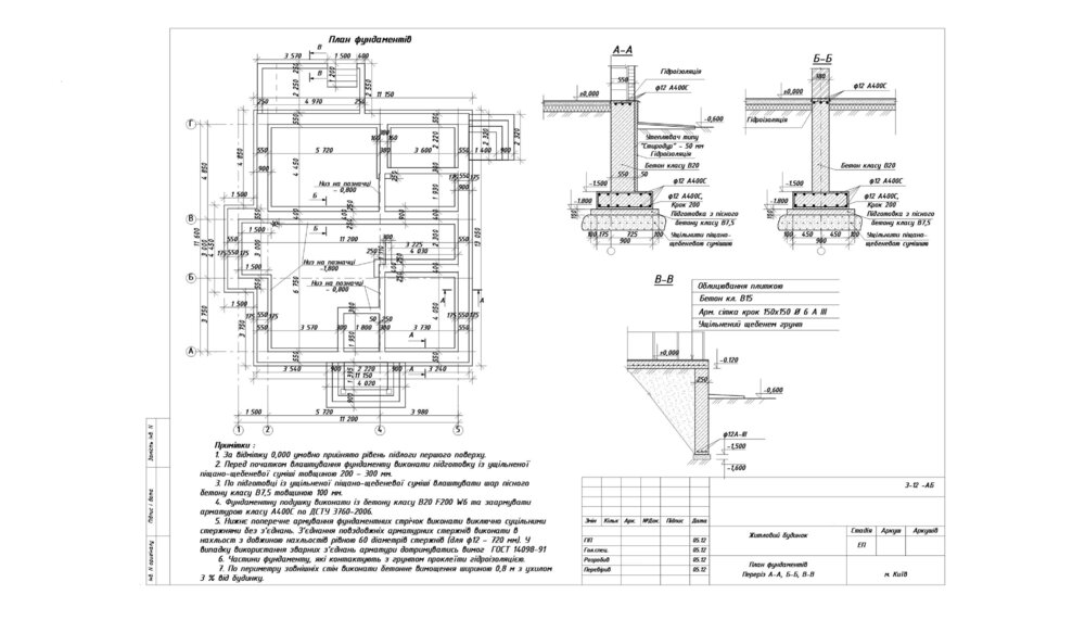
Добрый день, ищу бригаду для изготовления фундамента "под ключ". Местонахождение - с. Крюковщина.

324815490_.thumb.jpg.95a96029495a8b68e4d535c86b24a36a.jpg

Посилання на коментар
Поділитися на інших сайтах

Створіть акаунт або увійдіть у нього для коментування

Ви маєте бути користувачем, щоб залишити коментар

Створити акаунт

Зареєструйтеся для отримання акаунта. Це просто!

Зареєструвати акаунт

Увійти

Вже зареєстровані? Увійдіть тут.

Увійти зараз
×
×
  • Створити...