genesha Опубліковано: 4 жовтня 2012 Поділитись Опубліковано: 4 жовтня 2012 Нужна бригада для строительства застекленной беседки с навесом. Большая Даниловка. Материалов нет. Типовые из оцилиндрованного бревен не нравятся. Эскиз прилагаю. Посилання на коментар Поділитися на інших сайтах More sharing options...
genesha Опубліковано: 5 жовтня 2012 Автор Поділитись Опубліковано: 5 жовтня 2012 Уточняю- беседка деревянная, крыша- под битумкой.. Посилання на коментар Поділитися на інших сайтах More sharing options...
genesha Опубліковано: 8 жовтня 2012 Автор Поділитись Опубліковано: 8 жовтня 2012 примерный вариант беседки, навес- над шеей погреба. Крыша может быть попроще. Посилання на коментар Поділитися на інших сайтах More sharing options...
AndyAntonov Опубліковано: 1 листопада 2012 Поділитись Опубліковано: 1 листопада 2012 Люди, с рекламой — в соответствующий раздел. Или в личке подробности выясняйте. Посилання на коментар Поділитися на інших сайтах More sharing options...
Романнн Опубліковано: 1 листопада 2012 Поділитись Опубліковано: 1 листопада 2012 Я бы строил отдельно беседку и отдельно погреб. Как-то корявенько совмещено. Посилання на коментар Поділитися на інших сайтах More sharing options...
genesha Опубліковано: 3 листопада 2012 Автор Поділитись Опубліковано: 3 листопада 2012 Задумка была спрятать шею погреба под крышу, увести её из обзора. И,таки,получается задуманное. Сейчас строительство на этапе детального просчета.В проекте от архитектора корявенько уже не кажется. 1 Посилання на коментар Поділитися на інших сайтах More sharing options...
vash.stroitel Опубліковано: 12 січня 2013 Поділитись Опубліковано: 12 січня 2013 Нужна бригада для строительства застекленной беседки с навесом. Большая Даниловка. Материалов нет. Типовые из оцилиндрованного бревен не нравятся. Эскиз прилагаю. Могу решить ваш вопрос. Есть что предложить. Даю гарантию Посилання на коментар Поділитися на інших сайтах More sharing options...
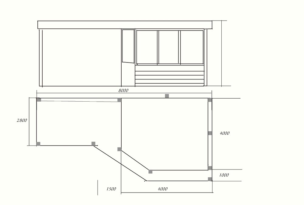
Деревянщик Опубліковано: 13 січня 2013 Поділитись Опубліковано: 13 січня 2013 Вот подобное что-то проектировал Посилання на коментар Поділитися на інших сайтах More sharing options...
te_str Опубліковано: 31 січня 2013 Поділитись Опубліковано: 31 січня 2013 Как дела с проектом беседки? Посилання на коментар Поділитися на інших сайтах More sharing options...
genesha Опубліковано: 1 лютого 2013 Автор Поділитись Опубліковано: 1 лютого 2013 Извиняюсь за задержку ответов. Строительство идет. Тему считаю исчерпаной. Посилання на коментар Поділитися на інших сайтах More sharing options...
Технолог Опубліковано: 1 лютого 2013 Поділитись Опубліковано: 1 лютого 2013 С Обновкой. ТС на крыше все таки решили не экономить? Фасад будите отделывать? Посилання на коментар Поділитися на інших сайтах More sharing options...
TexnoG Опубліковано: 3 лютого 2013 Поділитись Опубліковано: 3 лютого 2013 Извиняюсь за задержку ответов. Строительство идет. Тему считаю исчерпаной. Такс а де благодарности мне??) ну и пузырь канечна Посилання на коментар Поділитися на інших сайтах More sharing options...
genesha Опубліковано: 4 лютого 2013 Автор Поділитись Опубліковано: 4 лютого 2013 Пузырь при встрече. 1000 благодарностей за ценный контакт. На крышу вместо планируемой битумки положили ППЧ- объемно. Фасад планируем под "старое дерево". Посилання на коментар Поділитися на інших сайтах More sharing options...
Рекомендовані повідомлення
Створіть акаунт або увійдіть у нього для коментування
Ви маєте бути користувачем, щоб залишити коментар
Створити акаунт
Зареєструйтеся для отримання акаунта. Це просто!
Зареєструвати акаунтУвійти
Вже зареєстровані? Увійдіть тут.
Увійти зараз