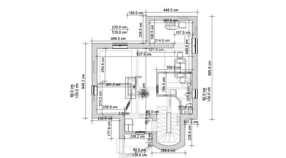
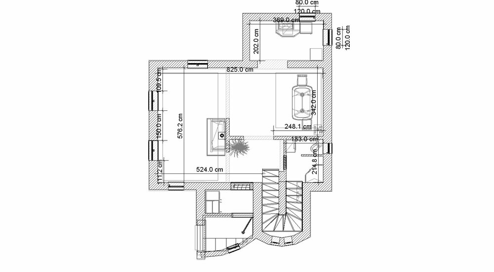
Artemis Опубліковано: 11 жовтня 2012 Поділитись Опубліковано: 11 жовтня 2012 Нужно сделать разводку отопления и воды и канализации по дому. Посилання на коментар Поділитися на інших сайтах More sharing options...
Рекомендовані повідомлення
Створіть акаунт або увійдіть у нього для коментування
Ви маєте бути користувачем, щоб залишити коментар
Створити акаунт
Зареєструйтеся для отримання акаунта. Це просто!
Зареєструвати акаунтУвійти
Вже зареєстровані? Увійдіть тут.
Увійти зараз