Pasha Опубліковано: 11 грудня 2008 Поділитись Опубліковано: 11 грудня 2008 В большей мере интересует ваше мнение. Если будут идеи второго этажа, буду признателен. Изменения по первому этажу делать не выйдет ибо уже лежит фундамент. В данный момент думаю над вторым этажем. Спасибо! Посилання на коментар Поділитися на інших сайтах More sharing options...
voffka75 Опубліковано: 12 грудня 2008 Поділитись Опубліковано: 12 грудня 2008 А размеры домика какие? на фиг на 2 этаже столько комнат? особенно второй зал...сделайте "второй свет", если нравиться конечно такая фишка... Посилання на коментар Поділитися на інших сайтах More sharing options...
Larisa Опубліковано: 12 грудня 2008 Поділитись Опубліковано: 12 грудня 2008 В большей мере интересует ваше мнение. Если будут идеи второго этажа, буду признателен. Изменения по первому этажу делать не выйдет ибо уже лежит фундамент. В данный момент думаю над вторым этажем. Спасибо! Интересно. А внешний вид и общие размеры есть? Я тоже подбираю варианты двухсемейного домика (пока только подбираю). Правда мне нужен с неравноценными квартирами (1 большая+1 маленькая). Какой у вас участок? Посилання на коментар Поділитися на інших сайтах More sharing options...
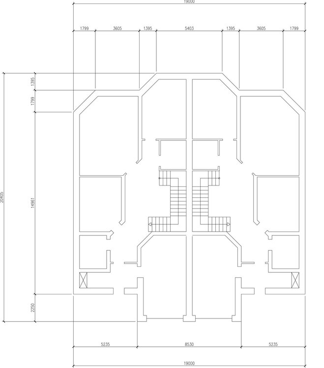
Pasha Опубліковано: 12 грудня 2008 Автор Поділитись Опубліковано: 12 грудня 2008 участок 27 х 56 Посилання на коментар Поділитися на інших сайтах More sharing options...
LaRsoN Опубліковано: 12 грудня 2008 Поділитись Опубліковано: 12 грудня 2008 Интересно. А внешний вид и общие размеры есть? Я тоже подбираю варианты двухсемейного домика (пока только подбираю). Правда мне нужен с неравноценными квартирами (1 большая+1 маленькая). Какой у вас участок? Посмотрите на наш вариант. У нас на первом этаже часть дома для мамы как полноценная 1 комн кв,тамбур общий, но можно сделать раздельно Посилання на коментар Поділитися на інших сайтах More sharing options...
Larisa Опубліковано: 12 грудня 2008 Поділитись Опубліковано: 12 грудня 2008 В прикрепленном файле размеры плохо видно (или я слепая уже от компьютера). Напишите просто цифрами. LaRsoN (не знаю как правильно вас называть). Ваш домик посмотрела, очени симпатичный и органичный. Но, я стараюсь привязываться к плитам перекрытия и тяготею к проектам "кубики-коробочки" (мне кажется, что они дешевле получаются и проще строить). Посилання на коментар Поділитися на інших сайтах More sharing options...
Олег-дом Опубліковано: 12 грудня 2008 Поділитись Опубліковано: 12 грудня 2008 А что тут можно сказать??? Шикарно!!! По доброму завидую Вам. Посилання на коментар Поділитися на інших сайтах More sharing options...
Pasha Опубліковано: 12 грудня 2008 Автор Поділитись Опубліковано: 12 грудня 2008 А что тут можно сказать??? Шикарно!!! По доброму завидую Вам. Олег, а что именно вам понравилось? Мне например самому не все нравится, но не знаю как по другому сделать. Особенно второй этаж. Посилання на коментар Поділитися на інших сайтах More sharing options...
Larisa Опубліковано: 12 грудня 2008 Поділитись Опубліковано: 12 грудня 2008 Олег, а что именно вам понравилось? Мне например самому не все нравится, но не знаю как по другому сделать. Особенно второй этаж. Размеры рассмотрела, дом большущий. Попробую вложить план 2 эт. одного дома. Он совсем не похож на ваш вариант, но мне нравится функциональные решения спален (то, что каждое помещение разделено собственно на спальню и комнату). Может и вам, что-то наподобие нарисовать. Посилання на коментар Поділитися на інших сайтах More sharing options...
Larisa Опубліковано: 12 грудня 2008 Поділитись Опубліковано: 12 грудня 2008 А вообще-то, при внимательном рассмотрении, мне ваш второй этаж очень даже нравится. Я бы только из залы сделала бы игровую с выходом из двух детских, или спортзал. Ну, и может, от кабинета "оттяпала" кусочек на гардеробную с выходом из спальни. Или, как вариант, на будущее, кабинет и спальню сделала бы мужской и женской территорией с дверью между ними. Знаете, грустно осознавать, но когда-то мы постареем, а пожилые супруги (если им позволяет территория) спят как правило раздельно. Посилання на коментар Поділитися на інших сайтах More sharing options...
LaRsoN Опубліковано: 15 грудня 2008 Поділитись Опубліковано: 15 грудня 2008 В прикрепленном файле размеры плохо видно (или я слепая уже от компьютера). Напишите просто цифрами. LaRsoN (не знаю как правильно вас называть). Ваш домик посмотрела, очени симпатичный и органичный. Но, я стараюсь привязываться к плитам перекрытия и тяготею к проектам "кубики-коробочки" (мне кажется, что они дешевле получаются и проще строить). Меня уже назвали У нас с плитами всё в порядке, монолитить ничего не будем. А вообще на вкус и цвет...Дешевле-на сколько? А что на Ваш взгляд у нас сложного? Я тоже пересмотрела двухсемейные проекты, но там всё зеркальное отображение. И зачем для 1 человека 150 м2. Поэтому нам рисовал архитектор... Удачи Вам в поиске Посилання на коментар Поділитися на інших сайтах More sharing options...
LaRsoN Опубліковано: 15 грудня 2008 Поділитись Опубліковано: 15 грудня 2008 Размеры рассмотрела, дом большущий. Попробую вложить план 2 эт. одного дома. Он совсем не похож на ваш вариант, но мне нравится функциональные решения спален (то, что каждое помещение разделено собственно на спальню и комнату). Может и вам, что-то наподобие нарисовать. А на какое количество проживающих рассчитан этот второй этаж? И зачем возле каждой спальни комната? Посилання на коментар Поділитися на інших сайтах More sharing options...
Larisa Опубліковано: 16 грудня 2008 Поділитись Опубліковано: 16 грудня 2008 А на какое количество проживающих рассчитан этот второй этаж? И зачем возле каждой спальни комната? Не знаю. Это не мой проект. Я только в поиске. Мне он просто повстречался в процессе поиска. Судя по всему дом большущий. Мне он понравился, но его реализация, по моему, для богатых людей. Мне как раз и понравилось то, что возле каждой спальни комната. Возможно это много для супружеской спальни, где только ночуют (хотя в первой комнате можно сделать кабинет). Но, для детских - это было бы здорово. Потому как, играть, учиться, принимать друзей и спать в одной комнате можно. Но, лучше делать это в раздельных. Сама выросла в детской 9 кв.м.: развернуться негде,не то, что подружек пригласить. Посилання на коментар Поділитися на інших сайтах More sharing options...
someone Опубліковано: 10 січня 2009 Поділитись Опубліковано: 10 січня 2009 Ооочень большой дом .Ооочень большие комнаты . Если заложен фундамент и выгнали 1 эт будет тяжеловато что-то существенно изменить... Посилання на коментар Поділитися на інших сайтах More sharing options...
beduin Опубліковано: 10 січня 2009 Поділитись Опубліковано: 10 січня 2009 дом действительно большой,на 2-м этаже зал считаю лишний,можно уменьшить площадь второго этажа,если вам это приемлемо и позволяют конструкции,например над гаражем сделать трассу или просто накрыть кровлю и перегородки в комнатах можно немного посмещать необязательно делать строго над стенами первого этажа я имею ввиду самонесущие стены Посилання на коментар Поділитися на інших сайтах More sharing options...
Yanina Опубліковано: 14 січня 2009 Поділитись Опубліковано: 14 січня 2009 Я бы спальню и кабинет 22м поменяла местами (над гаражем как-то неуютно, холодно), над кухней сделала бы хозяйскую ванную комнату - чтобы с окном. Между кабинетом и спальней - гардеробную, с выходом из спальни. А там, где сейчас с/у 7м - кладовую, и поменьше, чтобы в холе больше пространства было. Посилання на коментар Поділитися на інших сайтах More sharing options...
Рекомендовані повідомлення
Створіть акаунт або увійдіть у нього для коментування
Ви маєте бути користувачем, щоб залишити коментар
Створити акаунт
Зареєструйтеся для отримання акаунта. Це просто!
Зареєструвати акаунтУвійти
Вже зареєстровані? Увійдіть тут.
Увійти зараз