VICTOROVIC Опубліковано: 6 листопада 2012 Поділитись Опубліковано: 6 листопада 2012 (змінено) Здравствуйте! С чего все началось - желание построить дом было довольно давно и первая попытка начать была в 2008году но не сложилось из-за кризиса. На тот момент пришлось взять квартиру. Квартира была куплена в новом доме и все семьи молодые чему я был рад но только в начале. Может мне так повезло, а может и многим так везет но у троих соседей из четырех которые граничат с моей квартирой у всех родились и начали рости детки чему я рад конечно же, но когда со всех сторон начинали одновременно доноситься крики и детей и взрослых, а это частенько происходит ночью я начал вспоминать о своем желании построить собственный дом причем желание постоянно усиливалось. За то время что у нас было подумать и определиться мы для себя с женой твердо решили что строить будем только одноэтажный дом. Все просто мы считаем это удобно. Пожелания по участку были следующие: 1. Желательно поближе к Киеву(мы живем на Левом берегу на Позняках). 2. Хорошее транспортное сообщение 3. Немаловажную роль играла цена т.к ресурсы ограничены а на супердолгострой я морально не готов 4. размер участка т.к планируем одноэтажный дом (а жена себя еще видит огородником, а я начинающим садовником) поэтому чем больше тем лучше После нескольких месяцев поиска выбор пал на Бориспольский раен и участок в 20 соток. Хотя ну очень понравился Обуховский и Киево - Святошинский ближе к Киеву:D С проектом тоже определились не сразу, вот как на наш взгляд выглядит проект который удовлетворяет нашим потребностям. Такой проект мы и купили и по нему будем строиться. Я не великий строитель и многого не знаю, пол года читаю форум впитываю полезную информацию и буду признателен за критику и подсказки. Пошел бросать монетки в фундамент. Змінено 8 листопада 2012 користувачем VICTOROVIC 2 Посилання на коментар Поділитися на інших сайтах More sharing options...
wipe Опубліковано: 6 листопада 2012 Поділитись Опубліковано: 6 листопада 2012 очень симпатишный домик, а как с планировкой ? покажите. 1 Посилання на коментар Поділитися на інших сайтах More sharing options...
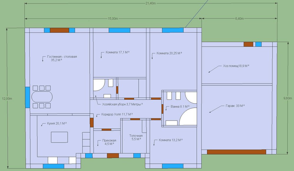
VICTOROVIC Опубліковано: 6 листопада 2012 Автор Поділитись Опубліковано: 6 листопада 2012 Вот так на данный момент мы видим планировку внутри она не сильно отличается от проекта. Одним фасадным окном пришлось пожертвовать из-за расстановки кухни будет окошко чисто декоративным. Вот ссылка на визуализацию проекта: Посилання на коментар Поділитися на інших сайтах More sharing options...
manalex Опубліковано: 6 листопада 2012 Поділитись Опубліковано: 6 листопада 2012 А ссылочку на проект можно? Посилання на коментар Поділитися на інших сайтах More sharing options...
svettl Опубліковано: 9 листопада 2012 Поділитись Опубліковано: 9 листопада 2012 Очень красивый проект, я на старости лет, когда дет разъедутся, тоже себе такой построю))) (через 30 лет они разъедутся) Легкого старта! 1 Посилання на коментар Поділитися на інших сайтах More sharing options...
plus Опубліковано: 9 листопада 2012 Поділитись Опубліковано: 9 листопада 2012 Недешевый дом, с пятном застройки 180 кв.м., даже если не брать во внимание гараж. Убедился на себе. У меня такой же по форме дом, но только с пятном застройки 160 кв.м. Добавлено через 2 минуты У меня ссылочка на этот проект под рукой: z500.com.ua/ru/project/z35 Только похоже ТС увеличил габаритные размеры. Посилання на коментар Поділитися на інших сайтах More sharing options...
VICTOROVIC Опубліковано: 12 листопада 2012 Автор Поділитись Опубліковано: 12 листопада 2012 (змінено) Очень красивый проект, я на старости лет, когда дет разъедутся, тоже себе такой построю))) (через 30 лет они разъедутся) Легкого старта! Спасибо! Я решил сначала построюсь, потом детишки, а во время жизни в доме буду ждать когда они подростут и уедут Добавлено через 1 минуту Недешевый дом, с пятном застройки 180 кв.м., даже если не брать во внимание гараж. Убедился на себе. У меня такой же по форме дом, но только с пятном застройки 160 кв.м. Добавлено через 2 минуты У меня ссылочка на этот проект под рукой: z500.com.ua/ru/project/z35 Только похоже ТС увеличил габаритные размеры. Добавлено через 1 минуту Добавлено через 2 минуты У меня ссылочка на этот проект под рукой: z500.com.ua/ru/project/z35 Только похоже ТС увеличил габаритные размеры. Вы абсолютно правы я увеличил габариты дома. Честно говоря в варианте проекта от Z500 ссылку на который Вы указали мне понравилось наличие второго гаража и наружная отделка. В данном проекте от Архетона мне понравилась внутренняя планировка www.archeton.com.ua/proekt-doma_984_obshcheye-opisaniye А так как и первый вариант проекта и второй не подходят мне по габаритам я решил взять лучшее на мой взгляд и от первого и от второго вариантов и сделать свои габаритные размеры будущего дома. План который Вы могли видеть выше. Змінено 12 листопада 2012 користувачем VICTOROVIC Посилання на коментар Поділитися на інших сайтах More sharing options...
VICTOROVIC Опубліковано: 12 листопада 2012 Автор Поділитись Опубліковано: 12 листопада 2012 Недешевый дом, с пятном застройки 180 кв.м., даже если не брать во внимание гараж. Убедился на себе. У меня такой же по форме дом, но только с пятном застройки 160 кв.м. Добавлено через 2 минуты У меня ссылочка на этот проект под рукой: z500.com.ua/ru/project/z35 Только похоже ТС увеличил габаритные размеры. Не могу ничего сказать по поводу дорого или дешево мне не с чем сравнить, уверен что когда закончу будет интересно сравнить по стоимости с двухэтажным мне самому очень интересно. А если считать с гаражем то пятно застройки увеличивается до 240 кв.м т.е 2.4 сотки я уже займу, останется для фантазий еще 17,6 соток. P.S. Как по мне недешевым удовольствием у меня будет крыша площадь которой привышает 300 м кв. Сколько Вам крыша обошлась можно в личку. Спасибо. Посилання на коментар Поділитися на інших сайтах More sharing options...
wipe Опубліковано: 12 листопада 2012 Поділитись Опубліковано: 12 листопада 2012 Не могу понять, как поавсть в комнату 17,1 м2 Посилання на коментар Поділитися на інших сайтах More sharing options...
VICTOROVIC Опубліковано: 12 листопада 2012 Автор Поділитись Опубліковано: 12 листопада 2012 Не могу понять, как поавсть в комнату 17,1 м2 Я забыл указать там дверь, но скорее всего там будет арка или какая нибудь красивая конструкция из гипсокартона в сочетании с аркой... Посилання на коментар Поділитися на інших сайтах More sharing options...
wipe Опубліковано: 12 листопада 2012 Поділитись Опубліковано: 12 листопада 2012 Я забыл указать там дверь, но скорее всего там будет арка или какая нибудь красивая конструкция из гипсокартона в сочетании с аркой... Ага, теперь понятно, планировочка симпатичная. Посилання на коментар Поділитися на інших сайтах More sharing options...
Рекомендовані повідомлення
Створіть акаунт або увійдіть у нього для коментування
Ви маєте бути користувачем, щоб залишити коментар
Створити акаунт
Зареєструйтеся для отримання акаунта. Це просто!
Зареєструвати акаунтУвійти
Вже зареєстровані? Увійдіть тут.
Увійти зараз