Перейти до публікації
Пошук в
  • Додатково...
Шукати результати, які містять...
Шукати результати в...

Кто-то строил такой дом или подобный???

Yuriy&J

Рекомендовані повідомлення

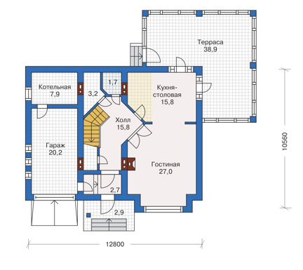
Добрый день всем. Очень понравился проэкт, хотим услышать ваше мнение....и может кто-то уже строил такой дом?

50005d2323211qqq.jpg.fe795c71507d5c81b7f39f657822e1e2.jpg

50005plan1111111.jpg.3ff177d36c7ee5f7632a49068c5bfc2f.jpg

50005plan222222.jpg.3dd1927984b5b8aa85f3a88bb48f685d.jpg

Посилання на коментар
Поділитися на інших сайтах

Створіть акаунт або увійдіть у нього для коментування

Ви маєте бути користувачем, щоб залишити коментар

Створити акаунт

Зареєструйтеся для отримання акаунта. Це просто!

Зареєструвати акаунт

Увійти

Вже зареєстровані? Увійдіть тут.

Увійти зараз
×
×
  • Створити...