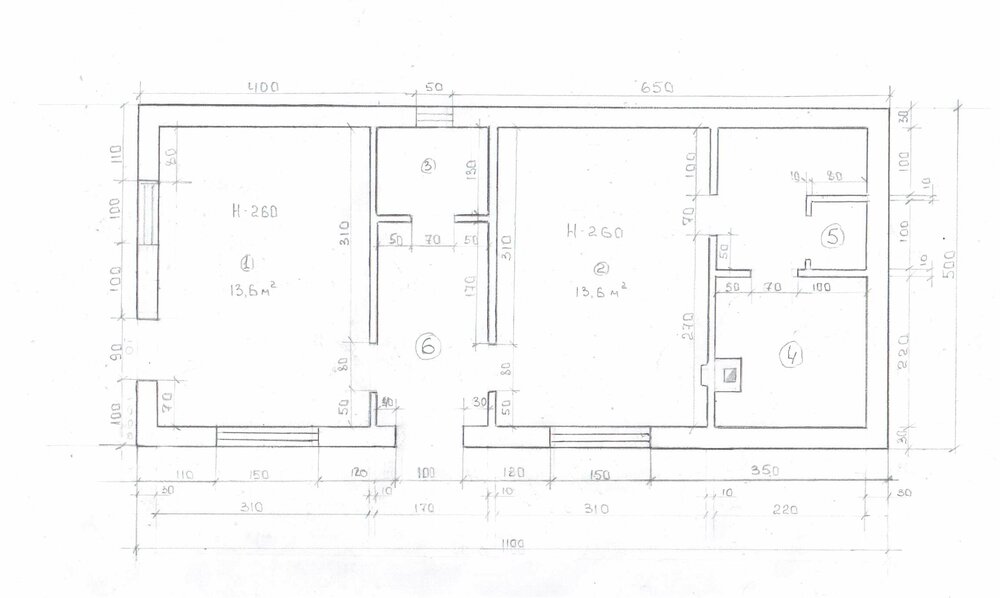
coskad Опубліковано: 9 грудня 2012 Поділитись Опубліковано: 9 грудня 2012 Порошу прокомментировать мой будущий проект бани с летней кухней. 1-кухня; 2-комната отдыха; 3-туалет; 4-сауна; 5-душевая; 6-прихожая. Посилання на коментар Поділитися на інших сайтах More sharing options...
coskad Опубліковано: 9 грудня 2012 Автор Поділитись Опубліковано: 9 грудня 2012 Строительство планируется из газобетонных блоков толщиной 300 мм. Перекрытие по деревянным балкам. Посилання на коментар Поділитися на інших сайтах More sharing options...
ДОКС Опубліковано: 9 грудня 2012 Поділитись Опубліковано: 9 грудня 2012 Порошу прокомментировать мой будущий проект бани с летней кухней. Всё в порядке. стройте "для здоровья"!!! 1 Посилання на коментар Поділитися на інших сайтах More sharing options...
berizka_00 Опубліковано: 9 грудня 2012 Поділитись Опубліковано: 9 грудня 2012 Перед входом в сауну и душем слева получается "загогулина" размером 1х1,7 м. Что там будет? Поменяйте парилку и душ с "загогулиной" местами - легче будет разместить мебель в комнате отдыха. Котел сдвиньте ближе к дверям, что б лежащий на полке не так поджаривался (если полки будут Г=образные). Из кухни второй выход точно нужен? 1 Посилання на коментар Поділитися на інших сайтах More sharing options...
coskad Опубліковано: 9 грудня 2012 Автор Поділитись Опубліковано: 9 грудня 2012 Перед входом в сауну и душем слева получается "загогулина" размером 1х1,7 м. Что там будет? Поменяйте парилку и душ с "загогулиной" местами - легче будет разместить мебель в комнате отдыха. Из кухни второй выход точно нужен? Из кухни будет выход на летнюю беседку. С левой стороны от душа будет установлен бойлер для горячей воды. Местами менять душ и сауну не видем смысла. Растопка печи будет производиться из комнаты отдыха. По этому печку разместили на против входа в комнату, для того что бы сократить расстояния при переноске дров Посилання на коментар Поділитися на інших сайтах More sharing options...
berizka_00 Опубліковано: 9 грудня 2012 Поділитись Опубліковано: 9 грудня 2012 ... С левой стороны от душа будет установлен бойлер для горячей воды... Поставьте там унитаз и маленький умывальник - места хватает и будет удобно. Посилання на коментар Поділитися на інших сайтах More sharing options...
Рекомендовані повідомлення
Створіть акаунт або увійдіть у нього для коментування
Ви маєте бути користувачем, щоб залишити коментар
Створити акаунт
Зареєструйтеся для отримання акаунта. Це просто!
Зареєструвати акаунтУвійти
Вже зареєстровані? Увійдіть тут.
Увійти зараз