Перейти до публікації
Пошук в
  • Додатково...
Шукати результати, які містять...
Шукати результати в...

Тендер на кладку каминопечи с лежанкой

Серж22

Рекомендовані повідомлення

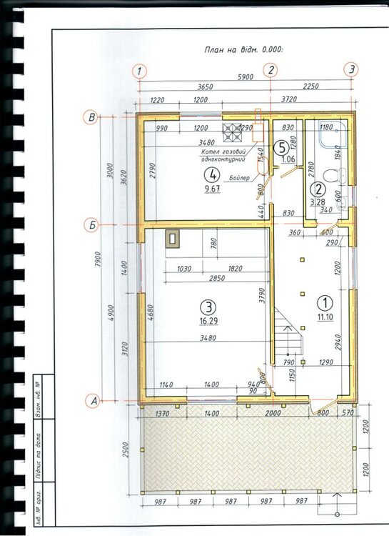
Хочу каминопечь с лежанкой.

Выбрать из прилагаемых на фото, или аналог, или свой вариант) с возможностью готовить пищу и греть спину.

Каркасный доме в Бородянском р-не.

 

Фото: планы этажей, 3 фото с Интернета (примерно то, что хочу) и фото места размещения. Фундамент - бетонная плита.

При согласии сторон - начало работ весной после подсыхания дорог. Работа по договору.

1671091868_1.thumb.jpeg.4f6d4da3dfc5565f929224545b1d9343.jpeg

26290174_.thumb.jpeg.1c4324cd3162a63f9b98c7575cc57cbd.jpeg

DSC00042.thumb.JPG.1aa5a5068268d4eec7d37983561a3d69.JPG

DSC00043.thumb.JPG.54d3528f8cd28bcd88cabc87b5c6d0a2.JPG

1_15.jpg.66c5377d191d87ae643f3450b8547578.jpg

3333_original.jpg.0dae3217cdf4d9defadcd805ed052e61.jpg

1935632173_.jpg.103b34a8f3d3c4e8e0a7312e65f69595.jpg

Посилання на коментар
Поділитися на інших сайтах

Створіть акаунт або увійдіть у нього для коментування

Ви маєте бути користувачем, щоб залишити коментар

Створити акаунт

Зареєструйтеся для отримання акаунта. Це просто!

Зареєструвати акаунт

Увійти

Вже зареєстровані? Увійдіть тут.

Увійти зараз
×
×
  • Створити...