Теш Опубліковано: 8 січня 2013 Поділитись Опубліковано: 8 січня 2013 Продам конструктивный проект дома! Площадь дома с цоколем 220 кв.м., участок под уклоном(гараж в цоколе, выезд под уклоном к дороге), 5 комнат, зимний сад, полноценных 2 этажа. В проекте разводка всех комуникаций. Проект от лицензированного архитектора. Просчет всех нагрузок и описание всех материалов. Очень хороший проект. Недорого! Продаем так как передумали строить. Посилання на коментар Поділитися на інших сайтах More sharing options...
Gedeonovich Опубліковано: 8 січня 2013 Поділитись Опубліковано: 8 січня 2013 без фото, планов продавать будете до конца эры водолея Посилання на коментар Поділитися на інших сайтах More sharing options...
Теш Опубліковано: 23 січня 2013 Автор Поділитись Опубліковано: 23 січня 2013 Продам конструктивный проект дома! Площадь дома с цоколем 220 кв.м., участок под уклоном(гараж в цоколе, выезд под уклоном к дороге), 5 комнат, зимний сад, полноценных 2 этажа. В проекте разводка всех комуникаций. Проект от лицензированного архитектора. Просчет всех нагрузок и описание всех материалов. Очень хороший проект. Недорого! Продаем так как передумали строить. Посилання на коментар Поділитися на інших сайтах More sharing options...
Теш Опубліковано: 27 січня 2013 Автор Поділитись Опубліковано: 27 січня 2013 Неужели никому не надо классный проект!НЕДОРОГО!Можно сказать даже дешево;) Посилання на коментар Поділитися на інших сайтах More sharing options...
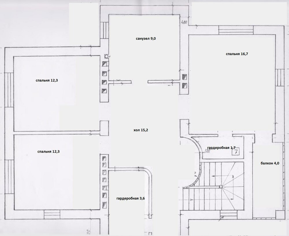
~UXO~ Опубліковано: 28 січня 2013 Поділитись Опубліковано: 28 січня 2013 (змінено) Очень хороший проект. Недорого! В чём жe eгo хорошесть ? Спальни аж по 12.3m2 метров. Прямо таки как в панельных многоэтажках при советах. Kухня-столовая столько же, 12.8m2 ??? Зато санузел получился знатным,- 9м2, и хол 15.2м2. Да уж, наверно лицензированный архитектор не одну неделю морщил череп над этим. P.S. У меня в квартире кухня 16м2, не скажу что там особо много места. Змінено 28 січня 2013 користувачем ~UXO~ Посилання на коментар Поділитися на інших сайтах More sharing options...
Теш Опубліковано: 28 січня 2013 Автор Поділитись Опубліковано: 28 січня 2013 В чём жe eгo хорошесть ? Спальни аж по 12.3m2 метров. Прямо таки как в панельных многоэтажках при советах. Kухня-столовая столько же, 12.8m2 ??? Зато санузел получился знатным,- 9м2, и хол 15.2м2. Да уж, наверно лицензированный архитектор не одну неделю морщил череп над этим. P.S. У меня в квартире кухня 16м2, не скажу что там особо много места. Я вас поздравляю с большой кухней! Мм да лучше конечно 16 кв. кухня в квартире чем 12,8 кв в своем доме!Рассмешили ! "На вкус и цвет товарища нет"! Посилання на коментар Поділитися на інших сайтах More sharing options...
Теш Опубліковано: 23 лютого 2013 Автор Поділитись Опубліковано: 23 лютого 2013 Скоро весна, кто ищет проект пишите, дешево! Посилання на коментар Поділитися на інших сайтах More sharing options...
~UXO~ Опубліковано: 3 червня 2013 Поділитись Опубліковано: 3 червня 2013 Скоро весна, кто ищет проект пишите, дешево! Подыму вашу тему. Вроде и зима позади, и весна промчалась незаметно , лето жаркое настало. И шо? Видать с экономилой и правда полный писец. По форуму даже заметно, мало кто решается на новострой. Посилання на коментар Поділитися на інших сайтах More sharing options...
Теш Опубліковано: 10 червня 2013 Автор Поділитись Опубліковано: 10 червня 2013 Подыму вашу тему. Вроде и зима позади, и весна промчалась незаметно , лето жаркое настало. И шо? Видать с экономилой и правда полный писец. По форуму даже заметно, мало кто решается на новострой. Спасибо что обновили тему)))):D Посилання на коментар Поділитися на інших сайтах More sharing options...
Рекомендовані повідомлення
Створіть акаунт або увійдіть у нього для коментування
Ви маєте бути користувачем, щоб залишити коментар
Створити акаунт
Зареєструйтеся для отримання акаунта. Це просто!
Зареєструвати акаунтУвійти
Вже зареєстровані? Увійдіть тут.
Увійти зараз