KAKTyC Опубліковано: 10 січня 2009 Поділитись Опубліковано: 10 січня 2009 Здравствуйте ВСЕ!!! на описание строительства дома наткнулся прошлой зимой - очень понравился стиль изложения автором информации. пришло время строительства - и теперь регистрируюсь на форуме и выкладываю начальные фотографии. проект дома нам сделал мой хороший друг архитектор (правда он только окончил университет, но его отец так же архитектор - что меня сильно успокаивало ) и так наши планы: 1. пристройка к старому дому. 2. утепление и усиление старого дома. 3. создание крыши. 4. отопление . 5. и т.д. дом строится для постоянной жизни на сегодняшний момент сделано: вырыт котлован и залит фундамент пристройки. а также пол на первом этаже . и сейчас имеется МНОЖЕСТВО вопросов... проект дома выложу позже Посилання на коментар Поділитися на інших сайтах More sharing options...
KAKTyC Опубліковано: 14 січня 2009 Автор Поділитись Опубліковано: 14 січня 2009 вот собственно что должно получиться Посилання на коментар Поділитися на інших сайтах More sharing options...
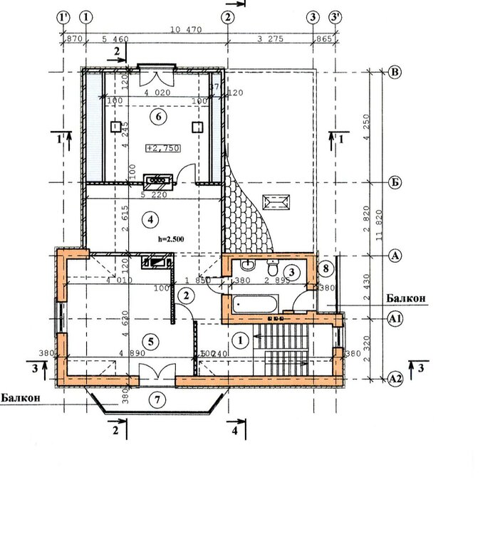
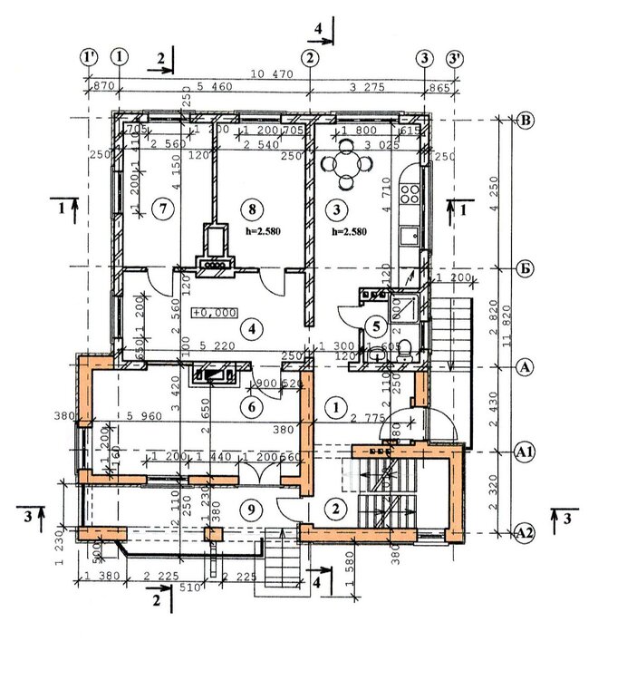
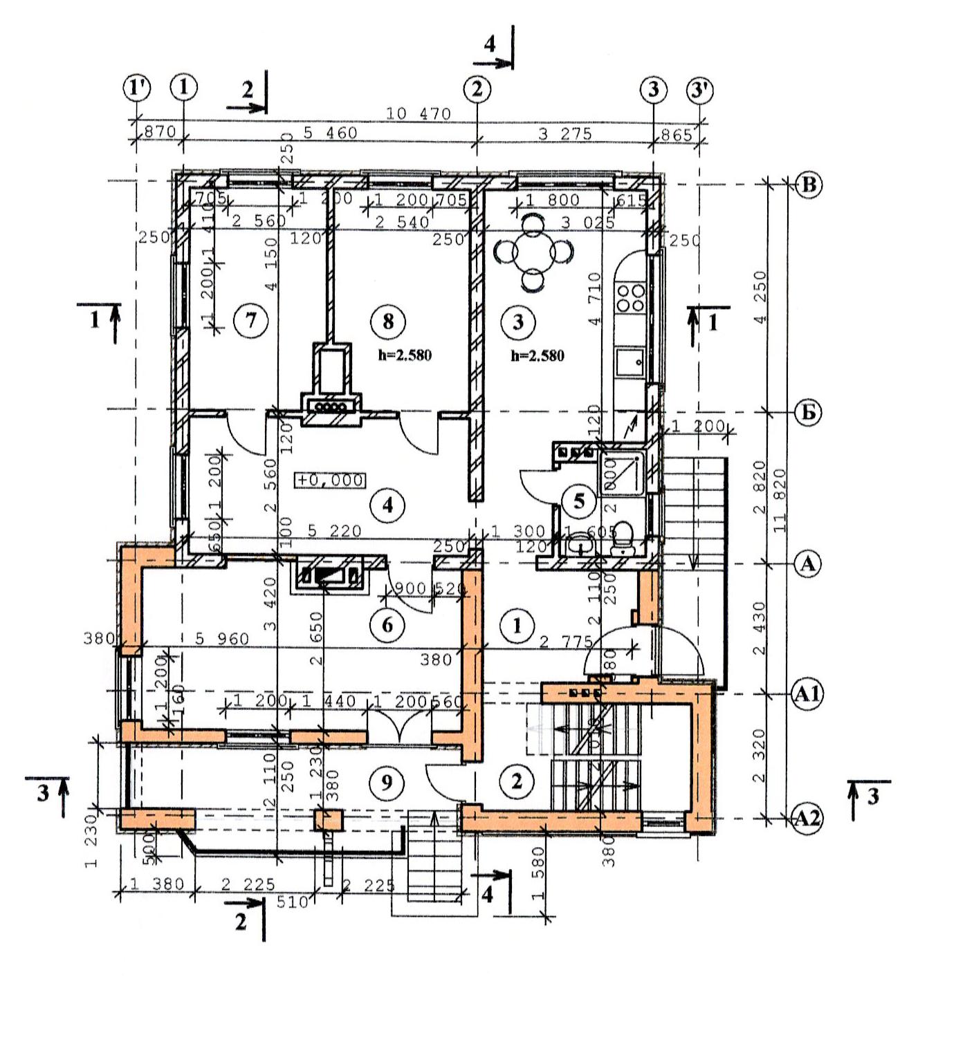
Мария Кле Опубліковано: 14 січня 2009 Поділитись Опубліковано: 14 січня 2009 красивенько а что у вас внутри? поэтажные планы перестраивать всегда хуже чем строить... Посилання на коментар Поділитися на інших сайтах More sharing options...
KAKTyC Опубліковано: 6 лютого 2009 Автор Поділитись Опубліковано: 6 лютого 2009 Здравствуйте форумчане... Весна скоро -) Посилання на коментар Поділитися на інших сайтах More sharing options...
Рекомендовані повідомлення
Створіть акаунт або увійдіть у нього для коментування
Ви маєте бути користувачем, щоб залишити коментар
Створити акаунт
Зареєструйтеся для отримання акаунта. Це просто!
Зареєструвати акаунтУвійти
Вже зареєстровані? Увійдіть тут.
Увійти зараз