Перейти до публікації
Пошук в
  • Додатково...
Шукати результати, які містять...
Шукати результати в...

Работа для стротелей

Venus

Рекомендовані повідомлення

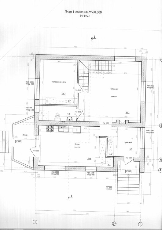
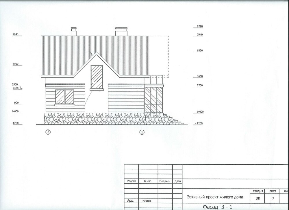
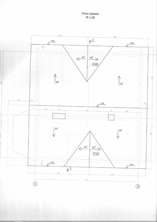
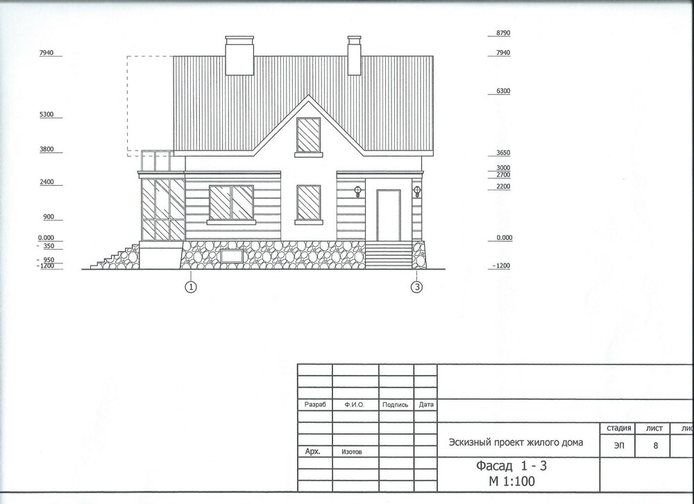
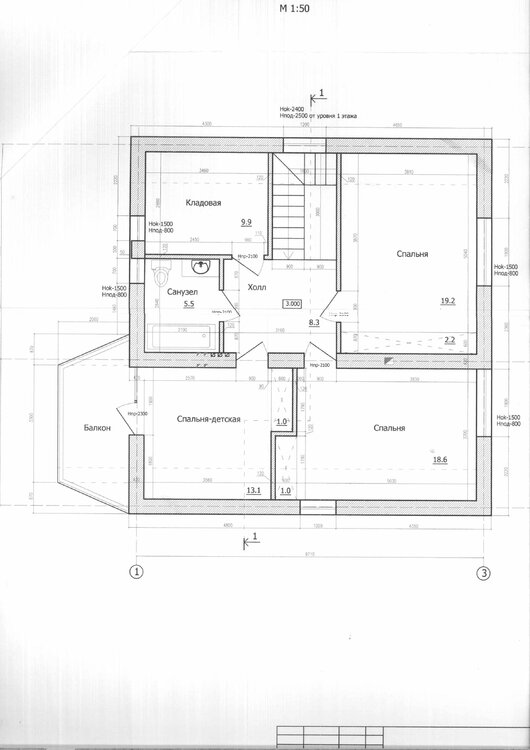
Уважаемые все. надо достроить второй этаж с крышей и оштукатурить с улицы. ну и потом может до победного конца. Вот проект с размерами. жду ваши сметы или хотя бы цена за метр квадратный и кубический по следующим работам:

- крыша металлочерепица с утеплением

- кладка газобетона включая окна

- штукатурка

и еще остальные необходимые работы которые не упомянул

Image-01.thumb.jpg.4782975507b044bbebbe10cea83ea871.jpg

Image-02.thumb.jpg.cae0e4a1b61615dbdc9e2a9eab6d45c7.jpg

Image-03.thumb.jpg.41685e333ac3b976ddd8ebab7d906ee2.jpg

Scan0001.thumb.jpg.e2dfbff2105112335633d445662325d7.jpg

Scan0003.thumb.jpg.73c0d5065b173c48f2e219b5bbd4e030.jpg

Scan0004.thumb.jpg.461ff91df88d4bc423841136d983b86d.jpg

Scan0005.thumb.jpg.989d4a259b58303170f31bec28397a1e.jpg

Scan0006.thumb.jpg.ad9430d0a58811981bcee11ed2a36301.jpg

Scan0007.thumb.jpg.c14060ad17b4258f3d336ee69b56b4e0.jpg

Scan0008.thumb.jpg.05fe5caa0f120c05e0e8ff0f9aa8f808.jpg

Scan0009.thumb.jpg.4de1b200ed636dfdae21d1f8ec2edd1b.jpg

Посилання на коментар
Поділитися на інших сайтах

Створіть акаунт або увійдіть у нього для коментування

Ви маєте бути користувачем, щоб залишити коментар

Створити акаунт

Зареєструйтеся для отримання акаунта. Це просто!

Зареєструвати акаунт

Увійти

Вже зареєстровані? Увійдіть тут.

Увійти зараз
×
×
  • Створити...