sinica Опубліковано: 12 лютого 2013 Поділитись Опубліковано: 12 лютого 2013 Добрый День В этом году запланировали с женой построить хоз. блок который будет состоять из гаража (8х8) и 2-х хозяйственных помещений (3,5х6). В хоз. помещение мы включили мастерскую, курятник, дровницу и помещение для садового инвентаря. Но подумав и все взвесив решили что рациональнее одно помещение использовать под баню. Постройка планируется в один отсевный блок с утеплением снаружи пенопластом 8 см и обшивкой блокхаусом, чердак нежилой, крыша вальмовая. Высота потолка 2,9. Теперь собственно вопрос по баньке, посмотрите планировку может что неучел, достаточно ли размеров парной, она получается где то 1,9х1,9 без отделки. Сколько надо учесть на отделку (очень понравилась как сделал Александр с Донецка на такой скорее и остановлюсь) просто одни пишут 5 см мин ваты другие 15см. Какие размеры должна иметь купель, по моей прикидке она получается 1.4х1.35. Покупать купель дорого поэтому буду делать сам - хозблок строится на склоне перепад высот около 1.1 метра, как раз место расположения купели самое глубокое можно ли совместить фундамент и стену купели. Фундамент 30см снаружи будет утеплен пенопластом 8см. Слив купели монтировать его в систему канализации или нет, может дренировать ее насосом в огород (вода чистая), либо незаморачиваться со всем этим, а залить пол выстроить на нем в один блок стену и залить водой получится 1.4х1.35х1.6 и выдержат ли стены 3 куба воды. Печь только дровяная, где ее лучше разместить помывочной или в мастерской. В мастерской боюсь потому что там будет газовый котел. Как сделать вентиляцию ума неприложу, даже недумал что этому уделяется такое внимание, поэтому пока думаю что приточка естественная, а вытяжку сделаю вместе с дымоходом. Пока на этом вопросы все. Прошу посмотреть планировку и если что не предусмотрел подсказать. Пока на этапе проекта можно все учесть. Спасибо Посилання на коментар Поділитися на інших сайтах More sharing options...
РОМАН ПЕРЕДЕРИЙ Опубліковано: 13 лютого 2013 Поділитись Опубліковано: 13 лютого 2013 Под какие режимы планируется баня.В любом случае парилку увеличить в сторону купели до 250-270.По режимам можно глянуть сюда.forum.rusbani.ru/viewforum.php?f=12&sid=9fa229f6ae406636d702b5696229738c 1 Посилання на коментар Поділитися на інших сайтах More sharing options...
sinica Опубліковано: 13 лютого 2013 Автор Поділитись Опубліковано: 13 лютого 2013 Спасибо за ссылку, этот форум уже изучаю. Пока в голове полная каша от информации. По поводу режима (если я правильно понял) то скорее "пляжный". Если парилку увеличивать то может в сторону помоечной, просто купель шириной в 1 метр мне кажется узкой Посилання на коментар Поділитися на інших сайтах More sharing options...
РОМАН ПЕРЕДЕРИЙ Опубліковано: 13 лютого 2013 Поділитись Опубліковано: 13 лютого 2013 (змінено) Спасибо за ссылку, этот форум уже изучаю. Пока в голове полная каша от информации. По поводу режима (если я правильно понял) то скорее "пляжный". Если парилку увеличивать то может в сторону помоечной, просто купель шириной в 1 метр мне кажется узкой Если отталкиваться от режима то вам нужно лежать в парилке.А лежать удобно на полке 220х90.Высота полки от пола 90.Печь должна выдавать такой режим а не сушить воздух.От купели или вообще отказаться в пользу переворачивающего ведра или сместить в моечную.video.yandex.ua/users/rusbani/view/2/?cauthor=rusbani&cid=1 Змінено 13 лютого 2013 користувачем РОМАН ПЕРЕДЕРИЙ 1 Посилання на коментар Поділитися на інших сайтах More sharing options...
Александр с Донецка Опубліковано: 14 лютого 2013 Поділитись Опубліковано: 14 лютого 2013 (змінено) достаточно ли размеров парной, она получается где то 1,9х1,9 без отделки. Сколько надо учесть на отделку (очень понравилась как сделал Александр с Донецка на такой скорее и остановлюсь) просто одни пишут 5 см мин ваты другие 15см. Если по наруже будет утепляться, то считать внутреннюю отделку стоит так. 50 брус+3см контррейка+2см вагонка=10см на одну сторону 10см*2=20см отделка. Полок делают обычно 2м, что бы человек мог лежать в полный рост, а если еще планируется для комфортного лежания подголовник, то стоит набросить сантиметров 20, что бы не налазить на него до самого верха. Вот и получается уже 2.4м парилка в длину. Для комфортного лежания полок нужен, что бы человек лежал на спине расставив руки в стороны, это около 80-90см. Вдвоем на нем конечно тесновато, если захотите с супругой рядом полежать погреться, а не по очереди, те 1.2м будет конечно получше. Проход тоже нужен. Если печь будет достаточно выдавать пара, то полок как массажисты делают под удобную высоту под человека, это вторая фаланга указательного пальца, в среднем 70см. Если печь будет слабовата, то полок придется поднимать повыше и мостить тогда ступеньку-базу с которой будете парить. Те еще помимо полока и ступени нужен небольшой проход. Полок1.2м+ступень 40см заходящая на 20см под полок, для удобного хождения по ней, +60см проход = 2м +20см отделка стен вот и ширина выходит 2.2м. Вот отсюда и пляшите;) Купель тоже нужно сделать, без нее баня не баня. Ну и обливное и душ тоже нужны. Добавлено через 16 минут sinica, но правильнее было бы вначале определиться какая баня будет, конвекционная или пироговая. Потом для этих целей подобрать модель печи и тогда уже заниматься планировкой парилки. А так пока гадание на кофейной гуще ;) Змінено 14 лютого 2013 користувачем Александр с Донецка 1 Посилання на коментар Поділитися на інших сайтах More sharing options...
biz-kiev Опубліковано: 20 лютого 2013 Поділитись Опубліковано: 20 лютого 2013 (змінено) Если отталкиваться от режима то вам нужно лежать в парилке.А лежать удобно на полке 220х90.Высота полки от пола 90.Печь должна выдавать такой режим а не сушить воздух.От купели или вообще отказаться в пользу переворачивающего ведра или сместить в моечную ню-ню 1. лежать удобно если ваш рост + 10см.. зачем +50см? чтобы было? или рассчитывать что гость зайдет 210? 2. высота от пола максимально выше лучше 110-130... зачем занижать - горячий воздух то сверху? 3. ширина полки достаточна 60см.. в вагонах 600 и едут все кому не лень и выспаться могут, а тут париться... а вообще см рис 4. отказаться от купели? что это за баня.. ИМХО! для меня без купели смысла нет, ведро купель никогда не заменит! 5. печь должна и будет сушить, для пара это уже будут доп опции. хочешь сауну поболее градусиков - сухо, хочешь баньку - поставить ведро с веничками для запарки и подливать по чуть-чуть )))) Змінено 20 лютого 2013 користувачем biz-kiev 1 Посилання на коментар Поділитися на інших сайтах More sharing options...
Александр с Донецка Опубліковано: 20 лютого 2013 Поділитись Опубліковано: 20 лютого 2013 Лежать на полоке удобно на спине раскинув руки немного в стороны, чтобы чувствовать себя свободно и парильщик мог побаловать веничком бока во время парения. На 60см это наврят сделаешь ;) А вот картинки прикольные, в камасутру в самый раз ;) biz-kiev, печь должна быть заточена под конкретные режимы парения. Увы, универсальность бани и "сауны" не совсем правильные решения. Тот кто попробовал хорошие режимы бани, к режимам "сауны" не вернется, поверьте не вру. Печь должна отжать влагу с обшивы, что бы она просохла и не заводились плесень и грибок, ну и конечно она не гнила. Ведь мы превращаем воду в пар, нагревая ее выше 100С, но потом при остывании она опять превращается в воду, а не разлагается на водород и кислород. Этой влаге нужно куда то деться, сконденсироваться на прохладном полу по отношению к обшиве и слиться в каналью или выйти с движущимся воздухом вентиляции наружу парилки. А хорошо когда все вместе, баня быстрее просыхает. А когда печь не теплоемкая, после парения остыла и не отжала влагу с парилки, то только вентиляция может спасти от проблем. А вот пар это тема отдельная, если печь пар будет давать как опцию, то это кухонная или отопительная печь, но не как не банная. Печь должна не только греть и сушить, но прогревать закладку так сказать- ядро, с которого будет производиться пар. И если ядро или проще говорить закладка камня или чугуна или того и другого вместе, будет плохо прогрета, то пар будет сырой, что не как не предаст комфорта парения, а может даже его испортит. Только комплексный подход к этому делу будет самым оптимальным. Так же как и размер самой печи, если говорить о КП(кирпичных печах), может перегревать саму парилку если большая и не догревать при малой. Так же как и обложить кирпичом МП(металлическую печь), где площади кирпичной поверхности будет мало и прогрев парилки будет замедленным, что приведет к увеличенному времени выхода на режим парения. А при мощной печи нужно будет осаживать парилку, поливая стены холодной водой, для снижения температуры. Вообщем танцы с бубнами. В этом случае делают управляемый конвектив в помощь площади печи и еще как вариант щиток на дым. Вариантов масса и к каждой парилке нужен индивидуальный подход с подбором печи и заточки режимов. Многие начинающие, хотящие иметь у себя баню не понимают терминологии банной и сути. И что бы в не вникнуть, приходиться лопатить много инфы, в том числе просто лишней. Бывает порой делают баню, потом идут к кому нибудь париться и понимают, что много потрачено времени и средств зря, все на много проще ;) 1 Посилання на коментар Поділитися на інших сайтах More sharing options...
biz-kiev Опубліковано: 20 лютого 2013 Поділитись Опубліковано: 20 лютого 2013 к режимам "сауны" не вернется, поверьте не вру. я люблю сауну. но люблю и веничком. 1 есть )) парилка универсальная.. так изначально планировалось На 60см это наврят сделаешь легко... рост 175, вес 95, у жены 165, 60 вдвоем не удобно да, одному с головой Добавлено через 4 минуты все на много проще 100%! обычная тунгуска витро, камни... греем без воды = сауна, греем с водой = баня, что тут мудрить? Добавлено через 2 минуты печь должна быть заточена под конкретные режимы парения а я простой каменкой обхожусь, что то не видел в инструкциях заточенности )) жаль что мы далековато с вами, а то бы померялись веничками 1 Посилання на коментар Поділитися на інших сайтах More sharing options...
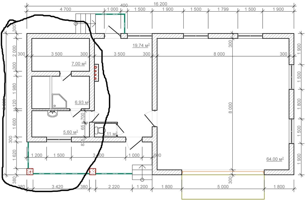
sinica Опубліковано: 20 лютого 2013 Автор Поділитись Опубліковано: 20 лютого 2013 Н-да, получается я в настоящей бане то ниразу и небыл. Увы, но какую баню хочу я так и непонял. Чем дальше в лес… как говорится, тем толще партизаны. Про все тонкости банного искусства познаю только сейчас. До этого, я так понял, было только баловство. Но, по сути, учитывая ваши рекомендации выходит вот так (см. на фото). Получается что даже при размерах 2х2,6 невыйдет сделать полоку длиной в 2 метра. Печь прикинул с габаритами 40х60 без учета отделки стены и «учитывая» противопож. требования. Внутри т/и планирую сделать толщиной 5 см + 3см контробрешетка + 2см вагонка итого 20 см, в районе печи отделку пока непродумал, но скорее всего будет кирпич что еще + 12 см. При таких раскладах печь просится со стороны мастерской, но боюсь что неудобно будет постоянно бегать подкладывать дрова. Посилання на коментар Поділитися на інших сайтах More sharing options...
Александр с Донецка Опубліковано: 21 лютого 2013 Поділитись Опубліковано: 21 лютого 2013 ...обычная тунгуска витро, камни... греем без воды = сауна, греем с водой = баня, что тут мудрить? ...а я простой каменкой обхожусь, что то не видел в инструкциях заточенности )) жаль что мы далековато с вами, а то бы померялись веничками Иногда манагеры не врут, пишут так как есть, что печь для сауны. И что бы сделать режим для парения, в парилке в которой она стоит, приходиться по извращаться. Мочить стены, вешать простыни мокрые у печи, отгораживается от жесткого ИК излучения, вообщем танцы с бубнами. На нашем рынке в свободной продаже найти металлическую банную печь проблематично, разве что на заказ привезут от соседей Россиян. Да, там есть печи под обкладку камнем или кирпичом, с которыми при правильной установке можно сделать режим горячий и сухой и мягкий банный, управляя конвективными потоками. Основные производители МП общаются с банным людом на форумах, тех же русбанях и стараются идти в ногу со спросом и пожеланиями, устанавливая паровые пушки и прочие приятные банные навороты. А те печи, что стоят на прилавках в свободной продаже, увы все для саун и манагеры смотря в глаза потенциальному покупателю, не сведомому в этом вопросе и рассказывают сказки Венского леса. Порой не выдерживаю и вмешиваюсь в услышанный разговор ;) Как будете в наших краях, непременно по меряемся ;) Добавлено через 3 минуты sinica, попробуйте развернуть парилку поперек ;) 1 Посилання на коментар Поділитися на інших сайтах More sharing options...
К@стян Опубліковано: 27 лютого 2013 Поділитись Опубліковано: 27 лютого 2013 Ув. Александр, можно вопрос по теме: как вы смотрите на установку в качестве первой секции от печи комбинированной секции с баком для воды. Насколько это практичное или непрактичное решение? Может ли бак с водой смягчить к примеру ИК излучение от слишком мощной печи для сауны. Посилання на коментар Поділитися на інших сайтах More sharing options...
Александр с Донецка Опубліковано: 27 лютого 2013 Поділитись Опубліковано: 27 лютого 2013 К@стян, от бака конечно будет идти мягкое тепло, но от него так же будет идти пар. А при саунной печи и температурах 100С-120С влажность выше 10% будет жесть, по простому уши в трубочку. Те бак придется герметизировать и делать отвод пара скорее всего на улицу. Но есть еще один нюанс, он(бак) будет шуметь. Поэтому обычно баки ставят в предбаннике и получают от него его тепло, хотя особого тепла от него не будет, тк площадь излучения слишком мала по отношению даже к предбаннику. 1 Посилання на коментар Поділитися на інших сайтах More sharing options...
Serg_Nikol Опубліковано: 27 лютого 2013 Поділитись Опубліковано: 27 лютого 2013 Но бак ведь не обязательно каждый раз заполнять? А еще в него можно добавить пахучих капелек, и пусть себе булькает Посилання на коментар Поділитися на інших сайтах More sharing options...
К@стян Опубліковано: 27 лютого 2013 Поділитись Опубліковано: 27 лютого 2013 Прошу прощения у ТС за вопросы в его ветке. но все же чтобы поставить точку задам еще вопросик Александру. Как вы смотрите на такой обвес трубы: первая секция от печи - комбинированая с сеткой для камней + камни, далее на втором этаже секция-радиатор, в перекрытии и через крышу - проходные элементы само собой. Секцию-Бак в данном случае получается не надо использовать, т.к. дымоход то находится в парилке, или как можно его обустроить в предбаннике не совсем понятно. А все же если выводить пар на улицу из бака - это на случай если вода в баке кипеть станет? какие могут быть сложности с этим? вода как я догадываюсь кипеть будет постоянно пока печь топят? Уж очень хочется все понять и сразу, сори за много вопросов. Посилання на коментар Поділитися на інших сайтах More sharing options...
Александр с Донецка Опубліковано: 27 лютого 2013 Поділитись Опубліковано: 27 лютого 2013 Но бак ведь не обязательно каждый раз заполнять? А еще в него можно добавить пахучих капелек, и пусть себе булькает Не факт, что при не заполнении бака, не сгорит теплообменник на трубе и все соединяющие уплотнения. Пахнущие капельки копаются на досочку и вносятся в парилку. А не в водичку, и тем более что не на камешки. Тк стоит уважать других членов Вашей семьи(который будут париться после Вас) и свои любимые запахи носить с собой Добавлено через 4 минуты К@стян, Вы хотите поставить теплообменник на чердаке? 1 Посилання на коментар Поділитися на інших сайтах More sharing options...
К@стян Опубліковано: 27 лютого 2013 Поділитись Опубліковано: 27 лютого 2013 На мансардном этаже Посилання на коментар Поділитися на інших сайтах More sharing options...
Александр с Донецка Опубліковано: 27 лютого 2013 Поділитись Опубліковано: 27 лютого 2013 На мансардном этаже А смысл? Зачем сетка в парилке, для декора? Есть такой момент, что вода будет холоднее чем труба. А точка контакта с теплообменником будет высоковата и далековата от источника тепла. Те в теплообменнике может возникнуть скопление сажи на внутренних стенках. Этот вариант размещения теплообменника не правильный. Его нужно размещать над печью, что бы частично снимать температуру выхлопных газов, а не пережимать посредине выхлопа. Посилання на коментар Поділитися на інших сайтах More sharing options...
К@стян Опубліковано: 28 лютого 2013 Поділитись Опубліковано: 28 лютого 2013 А смысл? Зачем сетка в парилке, для декора? Камни для смягчения режима,т.е камни снимают тепло с трубы, вместо бака с водой. Есть такой момент, что вода будет холоднее чем труба. А точка контакта с теплообменником будет высоковата и далековата от источника тепла. Те в теплообменнике может возникнуть скопление сажи на внутренних стенках. Тут я не корректно выразился наверное, на втором этаже не бак с водой, а просто радиатор, вот пример pechi-kotly-kamenki.com.ua/p7224832-truba-radiator-nerzhaveyuschej.html Этот элемент тоже надо ставить только сразу над печкой, или всетаки можно всунуть на втором этаже? Причина простая - доп.обогрев комнаты над парилкой. Посилання на коментар Поділитися на інших сайтах More sharing options...
Александр с Донецка Опубліковано: 28 лютого 2013 Поділитись Опубліковано: 28 лютого 2013 Камни для смягчения режима,т.е камни снимают тепло с трубы, вместо бака с водой. Да, камни убирают жесткое излучение от трубы. Если нельзя поставить сендвич, то сетка как вариант. Тут я не корректно выразился наверное, на втором этаже не бак с водой, а просто радиатор, вот пример pechi-kotly-kamenki.com.ua/p7224832-truba-radiator-nerzhaveyuschej.html Этот элемент тоже надо ставить только сразу над печкой, или всетаки можно всунуть на втором этаже? Причина простая - доп.обогрев комнаты над парилкой. Да, это теплосъем с трубы, конвектор. Но труба раскаляется до красна и такой обогреватель мансарды не будет совсем правильным решением. А вот беды может наделать. Для него нужно делать не горючий короб и в нем располагать этот элемент. Не буду разводить полемику, что такое хорошо и как горят бани, как говориться дело хозяйское. Добавлено через 5 минут По этому поводу пообщайтесь с каминщиками. Они увеличивая мощность камина, пользуются почти такими же девайсами. Там и материал и конструктив можно поискать. 1 Посилання на коментар Поділитися на інших сайтах More sharing options...
sinica Опубліковано: 13 березня 2013 Автор Поділитись Опубліковано: 13 березня 2013 sinica, попробуйте развернуть парилку поперек Развернул получилось так Посилання на коментар Поділитися на інших сайтах More sharing options...
Александр с Донецка Опубліковано: 13 березня 2013 Поділитись Опубліковано: 13 березня 2013 Развернул получилось так Вроде как нормально ;) Посилання на коментар Поділитися на інших сайтах More sharing options...
dimakon Опубліковано: 20 березня 2013 Поділитись Опубліковано: 20 березня 2013 Добрый День В этом году запланировали с женой построить хоз. блок который будет состоять из гаража (8х8) и 2-х хозяйственных помещений (3,5х6). В хоз. помещение мы включили мастерскую, курятник, дровницу и помещение для садового инвентаря. Но подумав и все взвесив решили что рациональнее одно помещение использовать под баню. Постройка планируется в один отсевный блок с утеплением снаружи пенопластом 8 см и обшивкой блокхаусом, чердак нежилой, крыша вальмовая. Высота потолка 2,9. Теперь собственно вопрос по баньке, посмотрите планировку может что неучел, достаточно ли размеров парной, она получается где то 1,9х1,9 без отделки. Сколько надо учесть на отделку (очень понравилась как сделал Александр с Донецка на такой скорее и остановлюсь) просто одни пишут 5 см мин ваты другие 15см. Какие размеры должна иметь купель, по моей прикидке она получается 1.4х1.35. Покупать купель дорого поэтому буду делать сам - хозблок строится на склоне перепад высот около 1.1 метра, как раз место расположения купели самое глубокое можно ли совместить фундамент и стену купели. Фундамент 30см снаружи будет утеплен пенопластом 8см. Слив купели монтировать его в систему канализации или нет, может дренировать ее насосом в огород (вода чистая), либо незаморачиваться со всем этим, а залить пол выстроить на нем в один блок стену и залить водой получится 1.4х1.35х1.6 и выдержат ли стены 3 куба воды. Печь только дровяная, где ее лучше разместить помывочной или в мастерской. В мастерской боюсь потому что там будет газовый котел. Как сделать вентиляцию ума неприложу, даже недумал что этому уделяется такое внимание, поэтому пока думаю что приточка естественная, а вытяжку сделаю вместе с дымоходом. Пока на этом вопросы все. Прошу посмотреть планировку и если что не предусмотрел подсказать. Пока на этапе проекта можно все учесть. Спасибо Рекомендую вам також утеплить баню і з середини та використать екрануючу фольгу. По перше температура буде швидше рости в сауні та довже триматься бо не потрібно буде прогрівать стіни. Принцип сауни це термос. Вдалого будівництва Посилання на коментар Поділитися на інших сайтах More sharing options...
Рекомендовані повідомлення
Створіть акаунт або увійдіть у нього для коментування
Ви маєте бути користувачем, щоб залишити коментар
Створити акаунт
Зареєструйтеся для отримання акаунта. Це просто!
Зареєструвати акаунтУвійти
Вже зареєстровані? Увійдіть тут.
Увійти зараз