sokol-bmw Опубліковано: 12 лютого 2013 Поділитись Опубліковано: 12 лютого 2013 обычная прямая что то не получается появилась идея полувинтовой хотелось бы сильно за размеры не выходить буду благодарен за помощь Посилання на коментар Поділитися на інших сайтах More sharing options...
Сельдь(и)рейка Опубліковано: 12 лютого 2013 Поділитись Опубліковано: 12 лютого 2013 Не все понятно из Ваших эскизов. А лучше добавьте фото с места событий. Посилання на коментар Поділитися на інших сайтах More sharing options...
artem224 Опубліковано: 12 лютого 2013 Поділитись Опубліковано: 12 лютого 2013 Я так понимаю это внешняя лестница на высоту 4,5 м.!!!?? Да не плохо бы фото или планчики более понятные. Посилання на коментар Поділитися на інших сайтах More sharing options...
sokol-bmw Опубліковано: 13 лютого 2013 Автор Поділитись Опубліковано: 13 лютого 2013 Я так понимаю это внешняя лестница на высоту 4,5 м.!!!?? Да не плохо бы фото или планчики более понятные. простите Посилання на коментар Поділитися на інших сайтах More sharing options...
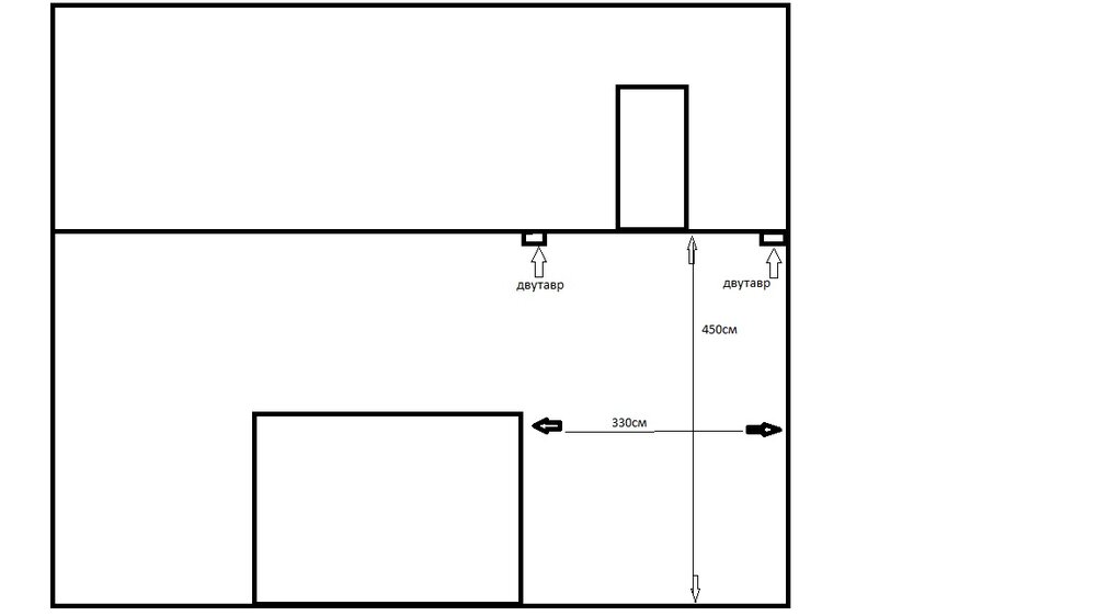
artem224 Опубліковано: 13 лютого 2013 Поділитись Опубліковано: 13 лютого 2013 А двутавры торчат из стены...для чего ? Что там намечается? Возможно спроектировать лестницу вдоль стены прямой марш возможно с площадкой, так чтоб столбы поставить по краям ворот, а лестница естественна пошла выше ворот ??? Посилання на коментар Поділитися на інших сайтах More sharing options...
sokol-bmw Опубліковано: 13 лютого 2013 Автор Поділитись Опубліковано: 13 лютого 2013 (змінено) А двутавры торчат из стены...для чего ? Что там намечается? Возможно спроектировать лестницу вдоль стены прямой марш возможно с площадкой, так чтоб столбы поставить по краям ворот, а лестница естественна пошла выше ворот ??? Там планируется балкон Хотелось бы на ширину стены что нибудь 330см Можно какую нибудь комбинированую типа Винтовая с площадками и переходами в прямую изначально был вот такой план но поменяли внутри расположение и дверь переместилась Змінено 13 лютого 2013 користувачем sokol-bmw Посилання на коментар Поділитися на інших сайтах More sharing options...
Сельдь(и)рейка Опубліковано: 13 лютого 2013 Поділитись Опубліковано: 13 лютого 2013 Там планируется балкон Хотелось бы на ширину стены что нибудь 330см Можно какую нибудь комбинированую типа Винтовая с площадками и переходами в прямую По уму нужно проектировать и лестницу и балкон в комплексе. А возможно еще и с навесами от дождя. Посилання на коментар Поділитися на інших сайтах More sharing options...
M+A Опубліковано: 13 лютого 2013 Поділитись Опубліковано: 13 лютого 2013 простите О! По теме. Может, винтовую забацать? Посилання на коментар Поділитися на інших сайтах More sharing options...
sokol-bmw Опубліковано: 13 лютого 2013 Автор Поділитись Опубліковано: 13 лютого 2013 По уму нужно проектировать и лестницу и балкон в комплексе. А возможно еще и с навесами от дождя. Вот я и прошу помощи А то что то ума не хватает Главное что бы лестница на крышу выходила Посилання на коментар Поділитися на інших сайтах More sharing options...
Сельдь(и)рейка Опубліковано: 14 лютого 2013 Поділитись Опубліковано: 14 лютого 2013 Вот я и прошу помощи Главное что бы лестница на крышу выходила Вам лучше сразу найти исполнителей, которые возьмутся эту работу выполнить. Они сделают необходимые замеры с натуры, нарисуют Вам проект и подсчитают смету на материалы и работу. А так, через удаленку может и не срастись чего либо. Объект специфический, даже правильно замеры сделать проблематично. Посилання на коментар Поділитися на інших сайтах More sharing options...
sokol-bmw Опубліковано: 14 лютого 2013 Автор Поділитись Опубліковано: 14 лютого 2013 Вам лучше сразу найти исполнителей, которые возьмутся эту работу выполнить. Они сделают необходимые замеры с натуры, нарисуют Вам проект и подсчитают смету на материалы и работу. А так, через удаленку может и не срастись чего либо. Объект специфический, даже правильно замеры сделать проблематично. честно говоря привык уже все делать сам (кризис) размеры я все знаю мне просто нужна идея Посилання на коментар Поділитися на інших сайтах More sharing options...
Сельдь(и)рейка Опубліковано: 14 лютого 2013 Поділитись Опубліковано: 14 лютого 2013 размеры я все знаю мне просто нужна идея Тогда присылайте материалы в личку Посилання на коментар Поділитися на інших сайтах More sharing options...
Сельдь(и)рейка Опубліковано: 15 лютого 2013 Поділитись Опубліковано: 15 лютого 2013 Нужны размеры: -Высота ворот? -Высота от верха открытых ворот до низа двутавра? -Высота от верха двутавра до чернового пола на 2-м этаже? -На сколько поднимутся чистые полы на 2-м этаже? А идея такая. Размер 3300 использовать чисто для наклонных маршей. Поворотные площадки сделать, одну над воротами, а вторую над соседним участком. Правая половина ворот будет открываться только на 90 град. Посилання на коментар Поділитися на інших сайтах More sharing options...
sokol-bmw Опубліковано: 16 лютого 2013 Автор Поділитись Опубліковано: 16 лютого 2013 Нужны размеры: -Высота ворот? -Высота от верха открытых ворот до низа двутавра? -Высота от верха двутавра до чернового пола на 2-м этаже? -На сколько поднимутся чистые полы на 2-м этаже? А идея такая. Размер 3300 использовать чисто для наклонных маршей. Поворотные площадки сделать, одну над воротами, а вторую над соседним участком. Правая половина ворот будет открываться только на 90 град. ворота и так на 90град откр апендиксов никаких не хочеться темболее на соседний участок вот еще пару фоток из старых разработок может можно как кто повертеть лестницей ? Посилання на коментар Поділитися на інших сайтах More sharing options...
kvvant Опубліковано: 16 лютого 2013 Поділитись Опубліковано: 16 лютого 2013 ворота и так на 90град откр апендиксов никаких не хочеться темболее на соседний участок вот еще пару фоток из старых разработок может можно как кто повертеть лестницей ? фото 3jpg пост 14. первый марш не на расстоянии от стены , а в плотную к стене , тогда последний марш может получится поворотным и прийдет ступенями в направлении двери . то есть - марш 4 выходит с площадки не под 180 к маршу 3 а всеголиш под 90, и ступая на марш4 вы стоите спиной к дому, потом вверх и вправо ... разворот на 180 и выходите прямо в двери ( нууу примерно в двери). правда последний марш может выйти за общий габарит лестницы .... но он в верху и место на земле не займет . не знаю плохо ли хорошо , вы просили идей вот..... 1 Посилання на коментар Поділитися на інших сайтах More sharing options...
sokol-bmw Опубліковано: 16 лютого 2013 Автор Поділитись Опубліковано: 16 лютого 2013 фото 3jpg пост 14. первый марш не на расстоянии от стены , а в плотную к стене , тогда последний марш может получится поворотным и прийдет ступенями в направлении двери . то есть - марш 4 выходит с площадки не под 180 к маршу 3 а всеголиш под 90, и ступая на марш4 вы стоите спиной к дому, потом вверх и вправо ... разворот на 180 и выходите прямо в двери ( нууу примерно в двери). правда последний марш может выйти за общий габарит лестницы .... но он в верху и место на земле не займет . не знаю плохо ли хорошо , вы просили идей вот..... я про это уже думал поменять местами,только на рисунке не продуман выход на крышу а его нужно придумать ) еще все крутиться идея насчет винтовой я же хочу этот тамбур зашить газоблоком с полукругом красиво должно получиться Посилання на коментар Поділитися на інших сайтах More sharing options...
Сельдь(и)рейка Опубліковано: 17 лютого 2013 Поділитись Опубліковано: 17 лютого 2013 я про это уже думал поменять местами,только на рисунке не продуман выход на крышу а его нужно придумать ) еще все крутиться идея насчет винтовой я же хочу этот тамбур зашить газоблоком с полукругом красиво должно получиться А какая у Вас кровля и какова высота до нее? Винтовая лестница не удобная, по ней затруднено что нибудь занести. На 2-м этаже что планируется? Сколько человек будет подниматься в день по лестнице? Посилання на коментар Поділитися на інших сайтах More sharing options...
ИНОЙ Опубліковано: 17 лютого 2013 Поділитись Опубліковано: 17 лютого 2013 еще все крутиться идея насчет винтовой Вот вам пример винтовой лестницы, тянуть можно на любой этаж (%D1%81%D1%81%D1%8B%D0%BB%D0%BA%D0%B0%20%D0%BD%D0%B0%20%D0%B8%D0%B7%D0%BE%D0%B1%D1%80%D0%B0%D0%B6%D0%B5%D0%BD%D0%B8%D0%B5%20%D1%83%D1%81%D1%82%D0%B0%D1%80%D0%B5%D0%BB%D0%B0) 1 Посилання на коментар Поділитися на інших сайтах More sharing options...
sokol-bmw Опубліковано: 18 лютого 2013 Автор Поділитись Опубліковано: 18 лютого 2013 Вот вам пример винтовой лестницы, тянуть можно на любой этаж (%D1%81%D1%81%D1%8B%D0%BB%D0%BA%D0%B0%20%D0%BD%D0%B0%20%D0%B8%D0%B7%D0%BE%D0%B1%D1%80%D0%B0%D0%B6%D0%B5%D0%BD%D0%B8%D0%B5%20%D1%83%D1%81%D1%82%D0%B0%D1%80%D0%B5%D0%BB%D0%B0) меня бы даже какой то комбинированнный вариант больше устроил возле стены прямой марш а от полукруг винтовой или вместо площадок винтовые соединения Посилання на коментар Поділитися на інших сайтах More sharing options...
artem224 Опубліковано: 19 лютого 2013 Поділитись Опубліковано: 19 лютого 2013 я про это уже думал поменять местами,только на рисунке не продуман выход на крышу а его нужно придумать ) еще все крутиться идея насчет винтовой я же хочу этот тамбур зашить газоблоком с полукругом красиво должно получиться дак нарисуйте тамбур-его размеры внутри. И высоты 2-го этажа и крыши .Где проходы и тд.. и вам любая фирма спроектирует. Посилання на коментар Поділитися на інших сайтах More sharing options...
Рекомендовані повідомлення
Створіть акаунт або увійдіть у нього для коментування
Ви маєте бути користувачем, щоб залишити коментар
Створити акаунт
Зареєструйтеся для отримання акаунта. Це просто!
Зареєструвати акаунтУвійти
Вже зареєстровані? Увійдіть тут.
Увійти зараз