Перейти до публікації
Пошук в
  • Додатково...
Шукати результати, які містять...
Шукати результати в...

Потрібно комплексне рішення по опаленню і водопостачання в будинку. с.Гатне

zalex_ua

Рекомендовані повідомлення

Потрібно комплексне рішення по опаленню і водопостачання в будинку.

с.Гатне К-С району.

 

Вірю що такі речі повинні робити фахівці а самостійно про таке думати не варто, хоча сам як кажуть «технар».

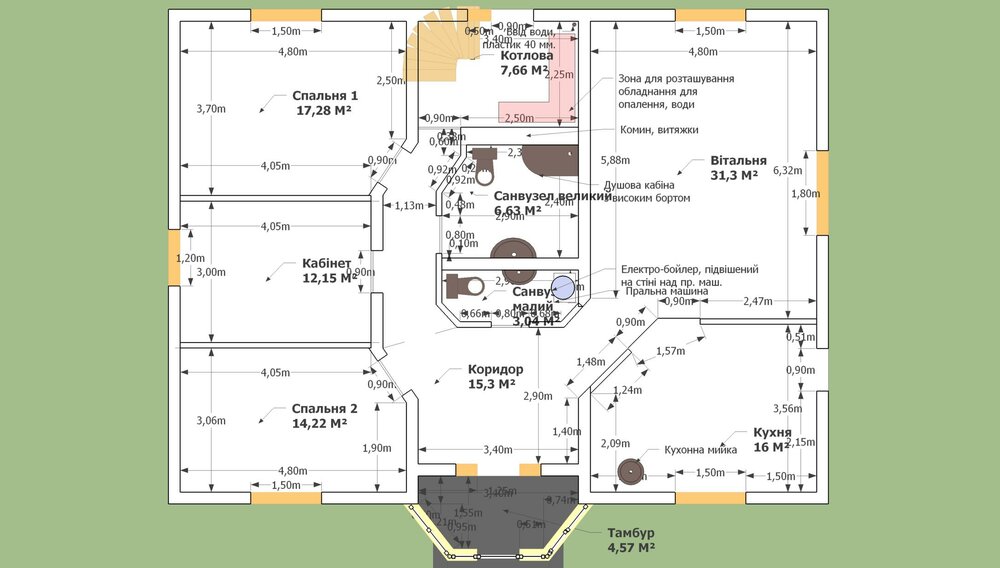
Будинок одноповерховий, загальна площа кімнат під опалення – 124м2, ще є неопалюваний тамбур при вході - 5 м2. Висота стелі зараз 3м.

Але є мансарда і в майбутньому (через роки) *можливо* там буде кімната 33 м2 з висотою стелі 2,5 м. Звісно вона якщо буде робитись то буде утеплюватись. Постійного використання її в взимку взагалі ніколи не бачу, але «бекап спальних місць» коли прижають родичі/гості повинен бути.

 

Розмір будинку зовні – 14*10,5м., відповідно площа стін (без мансарди) – 441 м2

Висота вікон 1,4 м., загальна площа остіклення (в т.ч. двоє дверей) – 18 м2. П’яти-камерний профіль, двокамерний склопакет з енергосклом.

 

Перекриття стелі всього поверху – дерево, утеплення 200 мм. (плити мінеральної вати PROFLINE 100 мм *2). На мансарді 60% поверхні підлоги (центр) зашито плитою OSB 22 мм., решту (боки) ще зашию, але тонким OSB. Стеля буде гіпсокартон.

Зараз крім перекриття стелі на криші нічого не утеплено.

Стіни – газоблок Стоунлайт 250 мм, буде ще зовнішнє утеплення стін 100 мм. ППС під короїд.

Внутрішніх робіт поки що немає ніяких.

 

Опалення – буде електричним котлом (газ далеченько, дорого, бюджету на нього нема, не планую його підключення взагалі). Електричної потужності вводу (3 фази) достатньо – доля довела до встановлення власного трансфоматора.

Розуміння витрат на опалення електрикою і специфіки є повне, форум начитався. Але треба передбачити можливість (місце, схему «розвязки» в котловій) включення ТТ котла. Розгляну можливість його вставлення одразу (зараз буде достатньо дуже грубого вашого кошторису на це).

В зв’язку з мансардою, котел (котли) має бути із запасом потужності. У випадку якщо ніякого ТТ котла не буде взагалі, то електричний варто підібрати із запасом потужності щоб змогти підігріти мансарду при потребі.

Постійно проживаючих – 3 чоловіки.

 

Чому ТП ?

Виходжу з логіки що зараз бетонну чорнову стяжку треба утепляти (ППС 30 - 40 мм. мабуть) а потім треба буде бетонну стяжку 5-7 см. (максимум пирога – 10см.) тому буде гріх роблячи це (матеріал+робота) не покласти труби для ТП. Я правий ?

Орієнтуюсь на якісну (поліпропіленову ?) трубу для ТП.

Читав цей форум достатньо багато, багато думок є які суперечать одна одній і я пробую між ними знайти баланс. Зокрема те що ТП в спальнях не є добре, бо для сну некомфортна висока температура а навпаки краще понижати.

Покриття підлоги буде: спальні, кабінет, вітальня - ламінат, все решта - плитка.

 

Виходячи з того що я дуже полюбляю автоматику/автоматизацію, як вихід з ситуації бачу наступний підхід: терморегулятори (чи просто датчик температури ?) в кожну кімнату (в підлогу чи на стіну?), центральний «контролер» до якого будуть підключатись (дротом) ці терморегулятори і відповідно встановлення сервоприводів на гребінку для індивідуального регулювання контурів. Контроллер повинен бути розумним із можливістю задавати індивідуальний режим протягом доби і тижня для кожної кімнати.

Наприклад щоб за 1 годину до планового сну температуру можна було почати понижувати щоб комфортно було спати. Можливість інтеграції з ПК буде привабливою (моніторинг - моя стихія :) ), якщо ця опція не сильно дорога то готовий піти на ці витрати.

Кількість сервоприводів і зон регулювання – пропонуйте виходячи із площ і призначення кімнат.

 

Енергоакамулятор?

Думав, хотів, але великі сумніви за нього - розумію якщо його не планувати зараз (загальний бюджет не резиновий) то потім його «інтегрувати» в СО буде або складно або дорого. Якщо ж резон щоб його ставити Є і тільки зараз то я можливо на це піду, залежить від ціни питання.

Читав гілки про 2-х 3-х зонні лічильники електрики і досі не впевнений чи варто воно того по відношенню до себе бо площа в мене невелика і все ж подумую про ТТ котел для бекапу.

Також про опалення батареями – читав що або точно ТП буде не достатньо, або є ризик що може бути недостатньо. Або наприклад з часом на практиці стане зрозуміло що ТП в спальнях взимку буде дуже некомфортним і це буде серйозною проблемою.

ТОМУ мене цікавить зараз можливість закласти розводку труб опалення *за допомогою батарей*, але не підключати їх, і навіть виводи зі стін залишити під шпаклівкою на стінах (фото з рулеткою на майбутнє зробити). Тобто це буде резервний сценарій щоб без великих складностей можна було включити батареї в СО при потребі. Тут я собі бачу простий сценарій – дві гілки: 1) на дві спальні і кабінет, 2) на вітальню. Прора***те грубо закладку цих труб будь ласка.

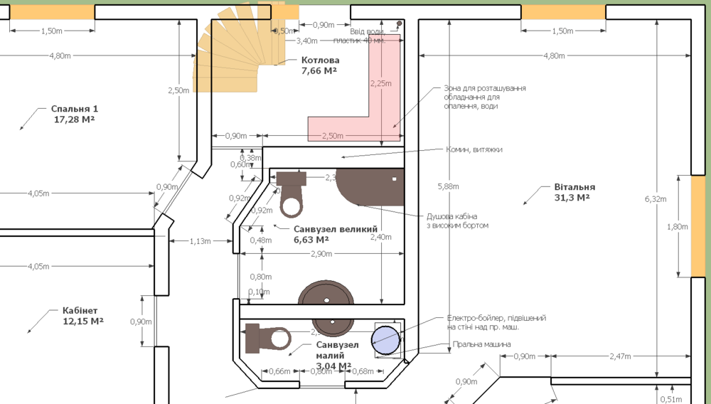
Крім опалення мова йде також про водопостачання (на кресленні вказано де і що). Каналізаційні труби закладені і вивід з будинку зроблено. Єдине що треба буде зробити – 1 метр каналізаційної труби до пральної машини і ще деякий дріб’язок.

 

ГВС.

Думаю від бойлера, розміщення див. на схемі. Які є ідеї для альтернативного підходу (без окремого бойлера) то висловлюйте.

 

Джерело води.

Криниця на відстані 7 м. від точки вводу в будинок. Дзеркало води на відстані 2м., стовп води 2-2,5 м. Встановлення одразу початкового *недорогого* фільтру(ів) для механічної очистки води мабуть варто запланувати.

Скважини немає і не планується. Ніяких рішень для подачі води з криниці в будинок поки немає, пропонуйте, в т.ч. гідроакумулятор.

 

ЕТАПИ.

Звісно мене цікавить комплексний підхід щоб одна людина робила «проектування», розкладку труб (ТП+інше), монтувала котельню, запускала і в певній мірі відповідала за функціонування/ефективність системи.

Але в силу будівельних процесів і «графіку» наявності фінансів то все треба буде розбити на 2 стадії: 1) все те щоб можна було залити чистову стяжку і робити «внутрянку» 2) все решта.

Тому прохання розбити фінанси на ці дві складові.

Першу стадію можна робити буквально «зараз». Другу – через пару місяців.

Зараз – це після того як ми домовились і у вас наприклад є свій електрогенератор для проведення робіт, або якщо генератора немає то я чекаю підключення вводу електроенергії через пару тижнів, сподіваюсь.

Витрати на першу стадію в пропозиції мені потрібно бачити відносно точні і одразу (думаю це не складно порахувати) , на другу стадію – можемо обговорювати і планувати, але опис кошторису хоча б в загальному повинен бути.

 

В пропозиції прошу вказати точні марки обладнання і базових матеріалів щоб я мав змогу про них сам почитати при вивченні пропозиції.

 

З повним розумінням ставлюсь до того що ви витрачаєте час на аналіз і підготовку пропозицій (сам з таким стикався, але в сфері ІТ/систем безпеки) тому представлення мені умовно точно «проекту» і кошторису готовий компенсувати, в порядку домовленості.

 

Писав це все з метою щоб скоротити можливу балаканину по телефону по з'ясовуванні технічних/інших деталей. Виїзд на об’єкт абсолютно можливий якщо ваша базова пропозиція буде приваблива і я відчую вашу професійність.

 

Деякі внутрощі і зовнішній вигляд будинку (якщо потрібно) можна побачити в атачах в іншому моєму тендері тут www.stroimdom.com.ua/forum/showthread.php?t=120042

 

Оплата – тільки по факту, порядність зі свого боку гарантую. Письмовий договір – бажано.

Креслення для цього тендеру – в атачі.

Сподіваюсь нічого не забув, і слава богу я врешті решт це дописав, і дякую якщо дочитали :)

 

І останнє – бюджет не резиновий, тобто обмежений ;)

663912326_-.thumb.jpg.19e42a5b265357462ecc148b0112f1bb.jpg

1403782965_--.thumb.png.4c163578846b3eee6043d28d0f8b07b8.png

Посилання на коментар
Поділитися на інших сайтах

Шановний Korni, раніше думав що заповню ваш «опроснік» і супровідні документи, проглядав їх, але боюсь що не осилю :), вибачте.
Посилання на коментар
Поділитися на інших сайтах

Розмір будинку зовні – 14*10,5м., відповідно площа стін (без мансарди) – 441 м2

 

Прошу вибачення, щось я порахував об'єм (441м3) а не площу :)

Вірна площа стін (без мансарди) - 147 м2

 

п.с. перший пост відредагувати вже не можу, тому пишу як окремий коментар.

Посилання на коментар
Поділитися на інших сайтах

Створіть акаунт або увійдіть у нього для коментування

Ви маєте бути користувачем, щоб залишити коментар

Створити акаунт

Зареєструйтеся для отримання акаунта. Це просто!

Зареєструвати акаунт

Увійти

Вже зареєстровані? Увійдіть тут.

Увійти зараз
×
×
  • Створити...