Николай В Опубліковано: 4 березня 2013 Поділитись Опубліковано: 4 березня 2013 Нужен специалист для строительства коробки небольшого садового домика (Киев, Осокорки), возможно на отдельные этапы работ: заливка фундамента, укладка блоков, ... . Помощники для выполнения подсобных работ имеются. Размер домика 8*8,2, плюс гараж. Фундамент ленточный, стены - газоблок, перекрытия - монолит или панели. Планируем начало строительства - весна 2013. Посилання на коментар Поділитися на інших сайтах More sharing options...
yrbasio Опубліковано: 5 березня 2013 Поділитись Опубліковано: 5 березня 2013 Нужен специалист для строительства коробки небольшого садового домика (Киев, Осокорки), возможно на отдельные этапы работ: заливка фундамента, укладка блоков, ... . Помощники для выполнения подсобных работ имеются. Размер домика 8*8,2, плюс гараж. Фундамент ленточный, стены - газоблок, перекрытия - монолит или панели. Планируем начало строительства - весна 2013. Проект,эскизы.можно глянуть. Посилання на коментар Поділитися на інших сайтах More sharing options...
sergeya07 Опубліковано: 6 березня 2013 Поділитись Опубліковано: 6 березня 2013 Специалисты к помощникам есть, можем приступать с апреля месяца. Посилання на коментар Поділитися на інших сайтах More sharing options...
80679404650@mail.ru Опубліковано: 6 березня 2013 Поділитись Опубліковано: 6 березня 2013 У закзчика уже есть подсобники- помощники. Ему нужен СПЕЦИАЛИСТ для обучения этих помощников и строительства домика 2 в 1. А какая оплата интересно мастеру-наставнику будет? Посилання на коментар Поділитися на інших сайтах More sharing options...
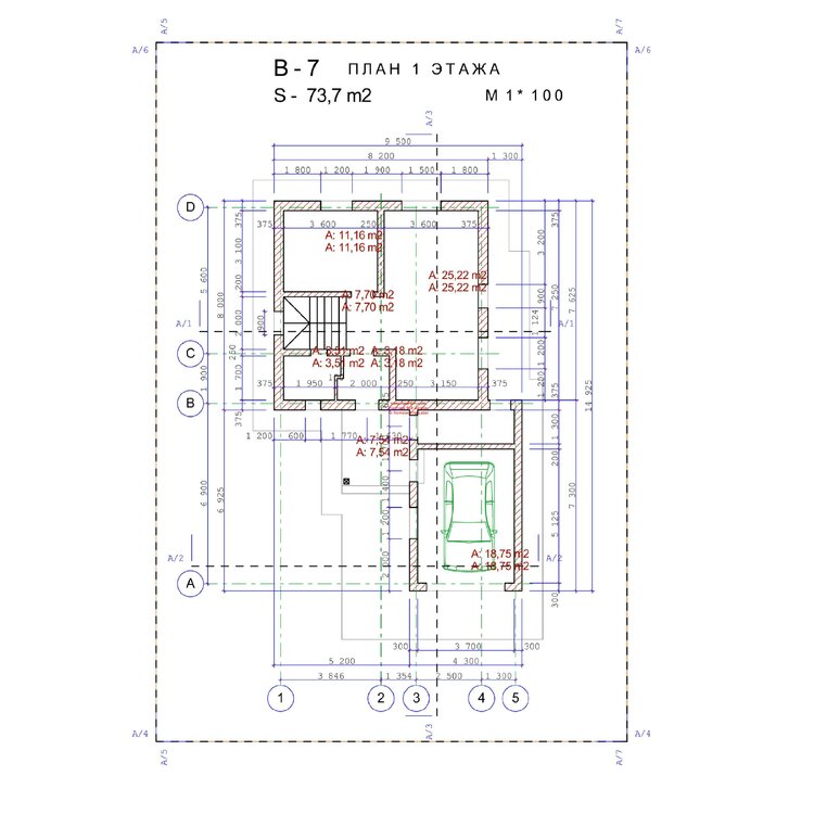
Николай В Опубліковано: 6 березня 2013 Автор Поділитись Опубліковано: 6 березня 2013 Спасибо всем, кто ответил. Обдумываю предложения. Эскиз первого этажа: . Посилання на коментар Поділитися на інших сайтах More sharing options...
sergeya07 Опубліковано: 8 березня 2013 Поділитись Опубліковано: 8 березня 2013 У закзчика уже есть подсобники- помощники. Ему нужен СПЕЦИАЛИСТ для обучения этих помощников и строительства домика 2 в 1. А какая оплата интересно мастеру-наставнику будет? Я и написал "Специалисты К помощникам есть" - не пойму в чем поправка?! Посилання на коментар Поділитися на інших сайтах More sharing options...
Рекомендовані повідомлення
Створіть акаунт або увійдіть у нього для коментування
Ви маєте бути користувачем, щоб залишити коментар
Створити акаунт
Зареєструйтеся для отримання акаунта. Це просто!
Зареєструвати акаунтУвійти
Вже зареєстровані? Увійдіть тут.
Увійти зараз