radost Опубліковано: 14 квітня 2013 Поділитись Опубліковано: 14 квітня 2013 Ищу дизайнера для проектирования комнаты 13летней девочки. Дом в с.Погребы Броварского р-н, комната 27кв.м. Свои работы прошу присылать на эл.адрес., при нахождении общих точек соприкосновения будет еще спальня, кабинет-холл. Посилання на коментар Поділитися на інших сайтах More sharing options...
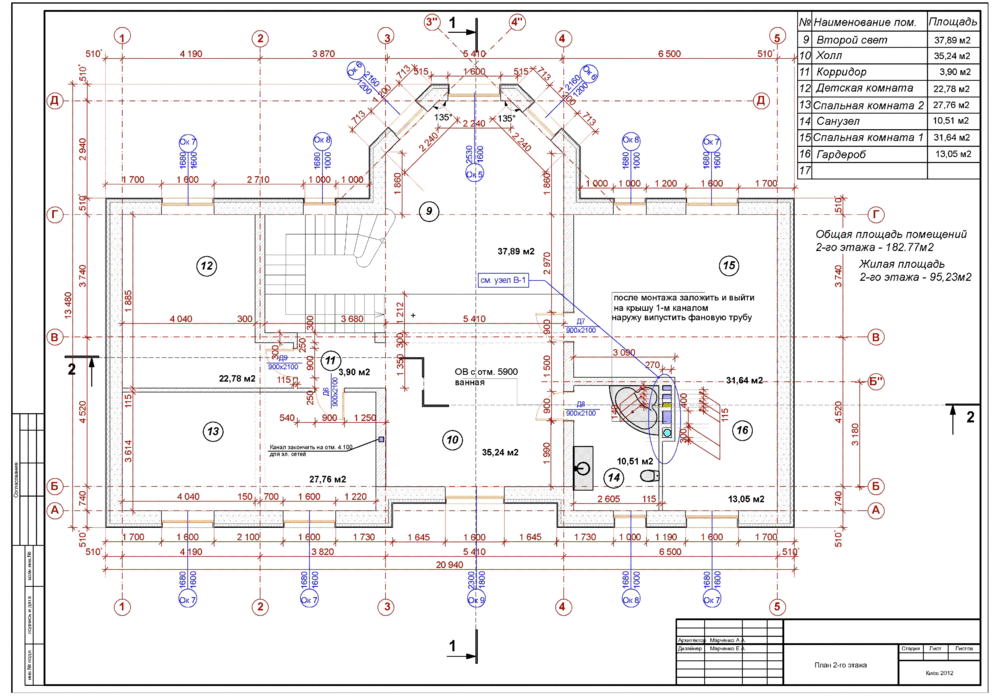
radost Опубліковано: 16 квітня 2013 Автор Поділитись Опубліковано: 16 квітня 2013 1. Желающих сотрудничать, прошу высылать свое портфолио и стоимость работы; 2. Что надо: - отделка потолка/стен/полов/окон; - калькуляция, расклад материалов; - расстановка мебели; - визуализация проекта 3D; - несколько цветовых решений; - дизайн интерьера - классический; План прилагаю. Интересует №13 "Детская комната", при благоприятном исходе №12,15,16 Предложения рассматриваю до 26.04. Посилання на коментар Поділитися на інших сайтах More sharing options...
Архимас Опубліковано: 21 квітня 2013 Поділитись Опубліковано: 21 квітня 2013 Хорошо что написали, где квартира, сейчас Вас одесситы закидают предложениями Кстати Вы рассматриваете предложения от дизайнеров из других городов, или только с киевлянами работаете? Посилання на коментар Поділитися на інших сайтах More sharing options...
radost Опубліковано: 24 квітня 2013 Автор Поділитись Опубліковано: 24 квітня 2013 Спасибо всем откликнувшимся помочь С дизайнером определилась, надеюся на плодотворное сотрудничество. Тема закрыта. Посилання на коментар Поділитися на інших сайтах More sharing options...
Рекомендовані повідомлення