Перейти до публікації
Пошук в
  • Додатково...
Шукати результати, які містять...
Шукати результати в...

Посоветуйте. Вода в доме колодец+бочки

@sms

Рекомендовані повідомлення

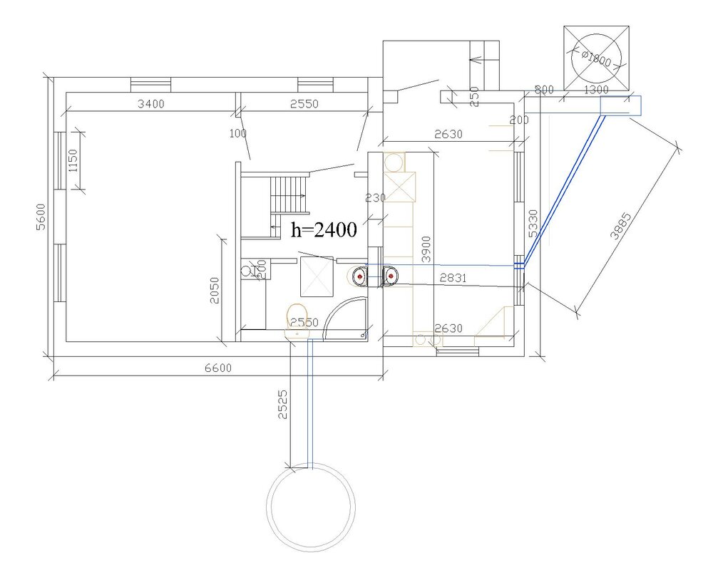
Подскажите советом знающие.

Цель: Вода в доме: душ + 2 умывальника.

Что имеем:

Колодец с опущенной трубой с обратным клапаном

- заведена в приямок

- в приямке насос

-труба заведена в санузел и подмаем на 2й эт.

- 2 эт -труба заведена сверху в 2бочки с переливами

- с 2го вода самотеком спускается на 1эт в санузел в бойлер от 0,5атм

- подача воды на душ

- подача воды на умывальник в санузле

- подача воды на умывальник в кухне

-- слив воды в канализацию. Все.

Вопросы: Имеет ли место быть такая схема?

хватит ли давления?

не могу пока сообразить с автоматикой ..

 

разводку воды по приборам после бочек планирую делать 3/4 металопластиком.

 

Буду благодарен за советы и подсказки.

 

ПС :Вода нужна на дачный период, на зиму вся система сливается.

plan_santex.thumb.jpg.7a48a7690f1d9f358d72cbf922f7bb74.jpg

Посилання на коментар
Поділитися на інших сайтах

Подскажите советом знающие.

Цель: Вода в доме: душ + 2 умывальника.

Что имеем:

Колодец с опущенной трубой с обратным клапаном

- заведена в приямок

- в приямке насос

-труба заведена в санузел и подмаем на 2й эт.

- 2 эт -труба заведена сверху в 2бочки с переливами

- с 2го вода самотеком спускается на 1эт в санузел в бойлер от 0,5атм

- подача воды на душ

- подача воды на умывальник в санузле

- подача воды на умывальник в кухне

-- слив воды в канализацию. Все.

Вопросы: Имеет ли место быть такая схема?

хватит ли давления?

не могу пока сообразить с автоматикой ..

 

разводку воды по приборам после бочек планирую делать 3/4 металопластиком.

 

Буду благодарен за советы и подсказки.

 

ПС :Вода нужна на дачный период, на зиму вся система сливается.

 

С какой целью Вы ставите бочки?

Если увеличить запас воды, то лучше имеющимся насосом набирать бочки , а после них поставить небольшую станцию повышения давления .

Если цель - "самотёк", можно организовать автоматическую подачу воды из колодца в дом и на систему бочек ,и на систему водоснабжения.

Посредством краников (или электромагнитных клапанов) обеспечивать, то или иное направление жидкости.:lol:

Вобщем:

-На насос (если позволяет) можно поставить реле давления и г/а 24 литра, или реле протока.

Наполнение бочек либо через поплавковый кран, либо придумать как.

Посилання на коментар
Поділитися на інших сайтах

Цель бочек, как запас воды, так и самотек для системы водоснабжения - хотя б холодной для умывальников руки смыть.

а зачем гирдоаккум на 24 литров, его же роль выполняют бочки.

а давления от бочек 0,5-1атм. должно хватить для бойлера низкого давления.

Посилання на коментар
Поділитися на інших сайтах

Створіть акаунт або увійдіть у нього для коментування

Ви маєте бути користувачем, щоб залишити коментар

Створити акаунт

Зареєструйтеся для отримання акаунта. Це просто!

Зареєструвати акаунт

Увійти

Вже зареєстровані? Увійдіть тут.

Увійти зараз
×
×
  • Створити...