MaXXXic Опубліковано: 12 травня 2013 Поділитись Опубліковано: 12 травня 2013 Дачный участок, 6,4 сотки. Дом с возможностью постоянного проживания наружный размер 8,5*15,5. Состав семьи - нас двое, малыш, возможно еще будут детки, да и старшие дети могут в гости приехать, родители. Вобщем, хочется здравой критики, зараннее благодарен. Посилання на коментар Поділитися на інших сайтах More sharing options...
Teletrek Опубліковано: 13 травня 2013 Поділитись Опубліковано: 13 травня 2013 Дачный участок, 6,4 сотки. Дом с возможностью постоянного проживания наружный размер 8,5*15,5. Состав семьи - нас двое, малыш, возможно еще будут детки, да и старшие дети могут в гости приехать, родители. Вобщем, хочется здравой критики, зараннее благодарен. Участок скажем прямо не большой... Где малыш и Вы будете отдыхать ?Только в доме? Возле машины? Сзади дома между 3х деревьев?Лестница в доме забирает очень много жилой площади... Высота (минимум)потолка на 2 этаже? Судя по рисунку на втором этаже там где пишется 15 м кв.будет 6м.кв нормальной -жилой Посилання на коментар Поділитися на інших сайтах More sharing options...
Gothia Опубліковано: 13 травня 2013 Поділитись Опубліковано: 13 травня 2013 1. то что отмечено как "столовая" в итоге использоваться по назначению не будет. Превратится всё в холл-тамбур-гардеробную-кладовую. Лучше уменьшите это помещение, разбейте его на вышеперечисленные зоны или помещения и увеличьте кухню. В кухне и предположите процесс приёма пищи. 2. тамбур-гардероб в лестничной клетке так же нелогичен т.к. никто через гостиную бегать с одеждой не станет. Отдельный вход с улицы на лестничную клетку так же не особо нужен, ИМХО. то что он там вроде бы как запроектирован как основной в итоге таковым не будет. логичнее входить в дом через террасу. 3. балкон на 2м этаже - лишняя трата полезной площади. (то что вы проектируете балкон в частном доме явно указывает на то что сейчас вы проживаете в квартире, не так ли?) 4. вход через гостиную в котельную так же нелогичен и неуютен. объедините все тех помещения в один участок. 5. добавьте санузел на 1м этаже! 6. уменьшите площадь лестничной клетки. уберите проём между маршами, это та же пустая трата пространства. 1 Посилання на коментар Поділитися на інших сайтах More sharing options...
Александр2008_111 Опубліковано: 13 травня 2013 Поділитись Опубліковано: 13 травня 2013 Перший поверх потрібно перепланувати. Якщо поміняти спальню і С/У це дасть можливість об'єднати витяжки і димоходи в одну трубу. 1 Посилання на коментар Поділитися на інших сайтах More sharing options...
MaXXXic Опубліковано: 13 травня 2013 Автор Поділитись Опубліковано: 13 травня 2013 О! Класс! Поток критики пошел) Попробую аргументировать. 2 Gothia: п1. Столовая является частью гостиной, ничем не отделена. п2. Тамбур, он же прихожая. Никто там постоянно вещи хранить не будет. Насчет основного входа в дом - Попадаем в дом именно через тамбур, потом можем открыть роллеты, и пользоваться входом через террасу, который нелогично делать основным, хотя он будет часто использоваться, возможно чаще, чем через тамбур. п3. Балкон... Пока под вопросом. Все его недостатки вполне осознаю. В пользу балкона - нужно накрытие над террасой (юг), хороший вид со второго этажа, фасадообразующее значение. Хотя еще раз повторю, балкон под вопросом. п4. Вход из гостиной в санузел/котельную и комнату "спрятан". Логичнее он у меня пока не получается, не вижу. п5. Санузел 1 этажа есть, он совмещен с котельной. Делить эти два помещения не хочется для экономии места. п6. Нет. Трехмаршевая лестница съедает пространство, но она получается светлой и удобной для эксплуатации. На лестнице площадь экономить не буду, не хочу потом ходить и клясть себя, что не сделал ее на 10 см шире... 2 Teletrek: Участок какой есть... Следующий будет больше - построим дом больше))) Насчет отдыха - таки есть проблема. Мучаюсь в выборе между площадями дома и участка, пока дом выигрывает, хотя от первоначальных 350м2 осталось около 170, и процесс "ужатия" аппетитов не завершен. Про лестницу написал выше. Высота стен на втором этаже до кровли - 190 см, не менее. При этом значении внутренняя высота второго этажа до конька 4.20. (многовато) На фотках - пространство "гостиная-столовая", без отделки, для "почувствовать объем". Посилання на коментар Поділитися на інших сайтах More sharing options...
MaXXXic Опубліковано: 13 травня 2013 Автор Поділитись Опубліковано: 13 травня 2013 2 Александр2008_111: У самого була ідея поміняти місцями кімнату та с/у. Що непокоїть: забагато каналів буде на короткому проміжку стіни - димар каміну, димар котла, 2 вентканали, шахта для труб водопостачання та опалення. На користь розміщення, як на малюнку - близькість до криниці (ввод води в будинок), вид з вікон - з санвузлу вікно виходить на глуху стіну сараю сусіди, на північ - на глуху сторону бесідки/барбек'ю другого сусіди. Але в будь-якому разі дякую за критику, самого непокоїть ця група приміщень. Посилання на коментар Поділитися на інших сайтах More sharing options...
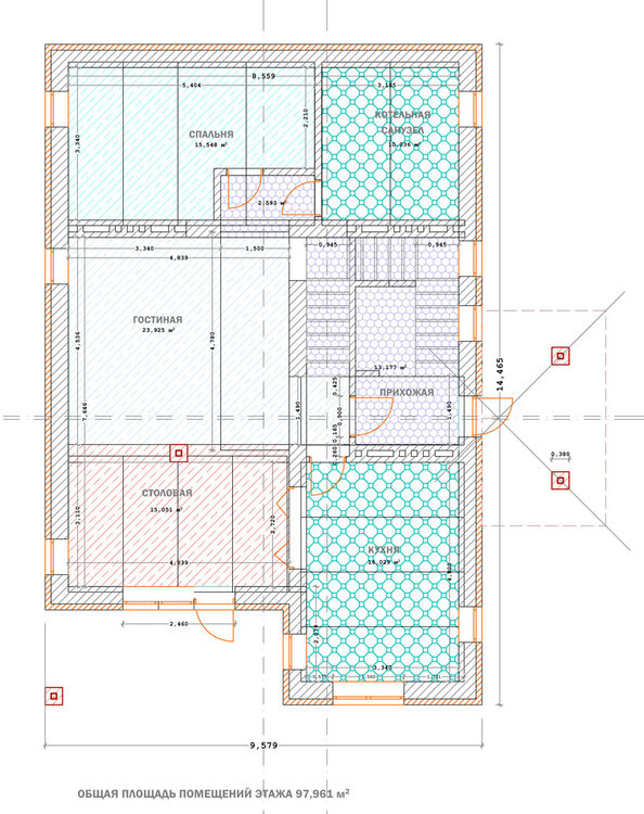
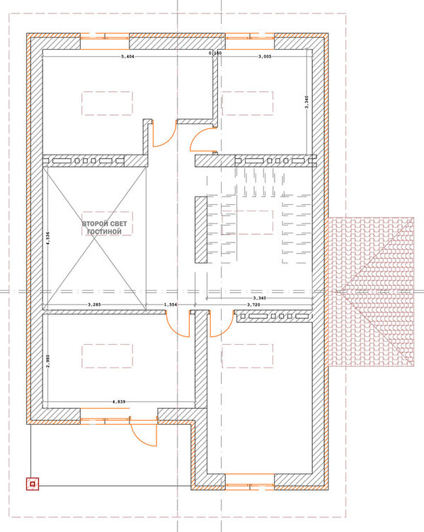
MaXXXic Опубліковано: 13 травня 2013 Автор Поділитись Опубліковано: 13 травня 2013 Планы в размерах. Не окончательное решение по окнам и вертикальным коммуникациям (вентканалам, дымоходам и т.д.). Да в принципе по всему НЕ окончательное решение :D. Всем большое спасибо за критику) Вместе мы сделаем дом лучше))) Что не нравится - второй этаж, зона комната-санузел (верх плана). Обособить санузел, прикрепив его к спальне, хочется, но тогда все обитатели второго этажа кроме хозяев будут бегать вниз... Посилання на коментар Поділитися на інших сайтах More sharing options...
MaXXXic Опубліковано: 13 травня 2013 Автор Поділитись Опубліковано: 13 травня 2013 Вид участка с юга на север (от входа вглубь). Что хотелось воплотить в плане: ориентация гостиной-кухни на юг, ко входу на участок. Север, северо-восток - минимум окон (соседи и их постройки). Еще не решил, какая из спален будет хозяйской (мастер). Посилання на коментар Поділитися на інших сайтах More sharing options...
Александр2008_111 Опубліковано: 14 травня 2013 Поділитись Опубліковано: 14 травня 2013 На Ваших планах на внутрішніх стінах білі квадратики і прямокутники то вентканали і димоходи? Посилання на коментар Поділитися на інших сайтах More sharing options...
Teletrek Опубліковано: 14 травня 2013 Поділитись Опубліковано: 14 травня 2013 На фотках - пространство "гостиная-столовая", без отделки, для "почувствовать объем". Не впечатлило... Что планируете в гостинной?Или "чтоб було"? Я к тому что забираете жилую площадь, а гостинная- летом на улице, зимой- в зимнем саду... Дачный участок-дача?Или пост. проживание?Это важно. Неудобное расположение камина.... Котельная+санузел на 1 реально мало,только котельная... Посилання на коментар Поділитися на інших сайтах More sharing options...
MaXXXic Опубліковано: 15 травня 2013 Автор Поділитись Опубліковано: 15 травня 2013 Участок - дачный кооператив. Дом планирую под постоянное проживание круглый год. Гостиная - мягкая мебель под большую компанию, журнальный стол, телек дюймов на 50 на стену лестницы, камин и кресло у него (кста, чем неудобно место под камин?). Зона столовой - стол на 6 - 8 человекомест. Добавлено через 3 минуты 2 Александр2008_111 білі квадратики - так, вентканали, димарі будуть ширші(25*25), шахти під труби ХВ, ГВ, К, ОП. Посилання на коментар Поділитися на інших сайтах More sharing options...
Александр2008_111 Опубліковано: 15 травня 2013 Поділитись Опубліковано: 15 травня 2013 білі квадратики - так, вентканали, димарі будуть ширші(25*25), шахти під труби ХВ, ГВ, К, ОП. Тоді виходить, що Ви запланували 6 витяжок з кухні, 6 з вітальні і 7 з котельні. Не забагато? Посилання на коментар Поділитися на інших сайтах More sharing options...
maygoor Опубліковано: 15 травня 2013 Поділитись Опубліковано: 15 травня 2013 дом не пропорционально отображен на участке... там будет и во дворе место. п.с. красиво нарисовано Посилання на коментар Поділитися на інших сайтах More sharing options...
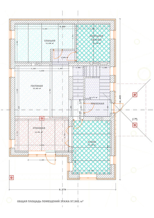
MaXXXic Опубліковано: 15 травня 2013 Автор Поділитись Опубліковано: 15 травня 2013 На картинках: разобрался с каналами на 1 этаже. Положение дома на участке. Посилання на коментар Поділитися на інших сайтах More sharing options...
Александр2008_111 Опубліковано: 15 травня 2013 Поділитись Опубліковано: 15 травня 2013 Тепер кількість каналів майже відповідає нормам. Посилання на коментар Поділитися на інших сайтах More sharing options...
MaXXXic Опубліковано: 15 травня 2013 Автор Поділитись Опубліковано: 15 травня 2013 Та майже... Але мені конче не подобаються три димарі на даху... Ще думаю... Або з кухні робити витяжку прямо через стіну. Посилання на коментар Поділитися на інших сайтах More sharing options...
vladimir_arch Опубліковано: 16 травня 2013 Поділитись Опубліковано: 16 травня 2013 1. то что отмечено как "столовая" в итоге использоваться по назначению не будет. Превратится всё в холл-тамбур-гардеробную-кладовую.Какие основания так думать? Лучше уменьшите это помещение, разбейте его на вышеперечисленные зоны или помещения и увеличьте кухню. В кухне и предположите процесс приёма пищи.Не все видят кухню, как единственно возможное место приёма пищи. Некоторые для этого используют специально отведённое помещение, и если оно к тому же расположено рядом с гостиной, то это придаёт ощущение простора, ну и + некоторые практические выгоды при проведении семейных праздников. 2. тамбур-гардероб в лестничной клетке так же нелогичен, т. к. никто через гостиную бегать с одеждой не станет. А зачем, простите за непонимание, бегать с одеждой через гостиную? И куда? Отдельный вход с улицы на лестничную клетку так же не особо нужен, ИМХО. то что он там вроде бы как запроектирован как основной в итоге таковым не будет. логичнее входить в дом через террасу. Не знаю, в чём, собственно, проблема - пройти к тамбуру, воздержавшись от входа в столовую или на кухню. Большинство жилых функций сосредоточено вокруг лестничной клетки, она является коммуникационным центром, поэтому туда войти логичнее всего. И так оно в жизни и будет в большинстве случаев. Ну, а если в сухую и тёплую погоду кто-то и пройдёт с улицы прямо в дом, то это нормально. 3. балкон на 2м этаже - лишняя трата полезной площади. (то что вы проектируете балкон в частном доме явно указывает на то что сейчас вы проживаете в квартире, не так ли?) Спорный вопрос. Кто-то видит в балконе смысл, кто-то - нет. Можно говорить о том, какой вид будет с террасы и балкона над ней, и тогда уже рассматривать необходимость этих пространств. 4. вход через гостиную в котельную так же нелогичен и неуютен. объедините все тех помещения в один участок. Вообще-то, проходная гостиная - нередкое решение для домов на узких участках (если не единственно возможное), а уж "поток посетителей" в топочную вообще не смущает. Вполне может быть, как на меня. Судить и решать тут - хозяину. 5. добавьте санузел на 1м этаже! Там он есть (вместе с топочной), хотя вот этот как раз момент хотелось бы увидеть в деталях - это будет одно помещение, или раздельно? 6. уменьшите площадь лестничной клетки. уберите проём между маршами, это та же пустая трата пространства.Очень "вкусовой" вопрос. Моё же мнение - планировочное решение плотно сбито, прагматично, и не без элементов некоторой "роскоши" - двухсветная гостиная, широкая лестничная клетка, "проглядывающая" в пространство гостиной. При этом всё удалось поместить в прямоугольный объём (что будет с благодарностью воспринято каменщиками), и решить вопросы соблюдения градостроительных норм (отступы от границ). Архитектору - респект. Несколько простоватый внешний вид возможно удастся принарядить с помощью отделки фасадов. Добавлено через 5 минут Неудобное расположение камина.... Да вроде, нормальное... Нельзя ли поконкретнее? Добавлено через 6 минут не подобаються три димарі на даху... Або з кухні робити витяжку прямо через стіну. Не будет естественной тяги. Придётся ставить там вентилятор, и держать его почти всегда включённым. Ещё один минус такого решения - как на это дело посмотрят при приёмке газового прибора - плиты. Помещение, в котором есть плита, должно быть оборудовано каналом ест. вент. Я обычно на кухне делаю 2 канала - один естественный, 140 х 140, второй - для вентилятора зонтика над плитой, 140 х 270 или 140 х 140. Отдельный канал для фановой трубы тут не очень и нужен (если я правильно понял предназначение второго нарисованного Вами канала). Так что я бы оставил нынешнее решение. Не очень-то и калечат кровлю эти 2 групповых вентсборника. Тем более, что стоят они вдоль потока воды, да и размер второго, кухонного, невелик. 1 Посилання на коментар Поділитися на інших сайтах More sharing options...
MaXXXic Опубліковано: 16 травня 2013 Автор Поділитись Опубліковано: 16 травня 2013 2 vladimir_arch: Спасибо на добром слове! Архитектор я сам себе, но в данном случае, именно как в названии темы, глаз "замылился" - не вижу очевидных ошибок, топчусь на месте. Критика помогла переосмыслить некоторые места в доме - северную часть, видимо, перекроЮ под панели 4.20 вместо 3.60, разбираюсь с узлом "котельная/санузел". Мне довелось пожить в небольшом доме, где котельная была совмещена с санузлом - котел висел на стене, был размером с газовую колонку и совершенно не мешал установить все остальное оборудование, даже хозяин туда сауну воткнул, хотя без сауны было бы совсем просторно (см. фото). В моем случае в этом помещении еще появится бойлер, очистка воды, возможно ресивер ХВ. Вот и смотрю, не будет ли тесно. Постараюсь раскидать оборудование на плане, посмотрю, хватает ли места. Посилання на коментар Поділитися на інших сайтах More sharing options...
AndyAntonov Опубліковано: 16 травня 2013 Поділитись Опубліковано: 16 травня 2013 Тамбур, он же прихожая. Не выполняет свою функцию, т.к. в этом же объёме выполнена лестница на второй этаж. Т.е., как гардеробная, может, и будет использоваться, но функцию именно тамбура выполнять не может. 1 Посилання на коментар Поділитися на інших сайтах More sharing options...
MaXXXic Опубліковано: 16 травня 2013 Автор Поділитись Опубліковано: 16 травня 2013 Не выполняет свою функцию, т.к. в этом же объёме выполнена лестница на второй этаж. Т.е., как гардеробная, может, и будет использоваться, но функцию именно тамбура выполнять не может. Логичное замечание. Над вопросом перекрытия этого объема работаю. Посилання на коментар Поділитися на інших сайтах More sharing options...
Ш у р а Опубліковано: 16 травня 2013 Поділитись Опубліковано: 16 травня 2013 Кажись по нормам котельную с с/у совмещать нельзя Посилання на коментар Поділитися на інших сайтах More sharing options...
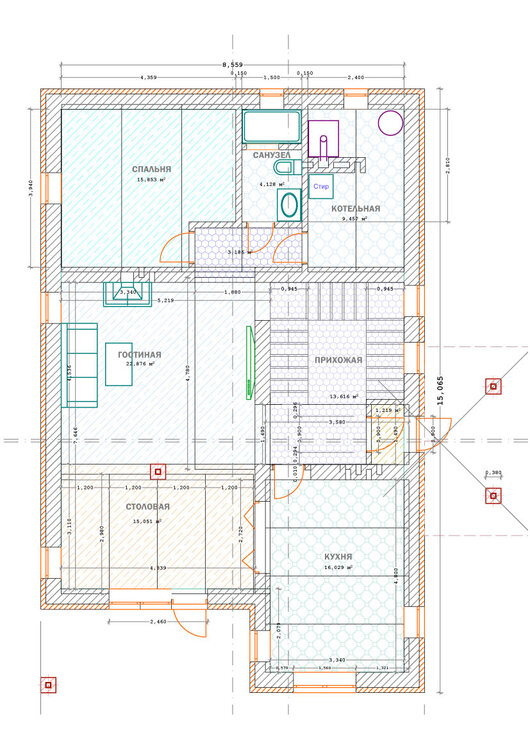
MaXXXic Опубліковано: 19 травня 2013 Автор Поділитись Опубліковано: 19 травня 2013 Изменил тамбур, котельную, санузел. Начинаю думать о виде фасада. Пока не нравится... Посилання на коментар Поділитися на інших сайтах More sharing options...
maygoor Опубліковано: 20 травня 2013 Поділитись Опубліковано: 20 травня 2013 Изменил тамбур, котельную, санузел. Начинаю думать о виде фасада. Пока не нравится... вот Вам прога чтоб вручную не перерисовывать ru.homestyler.com/designer а также можно в 3д посмотреть что получилось Посилання на коментар Поділитися на інших сайтах More sharing options...
Aleksandr17 Опубліковано: 20 травня 2013 Поділитись Опубліковано: 20 травня 2013 (змінено) Изменил тамбур, котельную, санузел. Начинаю думать о виде фасада. Пока не нравится... А зачем делать вентканалы поперек помещения котельной? Сделайте нормально по стене между с/у и котельной, а если хотите выделить зону, то просто перегородку сделать проще! И очень маленкие окна Змінено 20 травня 2013 користувачем Aleksandr17 Посилання на коментар Поділитися на інших сайтах More sharing options...
maygoor Опубліковано: 20 травня 2013 Поділитись Опубліковано: 20 травня 2013 (змінено) Изменил тамбур, котельную, санузел. Начинаю думать о виде фасада. Пока не нравится... я конечно не специалист, но на мой взгляд функции столовой, кухни и гостинной можно совместить в одном помещении... кухня/столовая - типа студио, разделить барной стойкой... или полустеной. функциональность та же, пространства больше, + добавляется одно помещение для более полезных нужд как-то так Змінено 20 травня 2013 користувачем maygoor Посилання на коментар Поділитися на інших сайтах More sharing options...
Рекомендовані повідомлення
Створіть акаунт або увійдіть у нього для коментування
Ви маєте бути користувачем, щоб залишити коментар
Створити акаунт
Зареєструйтеся для отримання акаунта. Це просто!
Зареєструвати акаунтУвійти
Вже зареєстровані? Увійдіть тут.
Увійти зараз