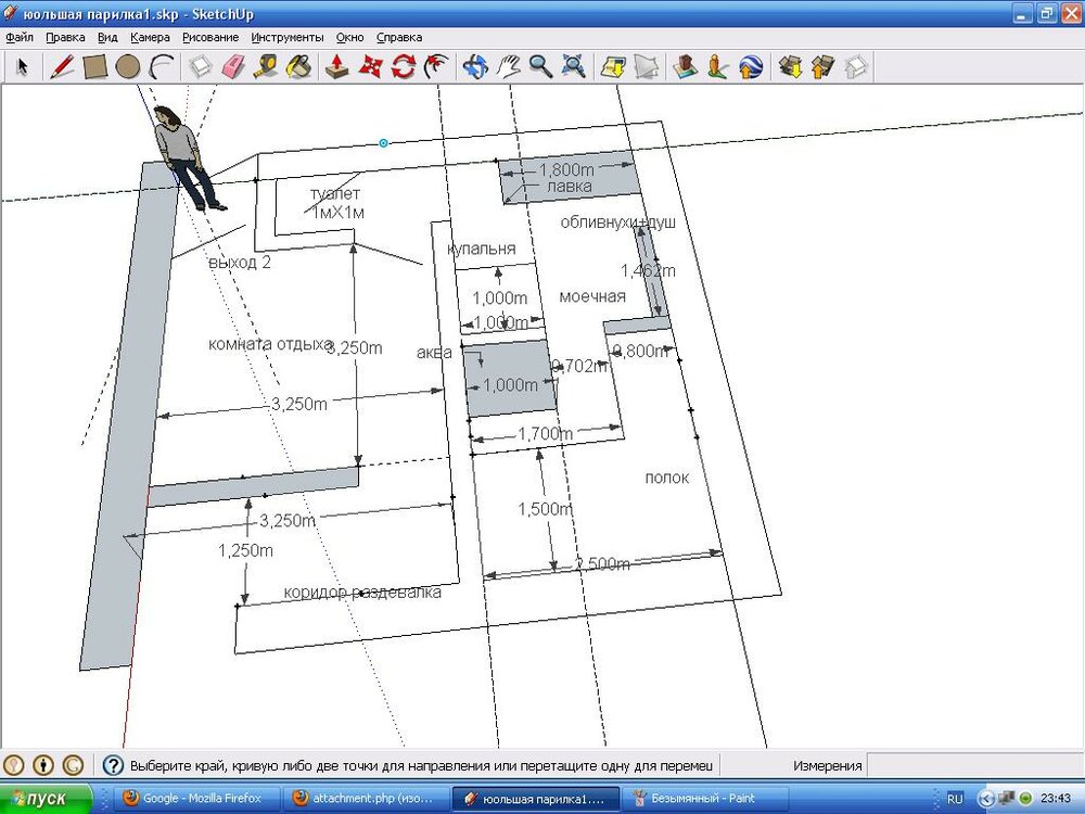
natisk Опубліковано: 15 травня 2013 Поділитись Опубліковано: 15 травня 2013 (змінено) Здравствуйте, планируется постройка бани приблизительная схема во вложении. 1. Не могу определиться со стенами: газобетон, керамоблок, пенобетон; советуют каркасник 2. Прошу покритиковать планировку Змінено 15 травня 2013 користувачем natisk Посилання на коментар Поділитися на інших сайтах More sharing options...
natisk Опубліковано: 15 травня 2013 Автор Поділитись Опубліковано: 15 травня 2013 также критичен вопрос с гидроизоляцией Посилання на коментар Поділитися на інших сайтах More sharing options...
Александр с Донецка Опубліковано: 16 травня 2013 Поділитись Опубліковано: 16 травня 2013 Здравствуйте, планируется постройка бани приблизительная схема во вложении. natisk или Bogdan, на разных ресурсах у Вас ник разный, но люди везде одни и те же. Если Вам на Форуме Банного Братства, уже ответили на Ваши вопросы, то Вы думаете что продублировав тему здесь, ответят как то по другому? Посилання на коментар Поділитися на інших сайтах More sharing options...
natisk Опубліковано: 16 травня 2013 Автор Поділитись Опубліковано: 16 травня 2013 Если честно не понял смысл вашего сообщения. относительно natisk это название района в моем городе, относительно Bogdan - это мое имя. По поводу дублирования сообщения, у меня оставался вопрос по планировке в частности по моечной, после ответа Василия этот вопрос снят, так же как и вопрос по фундаменту см. даты сообщений Остался вопрос по стенам: каркасник, газобетон, пенобетон, или керамоблок Так как каркасник для бани более предпочтительнее я запросил расчет стоимости здания, но к сожалению в том виде коммерческого предложения, который мне сегодня предоставили он для меня не подходит- нет конкретики да и вопрос монтажа остается открытым. По поводу керамоблока -этот вариант более подходит для жилого здания, по пеноблоку и газоблоку Василий свое мнение высказал и я его обязательно учту так же, как учитывал все предложения по планировке. На данном сайте есть ветки по стенам: каркас, керамоблок, газоблок и пеноблок по статистике вы можете посмотреть какие вопросы задавал я и какие ответы давали мне, материалы для меня новые и мнения по поводу данных материалов тоже разные, для того чтобы принять решение я должен сделать выбор и я очень внимательно прислушиваюсь к любой критике и ценю мнение другого человека. Посилання на коментар Поділитися на інших сайтах More sharing options...
Александр с Донецка Опубліковано: 16 травня 2013 Поділитись Опубліковано: 16 травня 2013 Если это коммерческая баня, то начинать нужно не с форума, а с исполкома, с получения на то разрешения и соответственно получить требования от всех соответствующих инстанций. В которых они Вам выдвинут требования соответственно для банных заведение и квадратуры на каждого находящегося там человека, также по расположению на участке относительно других, уже имеющихся зданий. А когда у Вас на руках будут требования от пожарных, санэпидемстанции то уже и плясать, тк потом Вам делать ввод в эксплуатацию. Там и о материале для стен может быть оговорка, а то последнее время народ стал в коммерческих заведениях гореть и при новострое это должно учитываться. Тк помнится мне один товарищ, помоему даже на этом ресурсе, в Киеве делал банный комплекс и бегал по всем инстанциям еще до постройки и планировки. Хотя само здание он кажется нашел в подвальном помещении, но увы точно не подскажу где эта тема находиться и чем закончилась вся история. По планировке Вы с Василием разобрались на том ресурсе, я ответил Вам вчера утром те16.05.2013 07:11 после ответа Василия 15.05.2013 23:21 у него на ресурсе. Посилання на коментар Поділитися на інших сайтах More sharing options...
natisk Опубліковано: 16 травня 2013 Автор Поділитись Опубліковано: 16 травня 2013 Александр я строю баню для себя но с требованиями которые предъявляются к коммерческим баням, буду ли я ее использовать как коммерческую сейчас или через 5 лет все будет зависеть от ее качества и еще многих факторов. Для того чтобы мне ее использовать в коммерческих целях мне сначала нужен хороший результат и мнение людей которые будут в ней париться. Относительно пожарной безопасности баня строится для себя и будет внесена в поэтажный план дома (причем тут новострой) и хотя для этого не требуется разрешения пожарных и сан.станции. будут максимально соблюдены все меры пожарной безопасности, будет стоять пожарный сухотруб и т.д. Вопрос со стенами возник именно из-за пожарной безопасности Размеры здания ограничены именно расположением пятна застройки на 1 м. от забора и 8 метров от ближайшего жилого здания. Относительно парня, который бегал по инстанциям - его главная ошибка была в том что он брал баню в аренду. Александр скажите прямо - что я сделал не так, то что советуюсь со специалистами относительно устройства стен гидроизоляции и планировки здания? Посилання на коментар Поділитися на інших сайтах More sharing options...
Александр с Донецка Опубліковано: 17 травня 2013 Поділитись Опубліковано: 17 травня 2013 Богдан, все нормально Вы сделали, обратившись за советом, ничего плохого в этом не вижу. То что баня будет домашней, ну и может потом коммерческой чем коммерчески заточенной изначально, немного разные вещи, ну да ладно, оставим это. У Вас не может получится плохой бани, тк подход изначально правильный. Нашли печь именно для бани и под нее теперь затачиваете саму баню, обычно наоборот, подстраивают под то что сделали. Из перечисленных материалов, подходят все. Пожаробезопасность бани зависит не от горючести стен, а от соблюдения пожаробезопасных норм. Обычно бани горят из за не соблюдения пожразделок при монтаже печи. Банные металлические печи в основном прямоточки и выхлоп у них нагревается до 1000С, а при несоблюдении расстояний до горючих конструкций приводит к их возгоранию, ну и неподходящие для этого материалы. Так же при монтаже печи, при проходе стен в смежные с парилкой помещения, где будет топка самой печи, не соблюдаются пож.меры при разделке топочного тоннеля. Ну и сама отделка вокруг печи негорючими материалами. Те если печь установлена правильно с соблюдением всех мер пож.безопасности то горючесть стен не особо влияет на грючесть бани, тк поджечь можно все. Как и говорил выше перечисленные материалы подходят все, но с каждым материалом свои особенности при строительстве. Самый простой это каркас. Посилання на коментар Поділитися на інших сайтах More sharing options...
natisk Опубліковано: 17 травня 2013 Автор Поділитись Опубліковано: 17 травня 2013 Александр у каркаса свои преимущества быстрота монтажа, легкий фундамент и т.д. пожаробезопасность деревянного дома мне понятна я жил в многоквартирном деревянном доме с печным отоплением, тем более вы расписали моменты на которые надо обратить внимание. Утром общался с специалистом по каркасному дому, он дал мне ответы на все мои вопросы по коммерческому предложению. Вопрос со стенами возник в связи с тем, что часть работ я буду так как и вы делать самостоятельно, если по блокам мне понятен процесс и есть люди, которых я могу привлечь для строительства, то каркасник и для меня и для строителей, в которых я уверен тема новая. С планировкой я определился, размеры здания ограничены нормами пожарной безопасности, с печью определился, фундамент зависит от стен, кровлю пока планирую плоскую либо односкатную с минимальным уклоном, без второго этажа, внутреннюю отделку и стены мы на выходных будем со строителем рассчитывать. Остался вопрос с сантехниками (теплый пол и т.д.) Стоимость стены из каркаса, без утеплителя у меня есть, (пирог стен мне Василий указал) посчитаем стоимость стены из блоков, и тогда будем сравнивать и выбирать с учетом цены и качества, и условий монтажа. И кстати вы правильно сказали насчет того что надо побывать в бане, которую собираешься строить. Посилання на коментар Поділитися на інших сайтах More sharing options...
Александр с Донецка Опубліковано: 17 травня 2013 Поділитись Опубліковано: 17 травня 2013 Как на мой взгляд, то фундамент конечно для каркаса не такой массивный как для каменного здания. Но все же стоило бы обратить внимание на момент теплых полов и коммуникаций проложенных в полах. Те я бы не делал столбчатый фундамент, а делал плиту и желательно теплую. Так же сразу стоит учесть все коммуникации и каналы. Что бы потом не долбить, да и если будут трубы теплого пола, то уже сильно не подолбишь. Каркас не сложно собирать, при маломальском умении обращения с инструментом. Да и инет в помощь. Крыша односкатная конечно хорошо, но снеговые нагрузки тоже нужно учитывать, что бы зимой напряга на мозг и руки с лопатой, не было. Стоит просто записаться на парение к кому нибудь в правильную баню и пройти весь процесс парения как клиент, что бы потом самому понимать что и как будет, а чего не будет в Вашей планируемой бане. Обычно многое становится с ног на голову после посещения правильных бань ;) 1 Посилання на коментар Поділитися на інших сайтах More sharing options...
Александр с Донецка Опубліковано: 17 травня 2013 Поділитись Опубліковано: 17 травня 2013 Еще пожалуй на чем бы заострил внимание, это на фундаменте и полах. Те что бы лента фундамента была выше полов так на 20см-30см. Что бы вода не попадала на стены и в стык каркаса и фундамента. Такое себе бетонное корыто по подобию душевого поддона. 1 Посилання на коментар Поділитися на інших сайтах More sharing options...
strokan Опубліковано: 24 травня 2013 Поділитись Опубліковано: 24 травня 2013 Здравствуите.Занимаюсь саунами 30 лет.Не вижу разницы с какого материала стены.Главное хорошая вагонка лежаки продумать вентиляцию.По печке подход особыи чтобы не ловить дно через пол года Посилання на коментар Поділитися на інших сайтах More sharing options...
Александр с Донецка Опубліковано: 25 травня 2013 Поділитись Опубліковано: 25 травня 2013 Разговор в этой теме идет о бане;) И вагонка на стены, здесь как раз не самое правильное решение. Лучше массив с доски или доски и горбыля. Тк все заходы в парилку сопровождаются отдачей тепла от стен, полоков и конечно от самой печи, а не от конвективных потоков, увы это немного разные вещи и по ощущениям тоже. Посилання на коментар Поділитися на інших сайтах More sharing options...
natisk Опубліковано: 16 червня 2013 Автор Поділитись Опубліковано: 16 червня 2013 Еще пожалуй на чем бы заострил внимание, это на фундаменте и полах. Те что бы лента фундамента была выше полов так на 20см-30см. Что бы вода не попадала на стены и в стык каркаса и фундамента. Такое себе бетонное корыто по подобию душевого поддона. Александр как правильно сделать такой фундамент? 1. вариант оставить как на стены из газобетона (наверное для каркасника будет много) www.stroimdom.com.ua/forum/showthread.php?p=2301623#post2301623 2. купить бур www.stroimdom.com.ua/forum/showthread.php?t=103160 и сделать ростверк 3. учитывая что будет теплый пол сделать шведскую плиту но как тогда сделать "корыто" Посилання на коментар Поділитися на інших сайтах More sharing options...
Александр с Донецка Опубліковано: 17 червня 2013 Поділитись Опубліковано: 17 червня 2013 Делать ленту, при этом учесть приток для горения, к морде печи, что бы потом не долбить фундамент. Поставить шпильки для монтажа подкладного бруса. Сделать внутренний отводы арматуры, для завязки черновой стяжки. Ростверк было бы не плохо сделать. После выдержки черновой стяжки, делать утепление с армированием укладкой теплого пола и заливкой внутренней плиты. При этом стоить учесть коммуникации и воздушные каналы, в зависимости какая печь будет стоять. Учесть и сразу сделать купель, при желании с закладными донного слива. В таком исполнении и последовательности, получиться сделать корыто, те заливка в несколько этапов. Если будете делать корытом, как говорили, стоит учесть наружное утепление фундамента, что бы потом кафельная лента у пола не плакала от мостика холода, передаваемого во внутрь помещения из вне. Посилання на коментар Поділитися на інших сайтах More sharing options...
natisk Опубліковано: 17 червня 2013 Автор Поділитись Опубліковано: 17 червня 2013 (змінено) благодарю за помощь.по фундаменту все понятно, акве тоже нужен приток воздуха? Змінено 17 червня 2013 користувачем natisk Посилання на коментар Поділитися на інших сайтах More sharing options...
Александр с Донецка Опубліковано: 17 червня 2013 Поділитись Опубліковано: 17 червня 2013 акве тоже нужен приток воздуха? Да, нужен Посилання на коментар Поділитися на інших сайтах More sharing options...
natisk Опубліковано: 17 червня 2013 Автор Поділитись Опубліковано: 17 червня 2013 уже почитал у Василия на форуме действительно нужен, как буду чертить коммуникации выложу для согласования Посилання на коментар Поділитися на інших сайтах More sharing options...
Александр с Донецка Опубліковано: 17 червня 2013 Поділитись Опубліковано: 17 червня 2013 как буду чертить коммуникации выложу для согласования Хорошо Посилання на коментар Поділитися на інших сайтах More sharing options...
natisk Опубліковано: 22 жовтня 2013 Автор Поділитись Опубліковано: 22 жовтня 2013 Получил аквалайт, в комплекте печь, стекло с порталом, топочный тоннель. Все сделано добротно без замечаний, по окраске тоже замечаний нет, цвет черный понравился. Сделана первая уличная протопка, отлично горит, вода нагревается очень быстро. Посилання на коментар Поділитися на інших сайтах More sharing options...
natisk Опубліковано: 22 жовтня 2013 Автор Поділитись Опубліковано: 22 жовтня 2013 нарезал тыкву на ломти уложил в казанок поставил на угли через три часа пришел с тренировки готово- действительно за счет водяной рубашки как из русской печи Посилання на коментар Поділитися на інших сайтах More sharing options...
Александр с Донецка Опубліковано: 22 жовтня 2013 Поділитись Опубліковано: 22 жовтня 2013 нарезал тыкву на ломти Лучше бы мяса нарезал ))) Посилання на коментар Поділитися на інших сайтах More sharing options...
natisk Опубліковано: 22 жовтня 2013 Автор Поділитись Опубліковано: 22 жовтня 2013 С вас рецепт Посилання на коментар Поділитися на інших сайтах More sharing options...
Александр с Донецка Опубліковано: 23 жовтня 2013 Поділитись Опубліковано: 23 жовтня 2013 С вас рецепт Посолил, поперчил, специй на вкус добавил и все! никаких жиров и прочая... по времени рыба - 20-30мин. мясо 2-3 часа. курка 1-1,5 часа. Это в моей печи, в Вашей может подольше. Посилання на коментар Поділитися на інших сайтах More sharing options...
natisk Опубліковано: 23 жовтня 2013 Автор Поділитись Опубліковано: 23 жовтня 2013 Делаем курицу)))) по совету Александра порубил на куски курицу, нарезал картошки, перец, приправы, куркума, соль, 3 луковицы. все в казанок сверху керамическую тарелку. Ну что сказать я сыт и доволен ( фото с телефона тусклые не видно корочки) в реале все получилось супер. курица и картошка протомились на отлично))) 1 Посилання на коментар Поділитися на інших сайтах More sharing options...
Александр с Донецка Опубліковано: 23 жовтня 2013 Поділитись Опубліковано: 23 жовтня 2013 Нет слов, одни слюни :D:beer: Посилання на коментар Поділитися на інших сайтах More sharing options...
Рекомендовані повідомлення
Створіть акаунт або увійдіть у нього для коментування
Ви маєте бути користувачем, щоб залишити коментар
Створити акаунт
Зареєструйтеся для отримання акаунта. Це просто!
Зареєструвати акаунтУвійти
Вже зареєстровані? Увійдіть тут.
Увійти зараз