Перейти до публікації
Пошук в
  • Додатково...
Шукати результати, які містять...
Шукати результати в...

Продам проект дома

maliy.s.g

Рекомендовані повідомлення

ПРОДАМ ПРОЕКТ ДОМА (свой) 3000 грн + консультация от фундамента до крыши, при желании всё покажу очно. Фото построенного дома вышлю на почту.

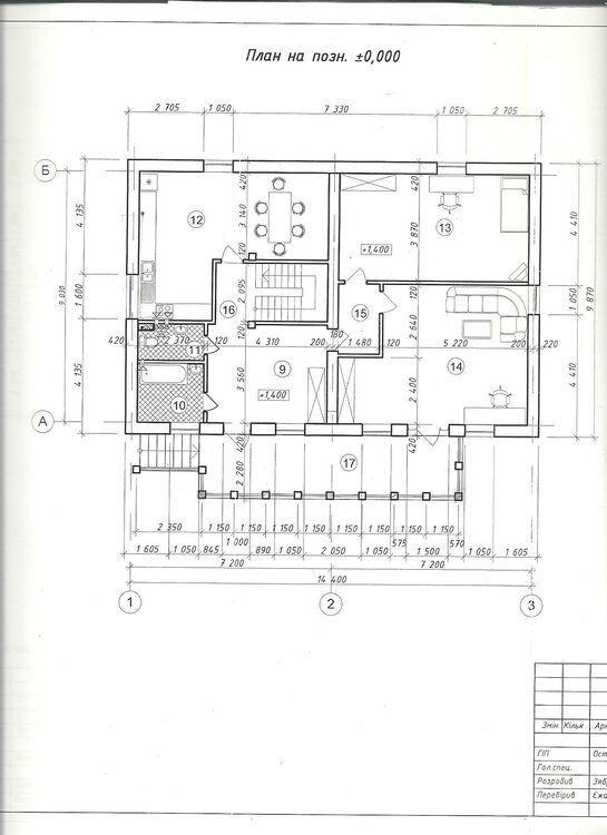
Одноквартирний двоповерховий житловий будинок з мансардою . Загальна площя будинку 360 кв. м.

Житлова площя будинку 147,56 м. кв.

Кухня-столова 27,15 м.кв.

Два санвузла

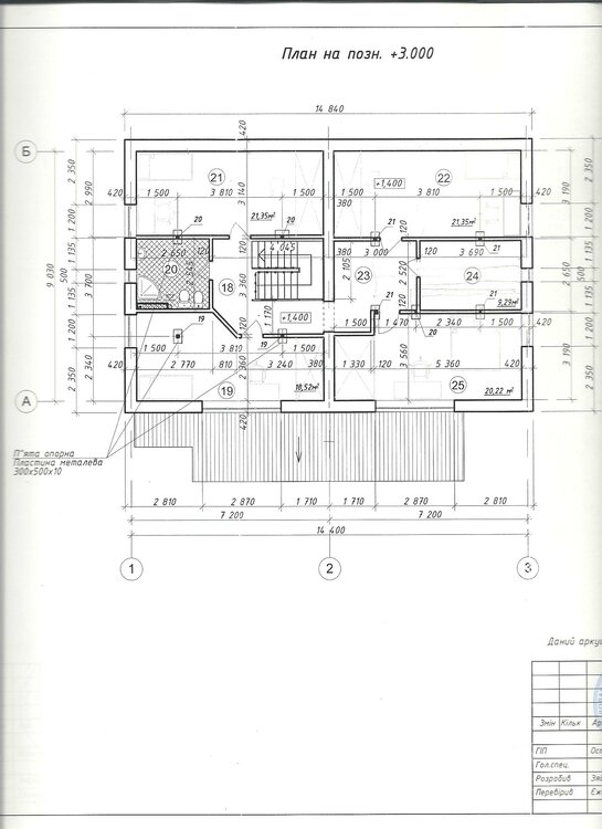
4 спальні 18,73 м.кв., 21,35 м.кв., 21,35 м.кв., 22,47 м.кв.

Гардероб 7,75 м.кв.

Кабінет 26,39 м. кв.

Зала 30,15 м.кв.

Тераса 21,54 м.кв.

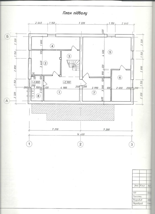
Площя підвалу 118,48 м.кв.(топочна,погреб,шість технічних приміщень)

 

Фундамент збірний стрічковий із стінових фундаментних блоків по монолітній залізобетонній подушці.

Стіни із полегшених перлітобетонних блоків марки М50 (200мм), засипаного утеплювача – перлітного піску марки М150 (100мм) та облицювальної цегли (120 мм) .Загальна товщина стіни 420 мм.

Перекриття підвалу та першого поверху із залізобетонних панелей перекриття.

132175640_.thumb.jpg.1afcdcb9dbaaec74c1e830d5d2ad7f02.jpg

243454599_.thumb.jpg.21060fa0b3e2dbfebc2a8d3699366f1d.jpg

666335768_.thumb.jpg.b49ce77bf979fc4592c62ce671119b31.jpg

1509400328_.thumb.jpg.269aa2b8b0e0033a3a756c0cee804815.jpg

Посилання на коментар
Поділитися на інших сайтах

Створіть акаунт або увійдіть у нього для коментування

Ви маєте бути користувачем, щоб залишити коментар

Створити акаунт

Зареєструйтеся для отримання акаунта. Це просто!

Зареєструвати акаунт

Увійти

Вже зареєстровані? Увійдіть тут.

Увійти зараз
×
×
  • Створити...