abkiev Опубліковано: 25 червня 2013 Поділитись Опубліковано: 25 червня 2013 Нашел на оф. сайте инфу по этим двум фурнитурам, кто нить работает с Roto? Посилання на коментар Поділитися на інших сайтах More sharing options...
Валерий Валентинович Опубліковано: 25 червня 2013 Поділитись Опубліковано: 25 червня 2013 кто нить работает с Roto? Сформулируйте вопрос более корректно. Вам для чего? Изготовить окна, используя именно эту фурнитуру или отрегулировать Ваши окна, в которых установлена фурнитура Roto? Посилання на коментар Поділитися на інших сайтах More sharing options...
abkiev Опубліковано: 26 червня 2013 Автор Поділитись Опубліковано: 26 червня 2013 Сформулируйте вопрос более корректно. Вам для чего? Изготовить окна, используя именно эту фурнитуру или отрегулировать Ваши окна, в которых установлена фурнитура Roto? Изготовить большие окна Инлайн слайдинг понравилась, принцип шкафа купе но гугл в нашей неньке ничего толком не знает по этой фурнитуре. Посилання на коментар Поділитися на інших сайтах More sharing options...
ko&ko Опубліковано: 26 червня 2013 Поділитись Опубліковано: 26 червня 2013 Насколько помню, то это не фурнитурная система, а профильная. Подобные присутствуют в ассортименте у всех ведущих брендов. В нашей неньке мало применима из-за дорогой стоимости, так как и старший "брат" подъемно-сдвижная пвх. Поэтому, рекомендую остановить свой выбор на портале пвх или на подъемно-сдвижной алюминий. Посилання на коментар Поділитися на інших сайтах More sharing options...
abkiev Опубліковано: 26 червня 2013 Автор Поділитись Опубліковано: 26 червня 2013 Насколько помню, то это не фурнитурная система, а профильная. Подобные присутствуют в ассортименте у всех ведущих брендов. В нашей неньке мало применима из-за дорогой стоимости, так как и старший "брат" подъемно-сдвижная пвх. Поэтому, рекомендую остановить свой выбор на портале пвх или на подъемно-сдвижной алюминий. вот как раз от подъемно-сдвижного хочется уйти. У пвх порталов есть паралельно-сдвижные варианты под высокий проём 2400 см? Посилання на коментар Поділитися на інших сайтах More sharing options...
ko&ko Опубліковано: 26 червня 2013 Поділитись Опубліковано: 26 червня 2013 Подъемно-сдвижная и паралельно-сдвижная системы, отличаются набором фурнитуры, профильная система одинаковая. Хотя имеються и отдельные. 2400мм по высоте-это не проблема вообще для любых порталов. 1 Посилання на коментар Поділитися на інших сайтах More sharing options...
abkiev Опубліковано: 26 червня 2013 Автор Поділитись Опубліковано: 26 червня 2013 (змінено) Подъемно-сдвижная и паралельно-сдвижная системы, отличаются набором фурнитуры, профильная система одинаковая. Хотя имеються и отдельные. 2400мм по высоте-это не проблема вообще для любых порталов. не поверите, не могу в киеве найти кто мне установит простую пвх слайдинг систему с однокамерным стеклопакетом,шпросами и москитными раздвижными дверьми под мой размер:o:o ЗЫ.мм с см перепутал Добавлено через 49 секунд вот как хотелось бы это Roto Patio Life если видео не отображается то воть Змінено 27 червня 2013 користувачем Валерий Валентинович Вставил!!! Посилання на коментар Поділитися на інших сайтах More sharing options...
ko&ko Опубліковано: 27 червня 2013 Поділитись Опубліковано: 27 червня 2013 Это вы уже вместо алюминиевых, хотите пвх портал? Посилання на коментар Поділитися на інших сайтах More sharing options...
abkiev Опубліковано: 27 червня 2013 Автор Поділитись Опубліковано: 27 червня 2013 Это вы уже вместо алюминиевых, хотите пвх портал? посмотрел зенит 2000 вживую...какой то хлюпенький он, не понравился...решил посмотреть в сторону пвх. Посилання на коментар Поділитися на інших сайтах More sharing options...
Ruslan R Опубліковано: 27 червня 2013 Поділитись Опубліковано: 27 червня 2013 посмотрел зенит 2000 вживую...какой то хлюпенький он, не понравился...решил посмотреть в сторону пвх. А какой из вариантов (см. ниже) смотрели? Второй вариант почти в 4 раза по жесткости лучше первого. Третий вариант более чем в 3 раза лучше второго (ну и соответственно в 13 раз лучше первого). Посилання на коментар Поділитися на інших сайтах More sharing options...
abkiev Опубліковано: 27 червня 2013 Автор Поділитись Опубліковано: 27 червня 2013 А какой из вариантов (см. ниже) смотрели? Второй вариант почти в 4 раза по жесткости лучше первого. Третий вариант более чем в 3 раза лучше второго (ну и соответственно в 13 раз лучше первого). вернее зенит стар 2000, насколько я помню...какой из вариантов точно не скажу но очень смутил люфт створки в горизонтальной плоскости, ну тоесть я рукой взял створку ближе к верхней части а она в месте фурнтируры пошатывается вперед-назад на 3-4мм....+ сказали что нет вариантов с москитными раздвижками скомпоновать у зенита. Не исключаю что мне показали самый простой вариант...в любом случае пришел к выводу что пока вживую не увижу и не пощупаю - ставить не буду. Посилання на коментар Поділитися на інших сайтах More sharing options...
Ruslan R Опубліковано: 27 червня 2013 Поділитись Опубліковано: 27 червня 2013 вернее зенит стар 2000, насколько я помню...какой из вариантов точно не скажу но очень смутил люфт створки в горизонтальной плоскости, ну тоесть я рукой взял створку ближе к верхней части а она в месте фурнтируры пошатывается вперед-назад на 3-4мм.... Скорее всего вам показали первый вариант. Где допустимые максимальные размеры створки 600х1400мм (остекление балконов). + сказали что нет вариантов с москитными раздвижками скомпоновать у зенита. А если подумать? Вы с кем общались? Наверно с обычным продавцом (менеджером)? Я вам предлагал же раздвижной вариант москитной сетки. Попробую объяснить еще раз. Представьте две нитки остекления. Так вот первая нитка остекления, внутренняя, это раздвижка Стар2000 с усиленными створками (вариант 2, см. мой предыдущий пост) с заполнением стекло 6мм, закаленное. Вторая нитка, наружная, это та же раздвижка Стар2000, но с обычными створками (вариант 1, см. мой предыдущий пост) и с заполнением москитная секта (вместо стекла устанавливается рамка из профиля для москитной сетки, ну и + сама сетка в профиле). Не знаю как еще можно объяснить? Что мне 3D визуализацию делать для таких простых конструкций? Посилання на коментар Поділитися на інших сайтах More sharing options...
abkiev Опубліковано: 27 червня 2013 Автор Поділитись Опубліковано: 27 червня 2013 Скорее всего вам показали первый вариант. Где допустимые максимальные размеры створки 600х1400мм (остекление балконов). А если подумать? Вы с кем общались? Наверно с обычным продавцом (менеджером)? Я вам предлагал же раздвижной вариант москитной сетки. Попробую объяснить еще раз. Представьте две нитки остекления. Так вот первая нитка остекления, внутренняя, это раздвижка Стар2000 с усиленными створками (вариант 2, см. мой предыдущий пост) с заполнением стекло 6мм, закаленное. Вторая нитка, наружная, это та же раздвижка Стар2000, но с обычными створками (вариант 1, см. мой предыдущий пост) и с заполнением москитная секта (вместо стекла устанавливается рамка из профиля для москитной сетки, ну и + сама сетка в профиле). Не знаю как еще можно объяснить? Что мне 3D визуализацию делать для таких простых конструкций? Руслан, я ездил в офис непосредственно к представителям завода в Киеве...ну вот такое мне показали.Насколько я помню у нас с вами камнем преткновения стали шпросы... Я понимаю о чем вы говорите, как я бы хотел в идеале: мой проём 3м ширина 2.4м высота первая нитка - раздвижка 2 секции(обе свободно ездят по своей рельсе) размер каждой секции 1.5х2.4м соответственно вторая нитка - 1 рельса с 1 маскиткой размером 1.5х2.4м вот как то так Добавлено через 13 минут раз уж начал зарисовки пришла к голову еще одна мысль Посилання на коментар Поділитися на інших сайтах More sharing options...
Ruslan R Опубліковано: 27 червня 2013 Поділитись Опубліковано: 27 червня 2013 Насколько я помню у нас с вами камнем преткновения стали шпросы... А что кто то предложил шпросы в стеклопакете? И раздвижку Стар2000? P.S. Обычная москитная сетка работать не будет. Там профиль слабенький, его выгнет. Поэтому, я ее вставлял в створку. Вот смотрите ниже разрезы, как я считал. Посилання на коментар Поділитися на інших сайтах More sharing options...
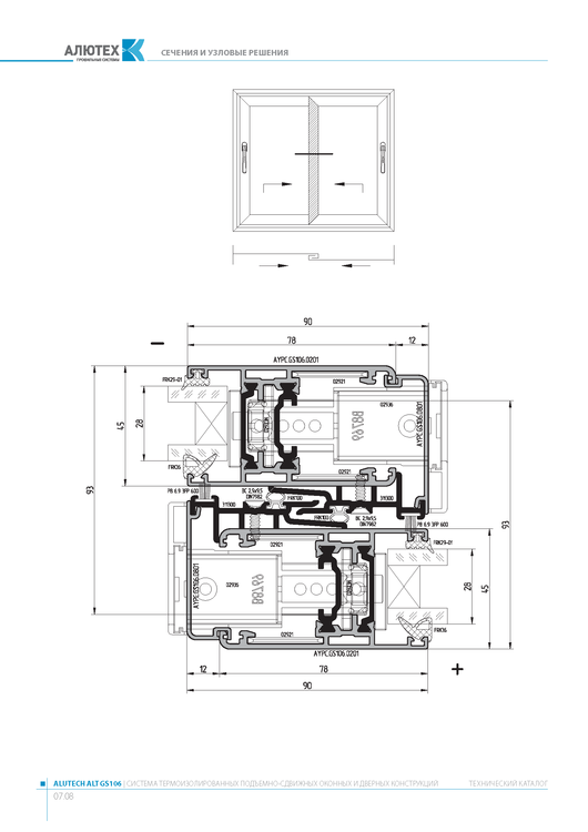
ko&ko Опубліковано: 27 червня 2013 Поділитись Опубліковано: 27 червня 2013 Рассмотрите вариант установки подъемно-сдвижной системы ALT GS106. При иннвестировании, получите только положительный результат. Посилання на коментар Поділитися на інших сайтах More sharing options...
Ruslan R Опубліковано: 27 червня 2013 Поділитись Опубліковано: 27 червня 2013 мой проём 3м ширина 2.4м высота первая нитка - раздвижка 2 секции(обе свободно ездят по своей рельсе) размер каждой секции 1.5х2.4м соответственно вторая нитка - 1 рельса с 1 маскиткой размером 1.5х2.4м Вообще теоретически возможно сделать и из двух створок эту конструкцию, применяя усилители как я показал в варианте 3 (см. мой пост №10 данной темы), горизонтально будут также усилители. Сделать как бы такую рамку. Это конечно не системное решение, но думаю что работать будет. Заполнение стекло 6мм, закаленное (со стеклопакетом будет тяжелая створка). Это будет первая нитка остекления. А вторую нитку, с москитной сеткой оставить как в посте №14 (только две створки будет 1500х2400мм). Будет естественно существенное удорожание, а вы же ограничены в своем бюджете, вот я вам и не предлагал такой вариант. Добавлено через 1 минуту Рассмотрите вариант установки подъемно-сдвижной системы ALT GS106. При иннвестировании, получите только положительный результат. Цена вопроса? Да и в этой системе также придется колхозить, там створка не пройдет по ветровой нагрузке, она по жесткости будет хуже Стар2000. Посилання на коментар Поділитися на інших сайтах More sharing options...
ko&ko Опубліковано: 27 червня 2013 Поділитись Опубліковано: 27 червня 2013 Да и в этой системе также придется колхозить, там створка не пройдет по ветровой нагрузке, она по жесткости будет хуже Стар2000. Да что Вы говорите. Подтвердите чем-то. Посилання на коментар Поділитися на інших сайтах More sharing options...
Ruslan R Опубліковано: 27 червня 2013 Поділитись Опубліковано: 27 червня 2013 Да что Вы говорите. Подтвердите чем-то. А вы посмотрите на сечение створки :D Они даже в каталоге ее характеристики не указали, потому что там и не чего указывать, там ребра жесткости из термомоста Балконы из нее делать со створками 600х1600мм и не более :D Вот вложил файл с сечением створки, что бы люди понимали о чем речь. 2 Посилання на коментар Поділитися на інших сайтах More sharing options...
ko&ko Опубліковано: 27 червня 2013 Поділитись Опубліковано: 27 червня 2013 Пока это ваши догадки и имхо. Jу=?см4 створки покажите, тогда убедите. Посилання на коментар Поділитися на інших сайтах More sharing options...
Ruslan R Опубліковано: 27 червня 2013 Поділитись Опубліковано: 27 червня 2013 Пока это ваши догадки и имхо. Jу=?см4 створки покажите, тогда убедите. А запросите у алютеха эти показатели :D Вот нашел похожие створки в Rescare (см. вложение). Только в Rescare створки помощнее будут. Алютеховская будет с моментом инерции не больше 6,0см4. А теперь посмотрите на показатели створки в Стар2000, усиленная створка с моментом инерции 9,84см4, что на 40% жестче, чем у алютеха :D Посилання на коментар Поділитися на інших сайтах More sharing options...
ko&ko Опубліковано: 27 червня 2013 Поділитись Опубліковано: 27 червня 2013 Ruslan R! Ну не городите ерунды пожалуйста. Вы еще с торцевым адаптером сравните Jx. Вот когда будете знать, тогда и вернемся к этой теме, а пока перестаньте выдумывать. Посилання на коментар Поділитися на інших сайтах More sharing options...
Ruslan R Опубліковано: 27 червня 2013 Поділитись Опубліковано: 27 червня 2013 Ruslan R! Ну не городите ерунды пожалуйста. Вы еще с торцевым адаптером сравните Jx. Вот когда будете знать, тогда и вернемся к этой теме, а пока перестаньте выдумывать. С каким торцевым адаптором? :D Это не тот случай, как в профилко, в профилко торцевой адаптор учитывается только потому, что он крепится саморезами к профилю, и фиксируется между ДВУМЯ алюминиевыми стенками створки, образуя тем самым единое целое. Вот в профилко учитывается тот торцевой адаптор. А в алютехе этот адаптор просто защелкивается, с одной стороны за алюминиевую стенку створки, а с другой за полиамидный адаптор. Он там не работает!!! Он будет пружинить. Поэтому в расчет не берется. Посилання на коментар Поділитися на інших сайтах More sharing options...
ko&ko Опубліковано: 27 червня 2013 Поділитись Опубліковано: 27 червня 2013 (змінено) Да я не имел ввиду, что его нужно прибавлять. Сравнение вы не совсем корректное привели, поэтому написал. что еще можно сравнить створку с профилем м\с. Вроде похожа?:D Зы. Да, и в PR-35, торцевой адаптер ни к какой створке не прикручивается. Просто защелкивается. Змінено 27 червня 2013 користувачем ko&ko Посилання на коментар Поділитися на інших сайтах More sharing options...
М.И. Опубліковано: 28 червня 2013 Поділитись Опубліковано: 28 червня 2013 Руслан, я ездил в офис непосредственно к представителям завода в Киеве...ну вот такое мне показали.Насколько я помню у нас с вами камнем преткновения стали шпросы... Я понимаю о чем вы говорите, как я бы хотел в идеале: мой проём 3м ширина 2.4м высота первая нитка - раздвижка 2 секции(обе свободно ездят по своей рельсе) размер каждой секции 1.5х2.4м соответственно вторая нитка - 1 рельса с 1 маскиткой размером 1.5х2.4м вот как то так помещение тёплое? Посилання на коментар Поділитися на інших сайтах More sharing options...
abkiev Опубліковано: 1 липня 2013 Автор Поділитись Опубліковано: 1 липня 2013 помещение тёплое? нет, задача закрыться от ветра и осадков, отапливаться будет разве что уфошкой только во время приезда Посилання на коментар Поділитися на інших сайтах More sharing options...
Рекомендовані повідомлення
Створіть акаунт або увійдіть у нього для коментування
Ви маєте бути користувачем, щоб залишити коментар
Створити акаунт
Зареєструйтеся для отримання акаунта. Це просто!
Зареєструвати акаунтУвійти
Вже зареєстровані? Увійдіть тут.
Увійти зараз