Перейти до публікації
Пошук в
  • Додатково...
Шукати результати, які містять...
Шукати результати в...

Домик в Днепропетровске на Клочко

dusik1980

Рекомендовані повідомлення

Да. Очень дорого!

Сколько вышло то? Какая площадь фасада? С утеплением?

Посилання на коментар
Поділитися на інших сайтах

Сколько вышло то? Какая площадь фасада? С утеплением?

 

Еще не вышло. Осенью. Площадь порядка 300 м2. Утеплитель 15 см Rockwool.

Посилання на коментар
Поділитися на інших сайтах

Еще не вышло. Осенью. Площадь порядка 300 м2. Утеплитель 15 см Rockwool.

 

У меня площадь утепления выходит около 280 м2+откосы.

Посилання на коментар
Поділитися на інших сайтах

Вот такой вырисовывается санузел на втором этаже. Сразу же добавляю картинки из дизайн-проекта.

IMG_2045.thumb.JPG.abb46dd505e5bf1e1deacee3917e1629.JPG

IMG_2046.thumb.jpg.1f571cc573ac4fa2f4e0720b191412a4.jpg

IMG_2047.thumb.jpg.68914e1109ced55809c377a10aa61320.jpg

IMG_2048.thumb.jpg.2593033d64905aee167c017c98ac3171.jpg

IMG_2049.thumb.jpg.6b4183e21175503242547f4bcea0851c.jpg

IMG_2050.thumb.JPG.0d99ecf8c64a215e0a0f20fbbdbaa891.JPG

IMG_2051.thumb.jpg.90f484f4e7c0e007538b388564f4f36e.jpg

870668473_sanYzelvar2-2.thumb.jpg.d5e71832facd7c92518109e4dde0d6e0.jpg

785057878_sanYzelvar2-3.thumb.jpg.604056cae75d65622b0edfdc68247ece.jpg

1662089192_sanYzelvar2-4.thumb.jpg.4bc575da654d1ccbbf30a1cc74067381.jpg

565020600_sanYzelvar2-1.thumb.jpg.076185a8e2cb604625a8079d8e1bc921.jpg

  • Лайк 4
Посилання на коментар
Поділитися на інших сайтах

Вот такой вырисовывается санузел на втором этаже. Сразу же добавляю картинки из дизайн-проекта.

 

Красота! Мне, ради еще одной спальни на втором этаже, пришлось делать маленький с/у. А мог бы быть как у вас.

Посилання на коментар
Поділитися на інших сайтах

Вот так положили рабочую стенку на кухне. Ну и естественно сразу смотрим дизайнерские фото. :)

Кухонный гарнитур наверное буду заказывать не крашенный глянец, ато много страшилок ходит по поводу сколов, отпечатков пальцев и т.д.

IMG_1992.thumb.JPG.ae4ea1005577053e992ff50562f1333d.JPG

IMG_1993.thumb.JPG.2715e07c083996575767bbf665937bb7.JPG

IMG_1994.thumb.JPG.3d06f08f47e88390e690606531ff2dee.JPG

IMG_1995.thumb.JPG.47d7ff23d0ede50af769a38a8589f703.JPG

294781520_.thumb.jpg.794721c1db0916f5033004e176d3dd14.jpg

1996724634_1.thumb.jpg.6a98015056fd3a5439374584f163d17d.jpg

751346582_2.thumb.jpg.e24f1c811aec0992e67a1f4f0405ccaa.jpg

  • Лайк 2
Посилання на коментар
Поділитися на інших сайтах

Красота! Мне, ради еще одной спальни на втором этаже, пришлось делать маленький с/у. А мог бы быть как у вас.

 

Спасибо! Санузел действительно очень просторный и как по мне симпотный. Осталось только докупить раковину, тумбочки, стекляную штору, а так вроде уже все постягивал... :)

Посилання на коментар
Поділитися на інших сайтах

Ну и естественно сразу смотрим дизайнерские фото.

Ой, очень понравился ваш дизайнер, ничего заоблачного, но все продуманно, и как здорово, что со спецификацией. А долго делал проект? Очень задумалась над этим вопросом.

Посилання на коментар
Поділитися на інших сайтах

Ой, очень понравился ваш дизайнер, ничего заоблачного, но все продуманно, и как здорово, что со спецификацией. А долго делал проект? Очень задумалась над этим вопросом.

 

Делали около двух месяцев.

Процесс был примерно таким:

- приехали, обмеряли дом, взяли предоплату

- сделали обмерочные чертежи

- дали посмотреть их работы и кучу журналов, в которых мы отмечали все что нам нравиться, чтобы дизайнер мог уловить "направление движения"

- потом начали предлагать варианты по каждой комнате (цветовая гамма, расстановка мебели, расстановка сантехникаи, кафель, освещение, потолки, и т.д.), каждый вариант дорабатывался под наши пожелания

- в итоге получилось то, что вы видете

По материалам я протупил по двум позициям:

- люстра и бра в гостинной (очень красивые, в интернете полно, но ближайшее место где они продаются - Россия :o). Привезли знакомые, которые очень часто туда ездят

- люстра в спальне оказалась с камнями сваровски (цена около 2000$), но на просторах интернета нашел очень похожую без сваровски и по вменяемой цене, но пока еще не покупал

 

Добавлено через 3 минуты

ничего заоблачного

Это было одним из основных условий :D

  • Лайк 1
Посилання на коментар
Поділитися на інших сайтах

А вот гостинная. Здесь можно разглядеть привезенную люстру и бра.

IMG_2068.thumb.JPG.6370adba50fadd46e7b66223ea27b5ac.JPG

IMG_2069.thumb.jpg.4dfd0ac33bcda9ecd341b84fdc2fb93d.jpg

IMG_2074.thumb.JPG.1b661a55bd8db58959036168a2710872.JPG

IMG_2067.thumb.JPG.00711951e30efa03ec4b083bfbf48241.JPG

1622290370_12.thumb.jpg.82a933e3439aa4106f7b738478323072.jpg

688417886_13.thumb.jpg.83d74424452456171a1a55d7546ebd1c.jpg

523587255_14.thumb.jpg.a27e5a9aa68ef99869b377f88c05b259.jpg

220252659_15.thumb.jpg.8c689f9410466c2bffadde41252604a9.jpg

1259317887_19.thumb.jpg.2994275e56a5dae78c08af73d2c8a2da.jpg

  • Лайк 2
Посилання на коментар
Поділитися на інших сайтах

Ванную я уже показывал... Переходим в кабинет-гостевую.

Чуть не забыл, пока мы занимались ремонтами, сняли с производства коричневые обои, будем подбирать похожие. :(

IMG_2060.thumb.JPG.209c1de49fd1e0f74095e6c64250e14d.JPG

IMG_2061.thumb.JPG.98fb342d12ed6f998e1e510b7f0444d2.JPG

kabinet1.thumb.jpg.b8d4cadcee22bf7ec29dec517b3a460a.jpg

kabinet2.thumb.jpg.7f32e861e52fb7906d372edc6cd203ae.jpg

kabinet3.thumb.jpg.843144ef660fa484dfc2738715a3bf97.jpg

  • Лайк 3
Посилання на коментар
Поділитися на інших сайтах

Теперь детская. Поскольку ребенку уже 15 лет, то комната уже будет выглядеть не по-детски. :D

IMG_2056.thumb.JPG.985b4362ac303f611520d63d939c6591.JPG

IMG_2057.thumb.JPG.8ec02dbd20b68ec7198365cc9c9c2bbf.JPG

IMG_2058.thumb.JPG.2bb57cd80d17f6ee6528c461f5a8c5f3.JPG

IMG_2059.thumb.JPG.a8b632a8f02c9616391d73868a70dcfb.JPG

detsk1.thumb.jpg.2af5a26038a17b2173ec339743313311.jpg

detsk2.thumb.jpg.74ccfd64006d62e593314f76589c4127.jpg

deysk3.thumb.jpg.139c0c58faa127fabf9bfe0a29526fb1.jpg

detsk4.thumb.jpg.bdf5fd9b3bea9254213c30612a83884b.jpg

  • Лайк 1
Посилання на коментар
Поділитися на інших сайтах

Теперь любимое место многих - спальня. :) Из спальни выход на балкон.

IMG_2052.thumb.JPG.8c223f0273a73a1f397e1f0b5129257f.JPG

IMG_2053.thumb.JPG.9743fe9a3aafe65d77ede0cc5aec57f0.JPG

IMG_2054.thumb.jpg.68e91f014cce9baf10a260a88c01bcc5.jpg

IMG_2055.thumb.JPG.55a5a95643affc3b29f76179ab552cf1.JPG

1556321418_spalnya1.thumb.jpg.c76f2b83435fc16370a9a723c069a49e.jpg

spalnya2.thumb.jpg.cb37bd52717b68cbda1d69e3aa3d47d1.jpg

spalnya3.thumb.jpg.208ac5d6e4679f2818ff3d7331cf8737.jpg

  • Лайк 5
Посилання на коментар
Поділитися на інших сайтах

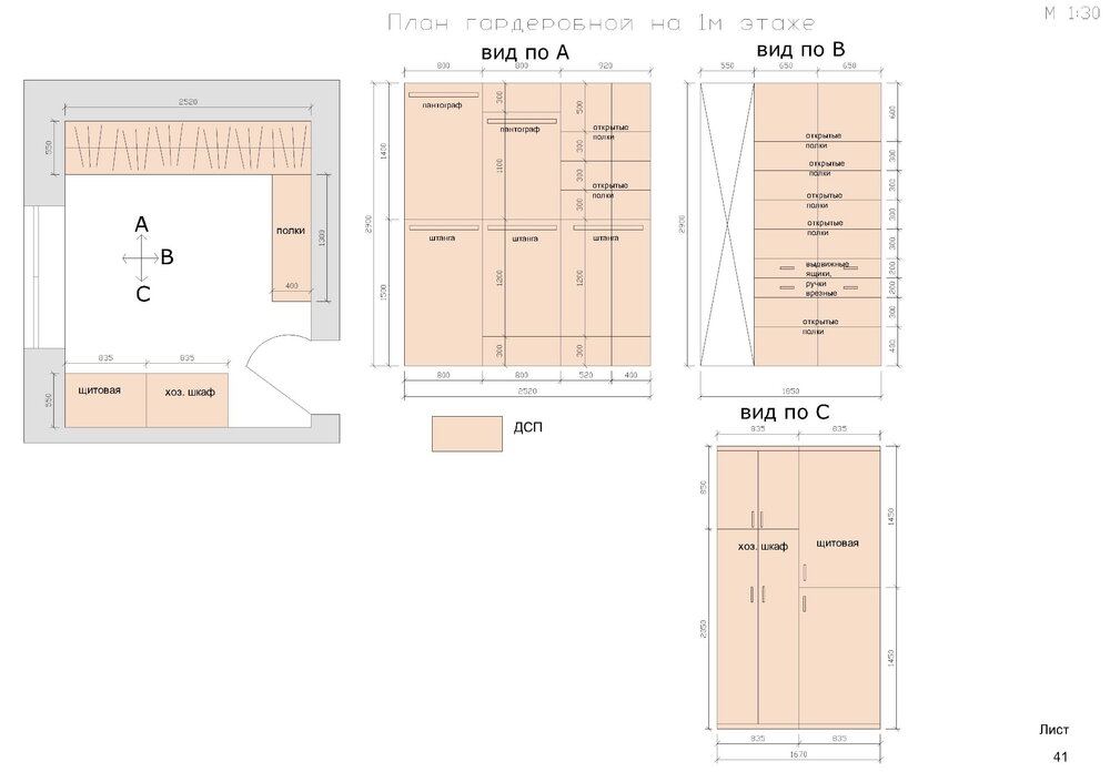
Есть на первом этаже еще гардероб, но делать дизайн гардероба я считаю безсмысленным, поэтому фоток нет, есть только план. Вот:

636744631_411.thumb.jpg.8d48b24ae8148838bf3abb9ba6fa44bf.jpg

Посилання на коментар
Поділитися на інших сайтах

Дизайн очень интересный, ничего лишнего и цвета приятные. Буду следить за воплощением.

ЗЫ: в детстве дискус был самой крутой и как следствие самой дорогой рыбой(рублей 50) на птичьем рынке. Мечта любого ценителя аквариумной флоры и фауны.

Посилання на коментар
Поділитися на інших сайтах

Спасибо за подробное описание работы с дизайнером.

Лично для себя решили, что было бы очень неплохо проработать функционал и дизайн дома с дизайнером, но о них не так много информации, и хочется найти достойного человека по месту, потому как каждый день приходят какие-то новые идеи. :):):)

Если можно из чего складывалась цена оплаты, квадратура дома?

 

Добавлено через 1 минуту

Очень нравится ваша ветка будим следить:):):)

Посилання на коментар
Поділитися на інших сайтах

Теперь любимое место многих - спальня. Из спальни выход на балкон.

Все понравилось. Спальня особенно)))

Посилання на коментар
Поділитися на інших сайтах

Если можно из чего складывалась цена оплаты, квадратура дома?

Да, квадратура.

 

Спасибо за подробное описание работы с дизайнером.

Пожалуйста.

 

Все понравилось. Спальня особенно)))

Пасибки. :)

 

Добавлено через 23 минуты

Хотелось бы услышать ваши советы по утеплению фасада. Пожелания: чтобы было тепло, долговечно и с минимальными требованиями по обслуживанию. Марморок конечно очень нравиться, но дорого. Какие еще варианты? У меня уже закрадывалась мысль обложить дом облицовочным кирпичом с зазором в 10 см, в который засыпать перлит., но при таком варианте нужно расширять фундамент на 20 см.... Короче жду дельных советов. :cool:

Посилання на коментар
Поділитися на інших сайтах

Добрый день земляк/сосед. Только начал аналогичный путь там же на Клочко.

Желаю всяческих успехов.

А что насчет помощи по документам, о каких документах речь?

И можно ли подробнее насчет "пролива" для аквариума, а то тоже планирую разместить аквариум и место его размещения определено, но я не особо специалист по аквариумам и насчет "пролива" не в курсе.

Посилання на коментар
Поділитися на інших сайтах

Добрый день земляк/сосед. Только начал аналогичный путь там же на Клочко.

Желаю всяческих успехов.

Привет! Спасибо!

 

А что насчет помощи по документам, о каких документах речь?

Вопрос не совсем корректный. Давай начнем с того, какие документы тебе нужны. Гос. акт на землю, строительный паспорт, уведомление о начале строительных работ..... Что у тебя уже есть и что еще нужно?

 

И можно ли подробнее насчет "пролива" для аквариума, а то тоже планирую разместить аквариум и место его размещения определено, но я не особо специалист по аквариумам и насчет "пролива" не в курсе.

Не "пролив", а "протока". Смысл в том, что через одну трубу вода подается, а через вторую сливается самотеком. Под вторую в стенке аквариума при его изготовлении делается отверстие. Протока нужна не для всех рыб, просто у нас дискусы, а им нужно водичку почаще обновлять. Короче надо тебе протока или нет лучше посоветоваться с знатоками-аквариумистами.

 

На какой улице строишься? Или еще не начинал?

Посилання на коментар
Поділитися на інших сайтах

Участок на Балтийской. Пока только развалил часть старого дома и вырыл котлован под подвал (под частью дома).

 

Все вышеперечисленные документы уже есть - рисовал, получал сам, долго но бесплатно. Насчет документов это так на перед, вдруг чего-то надо, а уже есть хорошие люди и знают где/как/по чем.

 

Насчет протоки понял, но не до конца, когда дойду до сетей главное не забыть (а то Дискусы мне тоже очень нравятся - у меня брат аквариумист, думаю поможет - возможно он насчет протоки и знает, но у него дома я такого не видел, хоть и аквариумы с дискусами у него есть.)

Посилання на коментар
Поділитися на інших сайтах

Створіть акаунт або увійдіть у нього для коментування

Ви маєте бути користувачем, щоб залишити коментар

Створити акаунт

Зареєструйтеся для отримання акаунта. Це просто!

Зареєструвати акаунт

Увійти

Вже зареєстровані? Увійдіть тут.

Увійти зараз
×
×
  • Створити...