Перейти до публікації
Пошук в
  • Додатково...
Шукати результати, які містять...
Шукати результати в...

Как организовать вентиляцию дома

Perushka

Рекомендовані повідомлення

Пришло время подумать!!! :fool: как обустроить вентиляцию в доме, нужно, конечно, было этим заняться на этапе проектирования, но имеем, что имеем…

Есть двухэтажная коробка с цоколем и нежилой чердак. Цоколь из несъёмной бетонной опалубки, стены - 2нф керамоблок, перекрытия - монолит, на крыше из осб короб под вентиляцию.

 

На рис. цоколь (в проекте были еще 3 окна, но сделали без них - зачеркнуты)

18- топочная

17-сауна

15-кладовая

16-мастерская

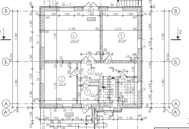
На рис 1-ый этаж

1-тамбур

6-с/у

5-кухня

4 – зал

3-кабинет

Между кухнею 5 и залом 6 сделали проем 1,3 м

На рис. 2-ой этаж

10, 11, 12 – спальни

13- с/у

9 гардероб

на всякий случай прилепила стропилку крыши

 

С момента перекрытия цоколя постоянно дергала прораба и бригадира по вопросу вентиляционных шахт, на что оба отвечали, что их будем делать потом, и что так правильно…

Каюсь, не вникала в вопрос и пустила дело на самотек…

Дошли руки, и теперь, появилось куча вопросов:

1. Какую делать вентиляцию ЕВ или ПВ???

2. Как обустроить вентиляцию в цоколе, в частности в помещениях 15, 16 и гардеробе на 2-м этаже???

3. Из каких материалов делать вентканалы

 

Собственно хочется получить нормальный воздух в доме, кондиционирование не планируется.

323826151_.png.47d639e3ff8a9da7bfa83ac95ae97deb.png

1785555127_1-.png.ac4823289dbcf576710432e10de0434a.png

547155253_2-.png.c315b43856cbfc5a204692c2302918a0.png

946487717_.png.e8f21c6504e24985562000b8790ef478.png

Посилання на коментар
Поділитися на інших сайтах

Верно "морозятся" Ваши строители - это не их дело. Поздновато Вы подняли вопрос (в идеале проектировать до коробки), но не совсем - отделки еще не было и потолки можно откорректировать, что дает возможность, но не так широко.

Широко - это когда на этапе проектирования с архитектором выбрасываются кирпичные каналы, облегчается фундамент и заказчик экономит на этом деньги обшивая воздуховоды огнестойким гипсокартоном.

 

Правильно делать каналы не под размер кирпича Петра I, а под Ваши помещения, что подразумевает:

1) определиться сколько воздуха необходимо по нормативам подавать в "чистые" помещения (спальни);

2) то же, удалять или предусмотереть переточные решетки и вытяжку из помещений;

3) просуммировать вытяжки всех потребителей (с/у, камины, топочные, дымоходы) и задаться притоком на его компенсацию (нет притока = нет вытяжки = обратная тяга).

 

Получим количество воздуха приточного и вытяжного по помещениям и тогда возможно определить сечения каналов или воздуховодов, т.к. скорости в них нормированы = площадь = сечение АхВ или всегда лучше круглый. Потом компонуя разные размеры вместе сводим по мах вытяжных потребителей к кровле, что бы было меньше в кровле проходов. Где критично то рассматриваем увеличение скорости в пределах норм или местно заужаем сечение.

  • Лайк 1
Посилання на коментар
Поділитися на інших сайтах

Створіть акаунт або увійдіть у нього для коментування

Ви маєте бути користувачем, щоб залишити коментар

Створити акаунт

Зареєструйтеся для отримання акаунта. Це просто!

Зареєструвати акаунт

Увійти

Вже зареєстровані? Увійдіть тут.

Увійти зараз
×
×
  • Створити...