Перейти до публікації
Пошук в
  • Додатково...
Шукати результати, які містять...
Шукати результати в...

Каркасный дуплекс

peet-bull

Рекомендовані повідомлення

На днях начинаем строительство каркасного дуплекса на две семьи, а пока мини-предисловие: после рождения второго ребенка, стало тесновато в однокомнатной квартире... Сначала думали про двушку, потом присматривались к таун-хаусам, в итоге весной купили 10 соток.

 

Участок находится в г.Обухов м-н.Стожары. В наличие газ, электричество, вода (центральная городская). Хотели свою скважину, но к сожалению водоносный слой в микрорайоне (ссылка устарела). Собственно работы на участке начнутся примерно через 2-3 дня.

 

01-04 - соседи слева и сверху-справа уже построились;

05 - через дорогу напротив, слева, в скором времени появится детская площадка.

01.thumb.jpg.d7859a42684cf50d81189b607ed930a0.jpg

02.thumb.jpg.aad154613fe945b622c8296864b5b93d.jpg

03.thumb.jpg.ebc338dd009d3c0061c5ebe4114ea645.jpg

04.thumb.jpg.462f34c5a9d85f4e85f79a18257c72ef.jpg

05.thumb.jpg.5bf50548e48a7dd1353008ed51e9bb51.jpg

Посилання на коментар
Поділитися на інших сайтах

Дуплекс разделен на 2 части, с общей котельной:

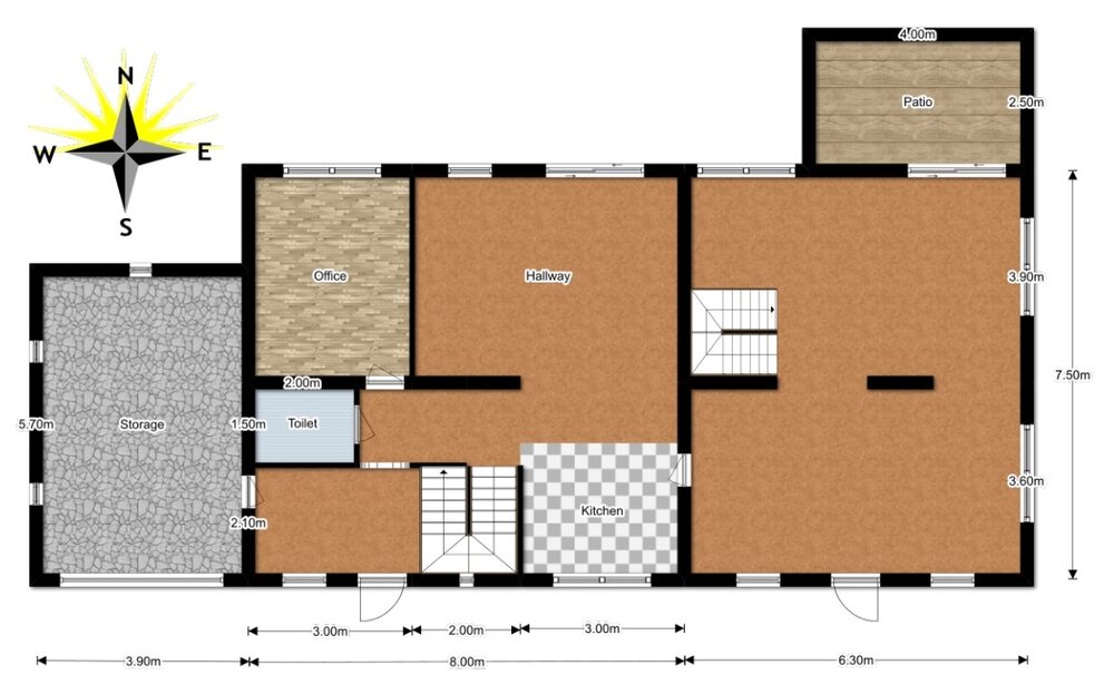
дом1 - 87,3м2, для родителей (доставка в июле) 7,5*6,3 +тераса

дом2 ~120-130м2, для нас с детьми (планируем на август-сентябрь) 7,5*8,0 +гараж

 

Примерный план и утвержденная правая часть (дом1). Подскажите плиз, стоит ли менять местами с/у с лестницей в левой части (дом2).

plan_1et.thumb.jpg.6537541e73699cc5678ef9f12b412bd4.jpg

plan_2et.jpg.70efd074072dd1dcdf38238b5b2c9666.jpg

dom1_01.jpg.a1bbfdb14663cdf1b4053ceeaa5a6613.jpg

dom1_02.jpg.c3616dda207a0a974621767eeef3b668.jpg

dom1_03.jpg.b4e594081a0beedd6b2d8c9363571436.jpg

dom1_04.jpg.5a3149567e0558b1e43ebb62aa1dc035.jpg

Посилання на коментар
Поділитися на інших сайтах

Строит Сервус, по плану полумансарда, битумная черепица, двухкамерный септик по 2 кольца каждый... над остальным думаем ))

 

Дом1.

05.jpg.83fc1e990fe260a8fe90350cd822e1d3.jpg

06.jpg.b3c5031337ed76ab8c784359b8ac23e3.jpg

07.jpg.03648b27ea19056efed21dd4546d6b79.jpg

08.jpg.f38ea33827d490309ce6ce643c5e84c2.jpg

09.jpg.196a6c7130ad174111d3a7d5ff5109ad.jpg

10.jpg.b0afc52ad2b53034e8b60791555b0682.jpg

11.jpg.e4d4b7197c1721f8c2acec30341489aa.jpg

12.jpg.100c4f8b187f4c92adddfd0852b8ccc4.jpg

13.jpg.15e34c3ed1dbd2880a65b1e30431d927.jpg

14.jpg.dcb46b9425c42575585d86a9f4db209a.jpg

15.jpg.6be931d56503ba7d10e31f89adea2438.jpg

Посилання на коментар
Поділитися на інших сайтах

Вот и первые вопросы созрели:

1) окна: rehau euro60 или wds 404

2) лестница: ясень, дуб или клен (ширина 90 или 95)

 

ЗЫ по лестнице поторопился, таки будет ясень

Посилання на коментар
Поділитися на інших сайтах

Вот и первые вопросы созрели:

1) окна: rehau euro60 или wds 404

Я только вчера поставил окна. На маленьких окнах у меня Рехау Евро60, на больших и входной двери Евро70. Разница в том, что 60 - 3-х камерный, а 70-й - 5 камерный. ВДС - 4-х камерный. Так как окна у вас не маленькие и Обухов не Одесса (хоть и на "О"), я бы советовал Рехау Евро70. Ну и в этот профиль можно поставить двухкамерный стеклопакет.

  • Лайк 1
Посилання на коментар
Поділитися на інших сайтах

Сегодня, с опозданием на пару дней, таки приехала бригада отвечающая за фундамент.
Посилання на коментар
Поділитися на інших сайтах

Подумайте над WDS 5-ой серии не намного дороже, но по всем характеристикам на голову выше! Покупать что-то проще потом станет себе дороже )

А по лестнице я бы посоветовал делать не уже 1м, так как разминуться на ней будет прямо скажем проблемно и поднимать наверх вещи еще тот геморрой )

  • Лайк 1
Посилання на коментар
Поділитися на інших сайтах

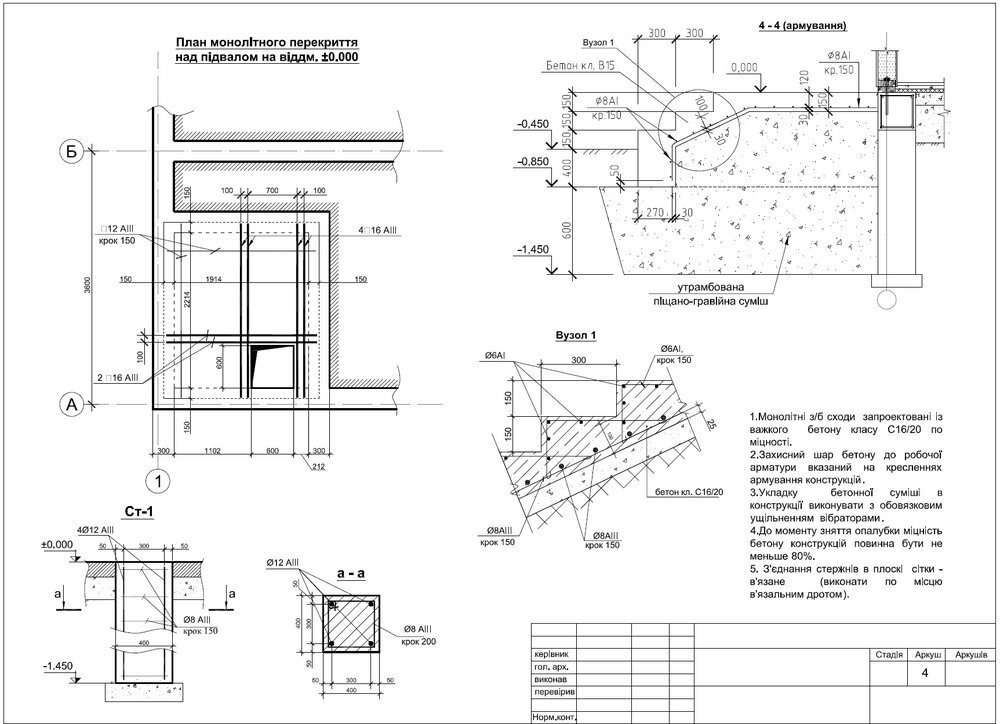
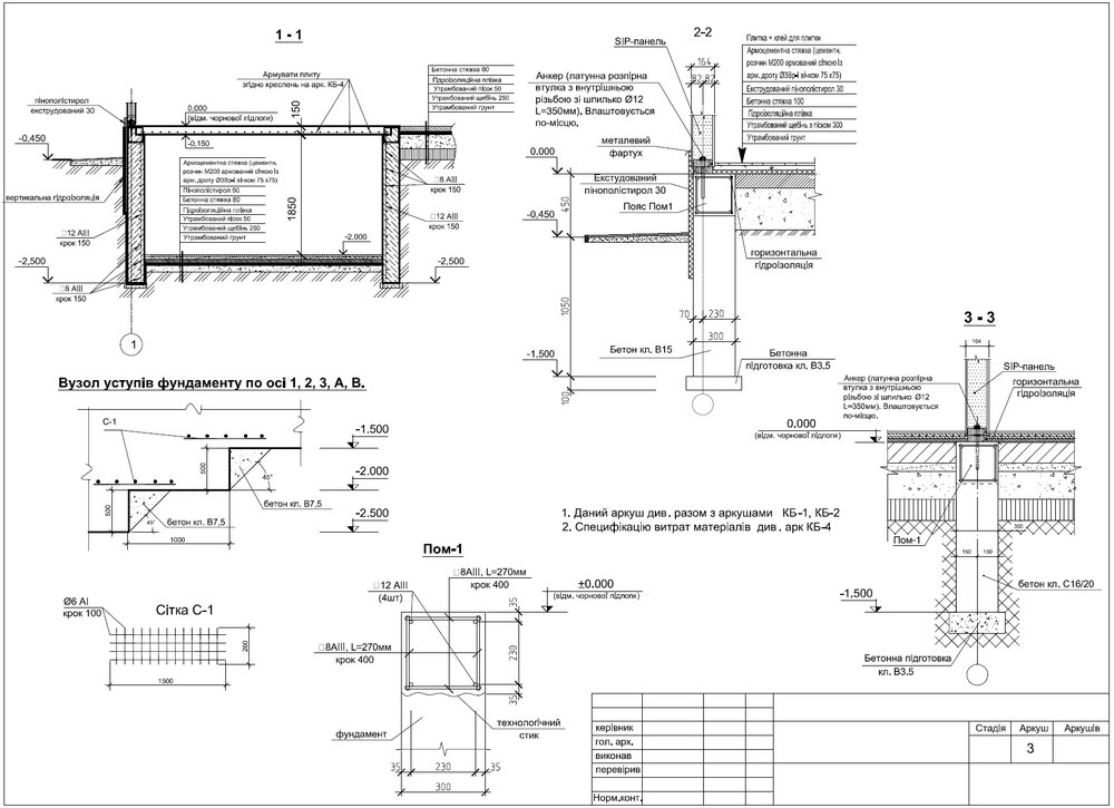
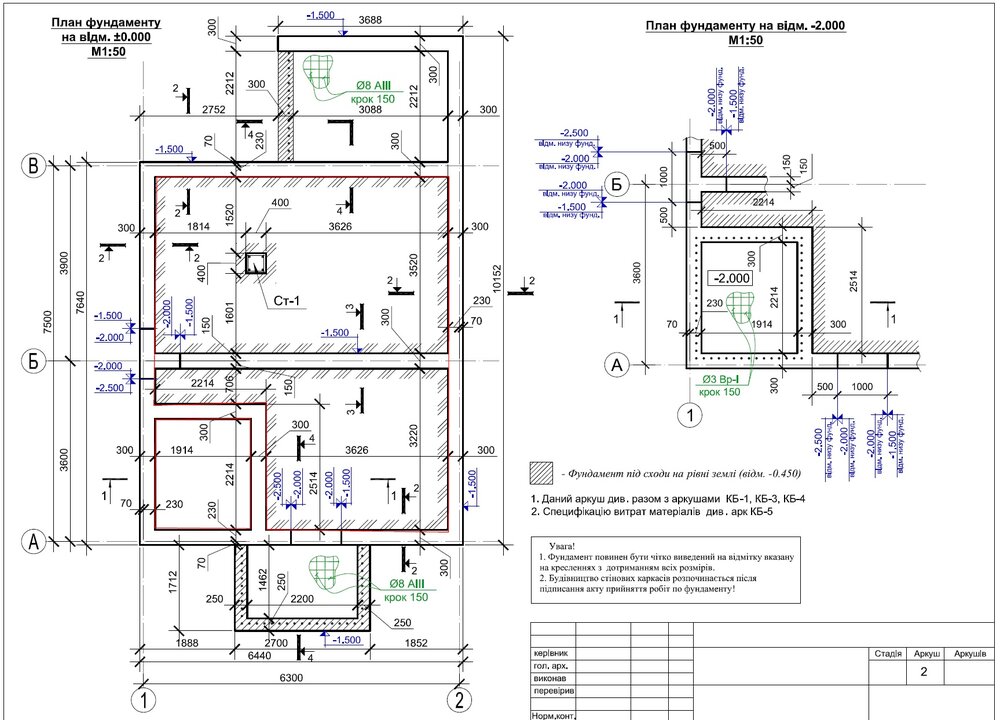
Чертежи фундамента, авось пригодятся, правда от подвала отказались...

297756436_-1.thumb.jpg.431c3ff2d7482d02db910313fb3767a0.jpg

1427080754_-2.thumb.jpg.a8bf9a04f9854726e4e738421424fd73.jpg

479705237_-3.thumb.jpg.6c9bee46fe5784547b256f13617dd704.jpg

923192525_-4.thumb.jpg.2ea479aaec6503f5c21d8ae607c5006f.jpg

Змінено користувачем peet-bull
Посилання на коментар
Поділитися на інших сайтах

  • 1 місяць потому...
Вот и заказали свою часть домкомплекта, правда погода не дает приступить к работам по фундаменту. Позже выложу окончательные планы дуплекса. А пока несколько фоток процесса монтажа родительской части дома:

IMG_20130816_110908_647.thumb.jpg.d67a037a91572d2b732e06db1ea12725.jpg

IMG_20130828_111446_537.thumb.jpg.2460820e8fdc73e60a5b46a4b512b494.jpg

IMG_20130828_111719_843.thumb.jpg.3bc21d2fc6f0f7e0f9d34d0e88aad6f5.jpg

IMG_20130828_111736_251.thumb.jpg.919a34924d1e36a62eb4d37d46ab50bd.jpg

Посилання на коментар
Поділитися на інших сайтах

  • 3 місяці потому...

...а тем временем родительская часть дуплекса на финишной прямой. Крыша утеплена минватой 150мм, остатки пошли на утепление пола.

 

Коммуникации. Ввод в эксплуатацию обошелся примерно в 32тыс.грн. Электричество, в количестве 15кВт - 11тыс.грн, городская вода - 5тыс.грн, газ - 16тыс.грн, уже врезались, ждем когда закончат проект и заведут в дом. Думали ставить двухконтурный котел и делать разводку на обе стороны дуплекса... оказалось дороговастенько, не потянем в этом году. Перезимуем на электрических конвекторах, а там будет видно. Газ распределится на: газовая плита (2шт) и колонка MARCO POLO Gi7S (2шт).

 

Фасад. Напомню, что стена - СИП-панель 164мм (осб12+пенополистирол140+осб12). Так как ПМЖ, маман послушала строителей и решила утеплить полифасадом 40мм. В инетах пишут что полифасад это утепление + гидроизоляция + отделка. Написать можно разного, потому возник вопрос: стоило ли делать гидроизоляцию?

 

Отделка. Первый этаж обшили блок-хаусом, второй - вагонкой, как переедут скину фоток побольше. Тем временем пошел снег и мы помаленьку помогаем им перевозить вещи... кстати у них сделана пароизоляция пола, потолка и кровли, а стен - нет. И вентиляции как таковой не предвидится, ну разве уговорю поставить приточные клапаны.

05_01.thumb.jpg.1dba87938e1ee97347b26eb370460e84.jpg

09_01.jpg.e56c3f9bdc307c3124f1f2c1b05d7a94.jpg

09_04.jpg.0745d41a599970be0becd657b10f8b85.jpg

09_05.jpg.ef61922e79dab17fc3e0c2720c2fbd26.jpg

09_06.thumb.jpg.73f95bc2379869e48279f0465a483fb3.jpg

09_07.jpg.2b6630e26a9767a1995bdb3dcd1c0bb0.jpg

09_09.jpg.2e6a6f98b2c5dd6ba927b9b2aaca026d.jpg

09_10.jpg.ab4ada6e644d500014bc635f6134cc7b.jpg

Посилання на коментар
Поділитися на інших сайтах

Створіть акаунт або увійдіть у нього для коментування

Ви маєте бути користувачем, щоб залишити коментар

Створити акаунт

Зареєструйтеся для отримання акаунта. Це просто!

Зареєструвати акаунт

Увійти

Вже зареєстровані? Увійдіть тут.

Увійти зараз
×
×
  • Створити...