Upletai Опубліковано: 6 липня 2013 Поділитись Опубліковано: 6 липня 2013 Привет, форумчане, ситуация такова: Фундамент состоит из армированной пятки (900*300), и ленты 550*1200. Пятку получается залить одним махом, а вот неармированную стену - частями, этапами(не хватает щитов, что бы залить в один момент). Вопрос: Как лучше поступить? 1. Заливать с холодными швами под 45 градусов частями? 2. Взять в аренду еще щитов, и лить до победного? По второму варианту берут сомнения, что действительно получится залить все быстро (в течение 12 часов). Планирую использовать глубинный вибратор. Посилання на коментар Поділитися на інших сайтах More sharing options...
Игореха Опубліковано: 6 липня 2013 Поділитись Опубліковано: 6 липня 2013 Мое имхо. Холодные швы под 45 - это в любом случае не очень хорошо. Если фундамент не армирован, то разницы особой нет - делайте горизонтальные швы и поднимайте опалубку. А в чем трудность с армированием? Потратьте еще 3000 грн на арматуру. Правда в этом случае, холодный шов надо делать вертикальным. 1 Посилання на коментар Поділитися на інших сайтах More sharing options...
prazdnikof Опубліковано: 6 липня 2013 Поділитись Опубліковано: 6 липня 2013 Я сделал вертикальные холодные швы для перевязки закладывал пару арматурин 10-ки, поверх всего этого дела армопояс и всё чудестнооо. 1 Посилання на коментар Поділитися на інших сайтах More sharing options...
valeriy123 Опубліковано: 6 липня 2013 Поділитись Опубліковано: 6 липня 2013 а вот неармированную стену - частямиА как же тогда быть с фундаментными блоками? Я так понимаю, должен быть нижний армо пояс и верхний армо пояс - залитые за раз. Или не прав? Посилання на коментар Поділитися на інших сайтах More sharing options...
haiku Опубліковано: 6 липня 2013 Поділитись Опубліковано: 6 липня 2013 Боже, что-ж у вас там за небоскреб? Это к тому, что перестраховались вы там, не иначе как тысячекратно Сэкономить пару-тройку тысяч грн на геологии и потратить на порядок большие деньги, на ленту Я вот буду под свой тяжелый каркасник, лить ТИСЭ с ростверком над землей и хватит одного миксера;) Автору топика, если с армированием ленты, тоже не сэкономили... все будет нормально АХТУНГ! На гидроизоляции с дренажом и обратными засыпками, не экономьте! хотя как знаете Посилання на коментар Поділитися на інших сайтах More sharing options...
Игореха Опубліковано: 6 липня 2013 Поділитись Опубліковано: 6 липня 2013 Боже, что-ж у вас там за небоскреб? Это к тому, что перестраховались вы там, не иначе как тысячекратно Сэкономить пару-тройку тысяч грн на геологии и потратить на порядок большие деньги, на ленту Т.е. вы считаете, что перерасход на этом фундаменте 20-30 т.грн? Добавлено через 2 минуты Я вот буду под свой тяжелый каркасник, лить ТИСЭ с ростверком над землей и хватит одного миксера;) Аааа... так у автора тоже каркасник? Сорри - сразу не прочитал Посилання на коментар Поділитися на інших сайтах More sharing options...
Upletai Опубліковано: 7 липня 2013 Автор Поділитись Опубліковано: 7 липня 2013 У меня небоскреб, но не очень высокий, зато тяжелый - дом порядка 600 тонн с мебелью и жильцами, на достаточно пучинистых грунтах. Рядом верховодка (на -2.0), весной поднимается до -0.5. Геология у меня сделана, фундамент расчитан проектным бюро. Добавлено через 7 минут АХТУНГ! На гидроизоляции с дренажом и обратными засыпками, не экономьте! хотя как знаете Что Вы имеете ввиду? что гидроизолировать? у меня нет подвалов/цокольных этажей, считал что достаточно утеплить снаружи Эппсом цоколь, ну и черновой пол. Считаете что нужно гидроизолировать всю лентуснаружи и изнутри? Посилання на коментар Поділитися на інших сайтах More sharing options...
valeriy123 Опубліковано: 7 липня 2013 Поділитись Опубліковано: 7 липня 2013 дом порядка 600 тонн с мебелью и жильцамиМонолитный каркасник? Посилання на коментар Поділитися на інших сайтах More sharing options...
Upletai Опубліковано: 7 липня 2013 Автор Поділитись Опубліковано: 7 липня 2013 Монолитный каркасник? :D Обычный, керпичный дом, обложен клинкером, с монолитным перекрытием между 1-м и 2-м этажами. 1 Посилання на коментар Поділитися на інших сайтах More sharing options...
Игореха Опубліковано: 7 липня 2013 Поділитись Опубліковано: 7 липня 2013 Монолитный каркасник? Вы тоже прочитали про каркасник?:D Посилання на коментар Поділитися на інших сайтах More sharing options...
valeriy123 Опубліковано: 7 липня 2013 Поділитись Опубліковано: 7 липня 2013 Вы тоже прочитали про каркасник?Да, прикинул свой дом - тяжелый... Посилання на коментар Поділитися на інших сайтах More sharing options...
1tsov77 Опубліковано: 8 липня 2013 Поділитись Опубліковано: 8 липня 2013 Как лучше поступить? 1. Заливать с холодными швами под 45 градусов частями? Шов делается не под 45 градусов, а ступенькой. 1 Посилання на коментар Поділитися на інших сайтах More sharing options...
wipe Опубліковано: 8 липня 2013 Поділитись Опубліковано: 8 липня 2013 Что Вы имеете ввиду? что гидроизолировать? у меня нет подвалов/цокольных этажей, считал что достаточно утеплить снаружи Эппсом цоколь, ну и черновой пол. Считаете что нужно гидроизолировать всю лентуснаружи и изнутри? не надо ничего гидро-изолировать. 2 Посилання на коментар Поділитися на інших сайтах More sharing options...
Upletai Опубліковано: 8 липня 2013 Автор Поділитись Опубліковано: 8 липня 2013 Шов делается не под 45 градусов, а ступенькой. правильно понимаю, если у меня высота ленты 150 см, сделать ступеньку 75*75 см? Посилання на коментар Поділитися на інших сайтах More sharing options...
salexa Опубліковано: 9 липня 2013 Поділитись Опубліковано: 9 липня 2013 Что в лоб что по лбу. Под 45 градусов или под 90 - в чем разница? Функцию армопояса (балки) эта лента выполнять не будет, и если в какой либо из ее частей возникнет растяжение - даст трещину по шву, вне зависимости от того, как Вы устроите шов. Конечно, есть нарушение п.2.12, СНИП 3.03.01-87, но как к этому случаю не особо применимо, так как Ваша лента, так же как и например фундаментные блоки, будет работать только на сжатие. Лить целиком, или как Вы говорите, "до победного", обязательно только в том случае, если Вы все же решитесь армировать ленту. В этом случае, кроме пятки, еще и лента будет работать как на сжатие, так и на растяжение. Если не дай бог, будут просадки грунта - будете спать спокойно. Но, если Вы уверены в геологии ( в своих грунтах)- лейте как нравится и ни кого не слушайте. 2 Посилання на коментар Поділитися на інших сайтах More sharing options...
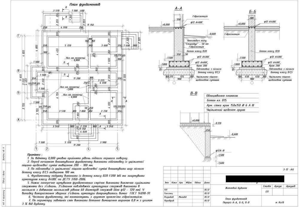
Upletai Опубліковано: 9 липня 2013 Автор Поділитись Опубліковано: 9 липня 2013 Спасибо, думаю что моя пятка должна бы выдержать нагрузки на растяжение. Как-то меня не посетила светлая мысль сразу выложить план фундамента. Посилання на коментар Поділитися на інших сайтах More sharing options...
Рекомендовані повідомлення
Створіть акаунт або увійдіть у нього для коментування
Ви маєте бути користувачем, щоб залишити коментар
Створити акаунт
Зареєструйтеся для отримання акаунта. Це просто!
Зареєструвати акаунтУвійти
Вже зареєстровані? Увійдіть тут.
Увійти зараз