Перейти до публікації
Пошук в
  • Додатково...
Шукати результати, які містять...
Шукати результати в...

Нужна бригада профессионалов для обустройства крыши

Oleg8510

Рекомендовані повідомлення

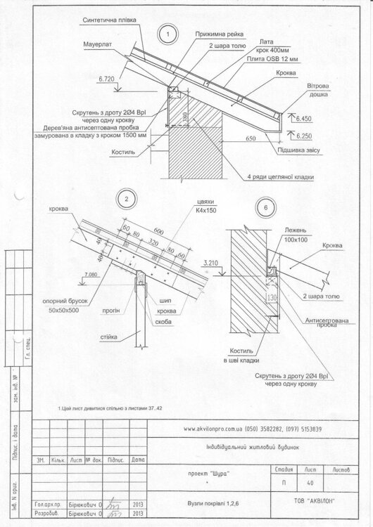
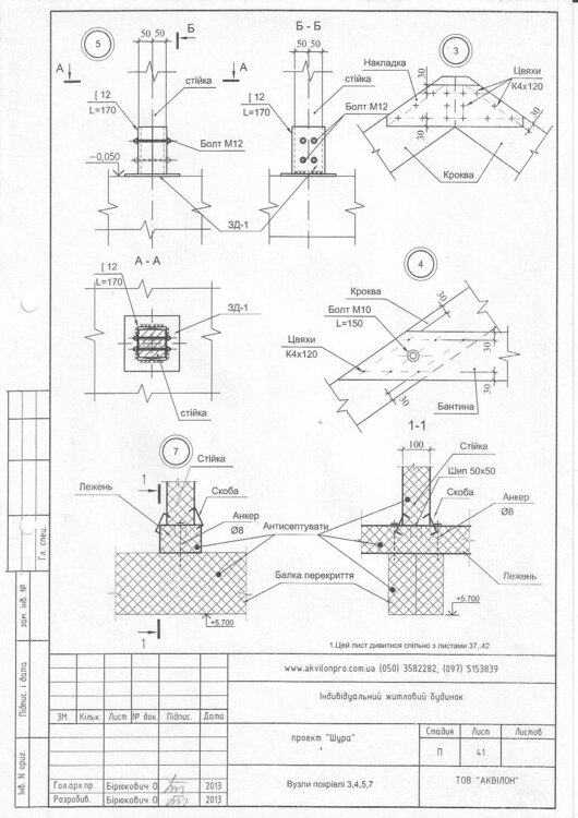
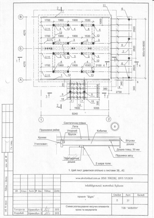
Крыша двухскатка,объём 148м2 с верандой.Покрытие-битумная черепица,хочу-Owens Corning Brawn.Дом строится с.Гора Борисп.рн.Примерно середина Августа.Надо сделать стропилку и накрыть,проект крыши прилагаю,жду предложений.

Scan10162.thumb.JPG.1e73038a03fc41ba366724f1fee3e171.JPG

Scan10168.thumb.JPG.f8104a63ee564272ee19fe506386e076.JPG

Scan10220.thumb.JPG.61ebc170a26d70ae86ff622a8f417bcf.JPG

Scan10221.thumb.JPG.c4d2a1c22e3a0bc2350a6d979f1825c8.JPG

Scan10195.thumb.JPG.af3b1f6aaaba8d67b02ecab48377b9d6.JPG

Scan10167.thumb.JPG.b47752d4fa7fb6d40ba76df86fb2d803.JPG

Посилання на коментар
Поділитися на інших сайтах

Створіть акаунт або увійдіть у нього для коментування

Ви маєте бути користувачем, щоб залишити коментар

Створити акаунт

Зареєструйтеся для отримання акаунта. Це просто!

Зареєструвати акаунт

Увійти

Вже зареєстровані? Увійдіть тут.

Увійти зараз
×
×
  • Створити...