goliyhlopec Опубліковано: 19 грудня 2018 Поділитись Опубліковано: 19 грудня 2018 Приветствую! А не проскакивал проект Ц02? www.proekty-muratordom.com/proekt_priiatnyi,85,0,0.htm?kdg=1&sd_0=&sd_1=&wsk_1=&pz_1=&pz_0=&pc_0=&pc_1=&gd_0=&gd_1=&web_0=&lp=3&web_1=&knd_0=&v=1&knd_1=&wsk_0=&pn_1=&pn_0=&p_0=&p_1=&a=&c=&g=0&wk_1=&wk_0=&o=&q=&wef_0=&wef_1=&t=1&wo_1=&wo_0= Посилання на коментар Поділитися на інших сайтах More sharing options...
Виталий_Буча Опубліковано: 20 грудня 2018 Автор Поділитись Опубліковано: 20 грудня 2018 Приветствую! А не проскакивал проект Ц02? www.proekty-muratordom.com/proekt_priiatnyi,85,0,0.htm?kdg=1&sd_0=&sd_1=&wsk_1=&pz_1=&pz_0=&pc_0=&pc_1=&gd_0=&gd_1=&web_0=&lp=3&web_1=&knd_0=&v=1&knd_1=&wsk_0=&pn_1=&pn_0=&p_0=&p_1=&a=&c=&g=0&wk_1=&wk_0=&o=&q=&wef_0=&wef_1=&t=1&wo_1=&wo_0= Именно такого нету, о из небольших есть много вариантов: Посилання на коментар Поділитися на інших сайтах More sharing options...
Виталий_Буча Опубліковано: 20 грудня 2018 Автор Поділитись Опубліковано: 20 грудня 2018 Именно такого нету, о из небольших есть много вариантов: Или такой: z500.com.ua/projekt/z16.html Посилання на коментар Поділитися на інших сайтах More sharing options...
Виталий_Буча Опубліковано: 20 грудня 2018 Автор Поділитись Опубліковано: 20 грудня 2018 Из небольших одноэтажных домиков есть еще Ц376, Общая площадь 82 кв.м.: Посилання на коментар Поділитися на інших сайтах More sharing options...
Виталий_Буча Опубліковано: 20 грудня 2018 Автор Поділитись Опубліковано: 20 грудня 2018 Ц 403, общая площадь 95 кв.м. Посилання на коментар Поділитися на інших сайтах More sharing options...
ROMAN A Опубліковано: 13 січня 2019 Поділитись Опубліковано: 13 січня 2019 Добрый вечер, интересует проект #6, дом с мансардой и гаражом. Цена, что в неё входит и в каком виде проект вы предлагаете (бумага, эл носитель)? Посилання на коментар Поділитися на інших сайтах More sharing options...
Виталий_Буча Опубліковано: 14 січня 2019 Автор Поділитись Опубліковано: 14 січня 2019 Добрый вечер, интересует проект #6, дом с мансардой и гаражом. Цена, что в неё входит и в каком виде проект вы предлагаете (бумага, эл носитель)? Добрый день! Полный комплект проектной документации (архитектурный раздел, конструктивный раздел, инженерные коммуникации) - 2000 грн. Около 60 страниц формата А3 И А4 в бумажном виде, основные чертежи можем выслать в электронном виде. Посилання на коментар Поділитися на інших сайтах More sharing options...
Виталий_Буча Опубліковано: 17 січня 2019 Автор Поділитись Опубліковано: 17 січня 2019 Проект двухэтажного дома Ц359, общая площадь 293 кв.м. Посилання на коментар Поділитися на інших сайтах More sharing options...
Виталий_Буча Опубліковано: 17 січня 2019 Автор Поділитись Опубліковано: 17 січня 2019 Проект дома с мансардой в стиле ШАЛЕ, общая площадь 230 кв.м Посилання на коментар Поділитися на інших сайтах More sharing options...
Виталий_Буча Опубліковано: 17 січня 2019 Автор Поділитись Опубліковано: 17 січня 2019 Двухэтажный дом Ц348, общая площадь 196,7 кв.м. Посилання на коментар Поділитися на інших сайтах More sharing options...
Виталий_Буча Опубліковано: 17 січня 2019 Автор Поділитись Опубліковано: 17 січня 2019 Дом баня Ц341, общая площадь 106 кв.м. Посилання на коментар Поділитися на інших сайтах More sharing options...
Виталий_Буча Опубліковано: 2 лютого 2019 Автор Поділитись Опубліковано: 2 лютого 2019 Готовые проекты коттеджей! Полный комплект проектной документации - 2000 грн. Посилання на коментар Поділитися на інших сайтах More sharing options...
lubistok Опубліковано: 4 лютого 2019 Поділитись Опубліковано: 4 лютого 2019 дом с мансардой Ц363 тоже цена интересует Посилання на коментар Поділитися на інших сайтах More sharing options...
Виталий_Буча Опубліковано: 4 лютого 2019 Автор Поділитись Опубліковано: 4 лютого 2019 дом с мансардой Ц363 тоже цена интересует 2500 грн. за проект Посилання на коментар Поділитися на інших сайтах More sharing options...
Виталий_Буча Опубліковано: 14 лютого 2019 Автор Поділитись Опубліковано: 14 лютого 2019 Дом с мансардой Ц230 Посилання на коментар Поділитися на інших сайтах More sharing options...
Виталий_Буча Опубліковано: 14 лютого 2019 Автор Поділитись Опубліковано: 14 лютого 2019 Дом с мансардой Ц278, ОБЩАЯ ПЛОЩАДЬ 206кв.м. Посилання на коментар Поділитися на інших сайтах More sharing options...
Виталий_Буча Опубліковано: 14 лютого 2019 Автор Поділитись Опубліковано: 14 лютого 2019 Проект сблокированного дома Ц289, общая площадь 76,5 кв.м Посилання на коментар Поділитися на інших сайтах More sharing options...
Виталий_Буча Опубліковано: 14 лютого 2019 Автор Поділитись Опубліковано: 14 лютого 2019 Двухэтажный дом с мансардой Ц333, общая площадь 303 кв.м. Посилання на коментар Поділитися на інших сайтах More sharing options...
Виталий_Буча Опубліковано: 14 лютого 2019 Автор Поділитись Опубліковано: 14 лютого 2019 Дом с мансардой Ц223, общая площадь 148 кв.м. Посилання на коментар Поділитися на інших сайтах More sharing options...
Виталий_Буча Опубліковано: 14 лютого 2019 Автор Поділитись Опубліковано: 14 лютого 2019 Двухэтажный дом Ц345, общая площадь 224 кв.м. Посилання на коментар Поділитися на інших сайтах More sharing options...
Виталий_Буча Опубліковано: 14 лютого 2019 Автор Поділитись Опубліковано: 14 лютого 2019 Проект каркасного дома с мансардой Ц346 Посилання на коментар Поділитися на інших сайтах More sharing options...
Виталий_Буча Опубліковано: 14 лютого 2019 Автор Поділитись Опубліковано: 14 лютого 2019 Одноэтажный дом Ц347, общая площадь 66,5 кв.м. Посилання на коментар Поділитися на інших сайтах More sharing options...
Виталий_Буча Опубліковано: 14 лютого 2019 Автор Поділитись Опубліковано: 14 лютого 2019 Одноэтажный каркасный дом Ц375 Посилання на коментар Поділитися на інших сайтах More sharing options...
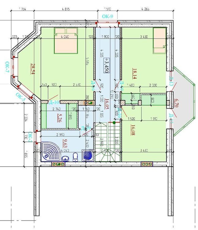
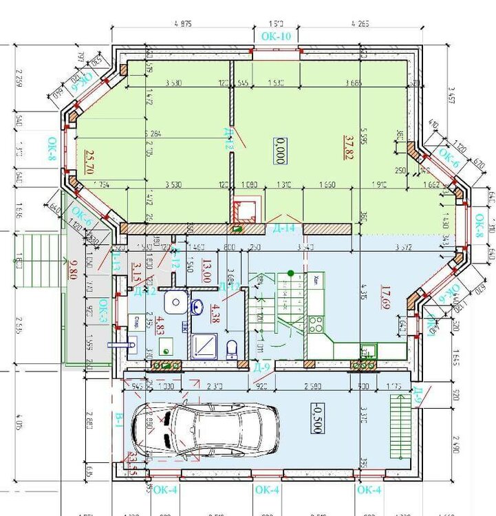
Виталий_Буча Опубліковано: 16 лютого 2019 Автор Поділитись Опубліковано: 16 лютого 2019 Проект дома с мансардой Ц529, общая площадь 250 кв.м. Посилання на коментар Поділитися на інших сайтах More sharing options...
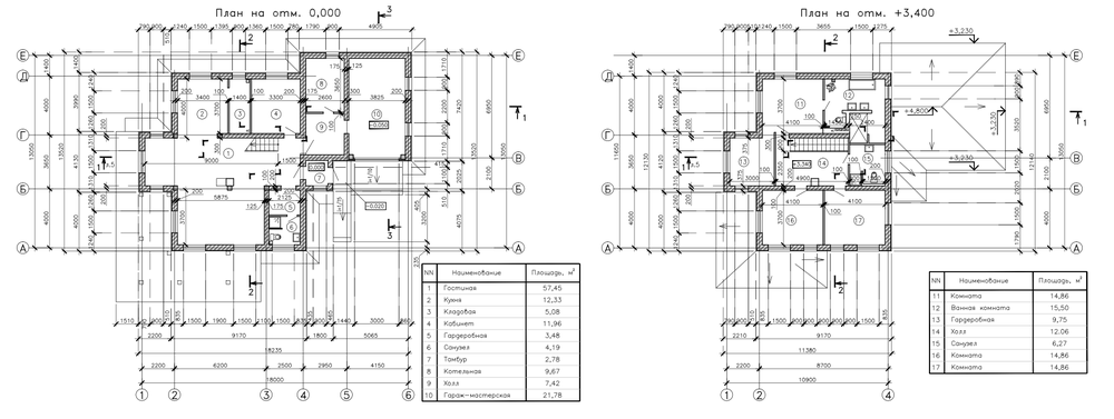
Виталий_Буча Опубліковано: 16 лютого 2019 Автор Поділитись Опубліковано: 16 лютого 2019 Проект дома с мансардой Ц526, общая площадь 160 кв.м Посилання на коментар Поділитися на інших сайтах More sharing options...
Рекомендовані повідомлення
Створіть акаунт або увійдіть у нього для коментування
Ви маєте бути користувачем, щоб залишити коментар
Створити акаунт
Зареєструйтеся для отримання акаунта. Це просто!
Зареєструвати акаунтУвійти
Вже зареєстровані? Увійдіть тут.
Увійти зараз