Перейти до публікації
Пошук в
  • Додатково...
Шукати результати, які містять...
Шукати результати в...

Эскиз проект

вторик

Рекомендовані повідомлення

Здравствуйте. Уважаемые форумчане.

Предлагаю Вам услугу архитектурного эскизного проектирования.

В результате нашей совместной работы, мы создадим действительно Ваш проект, идеально соответствующий всем Вашим требованиям, соответствующий окружению и участку.

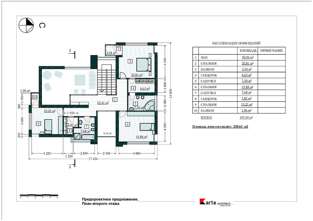
В результате работы Вы получите комплект чертежей/рисунков, как в прилагаемом файле «Эскиз-проект» Это: план участка, поэтажные планы, разрезы, фасады, визуализации на не высоком уровне.

Для информации:

Мои темы на форуме:

Строительство дома по моему проекту

Проект «Vesta dreams»

Кое что есть в альбомах.

Форумчане с которыми сотрудничал (другие задачи):

www.stroimdom.com.ua/forum/showpost.php?p=871520&postcount=27

www.stroimdom.com.ua/forum/showpost.php?p=933502&postcount=29

 

Оплата, символическая, но! срок выполнения около трех месяцев, так как хобби.

На вопросы постараюсь оперативно ответить в тему/личку.

836636381_-__01.thumb.jpg.fd52841f000efc72974ac24c9f08f768.jpg

1616300960_-__02.thumb.jpg.e9b0536bf424ab4a64d910d0026ff70a.jpg

1411270614_-__03.thumb.jpg.db2c953ea057e3d443ecf986c3d12dd2.jpg

1252774555_-__04.thumb.jpg.b4bfa059debb4d6705435fadb9bde84b.jpg

144180685_-__05.thumb.jpg.3c77104adc499e18c5901f9bae8003a6.jpg

1402188101_-__06.thumb.jpg.0804f8acc783830338cb80a9832f7bdf.jpg

1918255833_-__07.thumb.jpg.984e155b53428b9518050966d13615d3.jpg

1276383498_-__08.thumb.jpg.b4ff997c6eca7bbf28431e0dfde24378.jpg

951768356_-__09.thumb.jpg.51c9971bd98c4c1e81aa9c3c20933046.jpg

1137043000_-__10.thumb.jpg.a14d2ae63d79d408bd1276c7b690fa94.jpg

Посилання на коментар
Поділитися на інших сайтах

  • 4 тижні потому...
  • 2 тижні потому...
  • 2 тижні потому...

Еще некоторые мои работы, можно посмотреть в живую:

_Вилла._ 1-3 эт._ж/б каркас._несущие стены._ координаты google maps "50.681695,30.864306"

_Котедж_ 3 єт._ несущие стены._ координаты google maps "50.490047,30.404372"

_Котедж_ 3 єт._ ж/б каркас._ координаты google maps "50.391675,30.524093"

_Котедж_ 2 єт._ несущие стены._ координаты google maps "50.424146,30.175022"

_Котедж_ 2 єт._ несущие стены._ координаты google maps "50.360096,30.028059"

Посилання на коментар
Поділитися на інших сайтах

Створіть акаунт або увійдіть у нього для коментування

Ви маєте бути користувачем, щоб залишити коментар

Створити акаунт

Зареєструйтеся для отримання акаунта. Це просто!

Зареєструвати акаунт

Увійти

Вже зареєстровані? Увійдіть тут.

Увійти зараз
×
×
  • Створити...