Len_to4ka Опубліковано: 7 серпня 2013 Поділитись Опубліковано: 7 серпня 2013 Планирую кухню. Интересуют мнения, может что-то нужно изменить пока не поздно. Посилання на коментар Поділитися на інших сайтах More sharing options...
max_13 Опубліковано: 7 серпня 2013 Поділитись Опубліковано: 7 серпня 2013 Я не дизайнер, но часть где мойка просто ужас. Если часть кухни с вытяжкой хоть какая то симметрия присутсвует, то тут полный разброс разных секций. Я бы ее полностью пересмотрел Нишу глубиной 900 я бы зашил и встроил туда 2 высокие секции под холодильник и духовку и микроволновк, например как на фото. а иначе вы ее белаете слишком глубокой. Или сделать в этой нише просто большой шкаф для хранения , туда много чего поместится Посилання на коментар Поділитися на інших сайтах More sharing options...
Len_to4ka Опубліковано: 7 серпня 2013 Автор Поділитись Опубліковано: 7 серпня 2013 Я не дизайнер, но часть где мойка просто ужас. Если часть кухни с вытяжкой хоть какая то симметрия присутсвует, то тут полный разброс разных секций. Я бы ее полностью пересмотрел От части я согласна но как поменять не соображу . Под мойкой мусорное ведро. Слева от мойки посудомоечная машина (600), справа ящик для приборов ( хочется широкий , по-этому 800). Предложите варианты. Аргумент "мне не нравится" , не аргумент Посилання на коментар Поділитися на інших сайтах More sharing options...
max_13 Опубліковано: 7 серпня 2013 Поділитись Опубліковано: 7 серпня 2013 мой вариант ))) холодильники встроенные очень малы, у меня дома 2 шт. семья 4 чел - забиты удобно с мойки положить в ПосудМойМашину (ПММ) , потом чистое в сушку верхние блоки 45-2 = 90 можно секцию возле холодильников и мойки сделать с выдвижными ящиками 2+1 или 4 (2маленьких + средний, или 4 маленьких) сори за качество рисунков вытяжку крайне советую 90см , 60см на вашей огромной кухне будет выглядеть убого вариант 2 можно в нишу вщять 2 холодильника, а там где мойка сделать слева и справа верхние шкафы опустить до столешницы типа буфета. Посилання на коментар Поділитися на інших сайтах More sharing options...
max_13 Опубліковано: 7 серпня 2013 Поділитись Опубліковано: 7 серпня 2013 вариант 2 у окна. Вот вам пару вариантов для затравки, подумайте еще . Кухня большая есть где развернуться )\ сушка внизу - очень удобно, у меня дома так. ее можно сделать в верхней секции, а внизу просто катрюли ложить и сковородки Посилання на коментар Поділитися на інших сайтах More sharing options...
Len_to4ka Опубліковано: 7 серпня 2013 Автор Поділитись Опубліковано: 7 серпня 2013 (змінено) мой вариант ))) холодильники встроенные очень малы, у меня дома 2 шт. семья 4 чел - забиты Есть ещё морозильній ларь. Будет стоять в отдельном помещении(в хоз блоке не хочу его на кухню). вытяжку крайне советую 90см , 60см на вашей огромной кухне будет выглядеть убого Что-то не могу найти такую что бы нравилась вариант 2 можно в нишу вщять 2 холодильника, а там где мойка сделать слева и справа верхние шкафы опустить до столешницы типа буфета. Змінено 7 серпня 2013 користувачем Len_to4ka Посилання на коментар Поділитися на інших сайтах More sharing options...
max_13 Опубліковано: 7 серпня 2013 Поділитись Опубліковано: 7 серпня 2013 А какие у вас фасады? светлые, темные? кантри , классика? вытяжку нужно подбирать под фасады Посилання на коментар Поділитися на інших сайтах More sharing options...
max_13 Опубліковано: 7 серпня 2013 Поділитись Опубліковано: 7 серпня 2013 выше вытяжки 90см, а тут 60см. сравните разницу сами Посилання на коментар Поділитися на інших сайтах More sharing options...
Len_to4ka Опубліковано: 7 серпня 2013 Автор Поділитись Опубліковано: 7 серпня 2013 (змінено) И по поводу ниши. Её нет. Дальше идет столовая и ситинг. Там где угол ( Г-образный поворот) со стороны кухни планирую нижние шкафчики, со стороны ситинга барную стойку. Змінено 7 серпня 2013 користувачем Len_to4ka Посилання на коментар Поділитися на інших сайтах More sharing options...
Len_to4ka Опубліковано: 7 серпня 2013 Автор Поділитись Опубліковано: 7 серпня 2013 А какие у вас фасады? светлые, темные? кантри , классика? вытяжку нужно подбирать под фасады Фасады светлые, стиль кантри. Вытяжку думала такого плана (ссылка устарела) Посилання на коментар Поділитися на інших сайтах More sharing options...
max_13 Опубліковано: 7 серпня 2013 Поділитись Опубліковано: 7 серпня 2013 И по поводу ниши. Её нет. Дальше идет столовая и ситинг. [ATTACH]298708[/ATTACH] ну тогда вариант 1 и не закладывать и не перегразждать проходы. но это мое мнение. я попытался донести что ваш проект не очень удачный. слишком много дверок со стеклами над варочной, узкая вытяжка, неудачная комбинация секций у окна, наймите лучше дизайнера чтоб придумал кухню. я в свою очередь могу вам предложить фасады италия с цветком, стекла италия под эти фасады, вытяжку - ексклюзив под эти фасады (все как на фото кухни светлой) , так же у нас новинка стол и стулья тоже в стиль фасадов - все вместе готовле дизайн решение, выглядит просто супер! Посилання на коментар Поділитися на інших сайтах More sharing options...
Len_to4ka Опубліковано: 7 серпня 2013 Автор Поділитись Опубліковано: 7 серпня 2013 вариант 2 у окна. Вот вам пару вариантов для затравки, подумайте еще . Кухня большая есть где развернуться )\ сушка внизу - очень удобно, у меня дома так. ее можно сделать в верхней секции, а внизу просто катрюли ложить и сковородки Интересный вариант. Но не хочется отказываться от пенала. Добавлено через 5 минут ну тогда вариант 1 и не закладывать и не перегразждать проходы. но это мое мнение. я попытался донести что ваш проект не очень удачный. слишком много дверок со стеклами над варочной, узкая вытяжка, неудачная комбинация секций у окна, наймите лучше дизайнера чтоб придумал кухню. Ну кроме того что бы быть красивой кухня должна быть ещё практичной и удобной ( лично для меня). я в свою очередь могу вам предложить фасады италия с цветком, стекла италия под эти фасады, вытяжку - ексклюзив под эти фасады (все как на фото кухни светлой) , так же у нас новинка стол и стулья тоже в стиль фасадов - все вместе готовле дизайн решение, выглядит просто супер! Спасибо, с фасадами я уже определилась. Посилання на коментар Поділитися на інших сайтах More sharing options...
max_13 Опубліковано: 7 серпня 2013 Поділитись Опубліковано: 7 серпня 2013 Интересный вариант. Но не хочется отказываться от пенала. пенал слева от окна (там 1320), 2 пенала 1200. в угол, так как они глубокие 60см, а справа сделать глубиной 300 типа комодика. как вариант. см фотку, но можн7о фасады длинне чем на рисунке Посилання на коментар Поділитися на інших сайтах More sharing options...
max_13 Опубліковано: 7 серпня 2013 Поділитись Опубліковано: 7 серпня 2013 Спасибо, с фасадами я уже определилась. вдруг передумаете, милости просим :D Посилання на коментар Поділитися на інших сайтах More sharing options...
Len_to4ka Опубліковано: 7 серпня 2013 Автор Поділитись Опубліковано: 7 серпня 2013 Спасибо Вам за идеи! Буду думать. Посилання на коментар Поділитися на інших сайтах More sharing options...
Dunkan Опубліковано: 7 серпня 2013 Поділитись Опубліковано: 7 серпня 2013 Планирую кухню. Интересуют мнения, может что-то нужно изменить пока не поздно. [ATTACH]298670[/ATTACH] [ATTACH]298671[/ATTACH] [ATTACH]298679[/ATTACH] Посудомойка? это такая модель , невысокая? или тумба - поставлена , "схематично"? Микроволновка стоящая выше 1,5м , не всем удобна в пользовании. Как вариант, поставить её у колоны , "лицом" к двери? и чуть ниже. Приемлимо ли для Вас , разместить на одной стене мойку и варочную поверхность? "симетрировать" часть с мойкой не сложно , предлагаю убрать навесные шкафы над "поворотом"-барной стойкой. Посилання на коментар Поділитися на інших сайтах More sharing options...
Len_to4ka Опубліковано: 7 серпня 2013 Автор Поділитись Опубліковано: 7 серпня 2013 Посудомойка? это такая модель , невысокая? или тумба - поставлена , "схематично"? Вы правы. тумба - поставлена , "схематично" Приемлимо ли для Вас , разместить на одной стене мойку и варочную поверхность? Мойку и варочную на одной стене не выйдет ни как ( стояк и розетка на 380 на противоположных стенах.) "симетрировать" часть с мойкой не сложно , предлагаю убрать навесные шкафы над "поворотом"-барной стойкой. Если не сложно, опишите ваш вариант. Посилання на коментар Поділитися на інших сайтах More sharing options...
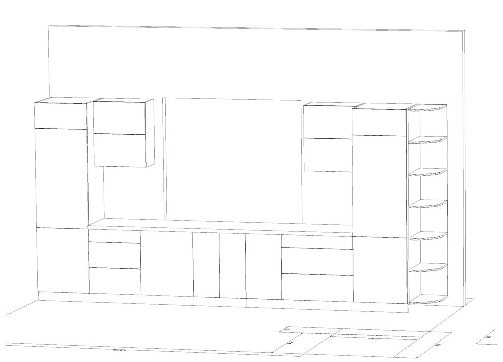
bcmebli Опубліковано: 7 серпня 2013 Поділитись Опубліковано: 7 серпня 2013 Вот такой вариант, подогнан под стандартные фасады Посилання на коментар Поділитися на інших сайтах More sharing options...
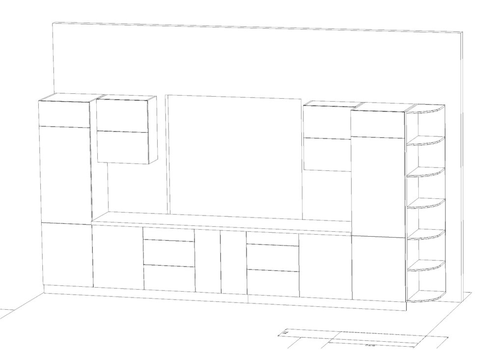
bcmebli Опубліковано: 7 серпня 2013 Поділитись Опубліковано: 7 серпня 2013 Еще вариант Посилання на коментар Поділитися на інших сайтах More sharing options...
Dunkan Опубліковано: 7 серпня 2013 Поділитись Опубліковано: 7 серпня 2013 Если не сложно, опишите ваш вариант. Мойка сдвигается вправо , вместо двух дверок на 300 , одна на 600 (как и у ПММ) ; справа и слева шуфляды. "Минус" этого варианта - мойка не по центру окна , что можно визуально сгладить , сместив смеситель влево. Посилання на коментар Поділитися на інших сайтах More sharing options...
bcmebli Опубліковано: 7 серпня 2013 Поділитись Опубліковано: 7 серпня 2013 Мойка сдвигается вправо , вместо двух дверок на 300 , одна на 600 (как и у ПММ) ; справа и слева шуфляды. "Минус" этого варианта - мойка не по центру окна , что можно визуально сгладить , сместив смеситель влево. мойка как раз и по центру окна. Посилання на коментар Поділитися на інших сайтах More sharing options...
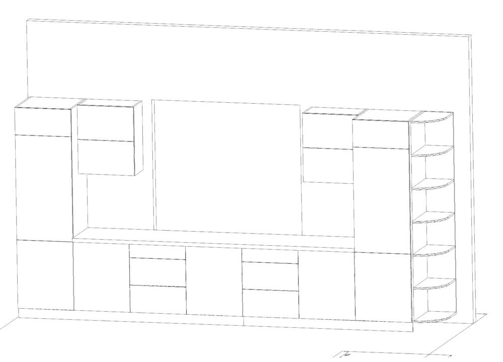
bcmebli Опубліковано: 7 серпня 2013 Поділитись Опубліковано: 7 серпня 2013 второй вариант кухни Посилання на коментар Поділитися на інших сайтах More sharing options...
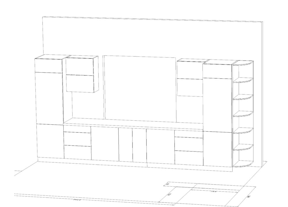
bcmebli Опубліковано: 7 серпня 2013 Поділитись Опубліковано: 7 серпня 2013 Другой вариант не плохой Посилання на коментар Поділитися на інших сайтах More sharing options...
Len_to4ka Опубліковано: 8 серпня 2013 Автор Поділитись Опубліковано: 8 серпня 2013 Остановились на этом Полки у окна надеюсь будут выглядеть так ))) Посилання на коментар Поділитися на інших сайтах More sharing options...
Dunkan Опубліковано: 8 серпня 2013 Поділитись Опубліковано: 8 серпня 2013 Полки у окна надеюсь будут выглядеть так ))) симпатичные... стиль также , будет выдержан? Посилання на коментар Поділитися на інших сайтах More sharing options...
Рекомендовані повідомлення
Створіть акаунт або увійдіть у нього для коментування
Ви маєте бути користувачем, щоб залишити коментар
Створити акаунт
Зареєструйтеся для отримання акаунта. Це просто!
Зареєструвати акаунтУвійти
Вже зареєстровані? Увійдіть тут.
Увійти зараз