Перейти до публікації
Пошук в
  • Додатково...
Шукати результати, які містять...
Шукати результати в...

Посоветуйте с фундаментом в котельной.

Karalex

Рекомендовані повідомлення

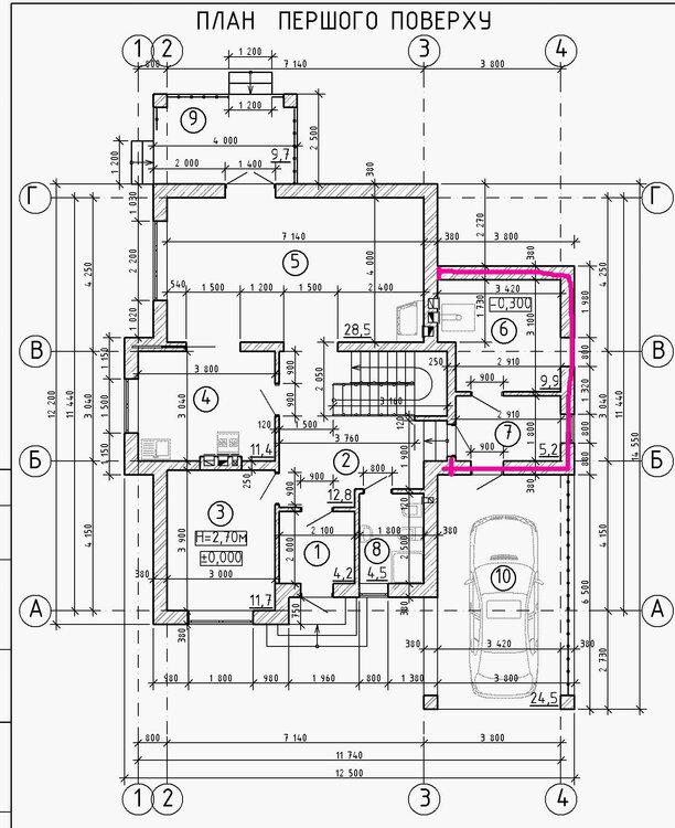
У меня котельная и кабинет пристроены к дому. По проекту - -30 отметка, хотя так не выходит вроде.:o Где то может 20 только.

Но это не важно. Все равно вот о чем думаю. Как будет, если фундамент будет выше пола. Ведь нет гидроизоляции. Делать ниже фундамент, а потом просто кирпичем вдруг чего цоколь поднять, но сделать гидроизоляцию для кирпича? Правильно думаю?

На рисунке обведено красным. Если по уровню, то высота сейчас фундамента по углам котельной над землей выходит около 40см. Сам дом - от 50 до 85 см цоколь. Левый угол соответственно выше, правый - ниже..

ПС. В перспективе наверно все таки будет гараж, а не навес.

1982848130_1.thumb.jpg.cf00d4ded048f605c91fb3210dd21b2b.jpg

Посилання на коментар
Поділитися на інших сайтах

Совета не дождался.:( Залил пока полностью. И смотрю возможно придется потом долбать, пилить под двери из дома в котельную и оттуда в гараж.:o Но в будущем посмотрим.
Посилання на коментар
Поділитися на інших сайтах

Створіть акаунт або увійдіть у нього для коментування

Ви маєте бути користувачем, щоб залишити коментар

Створити акаунт

Зареєструйтеся для отримання акаунта. Це просто!

Зареєструвати акаунт

Увійти

Вже зареєстровані? Увійдіть тут.

Увійти зараз
×
×
  • Створити...