Перейти до публікації
Пошук в
  • Додатково...
Шукати результати, які містять...
Шукати результати в...

Ясногородка. Массив "Ясный"- дома, участки у леса.

annamarso

Рекомендовані повідомлення

Современный городок «Ясный» — уникальный загородный поселок.

 

Современный поселок «Ясный» это уникальный частный городок, который сочетает в себе доступные цены и значительные преимущества.

 

Коттеджи и малоформатные многоквартирные дома находятся в 28 километрах от Киева. С одной стороны это означает более длительное время поездки в столицу, а с другой – возникает возможность для создание прекрасного собственного дома в котором можно чувствовать себя здоровым, спокойным и любимым. Девиз нашего европейского городка «Ясный – на 25 км ближе к Европе». И действительно, купив дом, или даже квартиру в поселке, Вы почувствуете вкус цивилизованной Европы: это неспешные прогулки и чистые тротуары, это работа на дому и свежий воздух, это надежный дом и достаток. Развитые страны западного мира все больше подвергаются тенденциям к рурализации.

 

attachment.php?attachmentid=299832&stc=1&d=1376311237

 

Наиболее успешные представители населения уже давно стремятся поселится подальше от центра мегаполиса в тихое, уютное и, безусловно, экологически чистое место. Коттеджи и квартиры в «Ясном» создают именно такой стиль жизни.

 

×В рамках проекта будут построены малоформатные (300-600 м2) многоквартирные (5-10 квартир) дома, сблокированные дома (80-120 м2), а также коттеджи различного размера и стиля. Тщательное планирование, основаное на анализе потребностей и концепции экологически-чистого города создаст уникальный в своем роде мир, частью которого можете стать и Вы.

attachment.php?attachmentid=299834&stc=1&d=1376311307

 

Безусловным плюсом является развитая инфраструктура поселка Ясногородка: школа, магазины, маршрутки. Во время успешной постройки современного городка, поселок Ясногородка получит значительный импульс и дальнейшее развитие инфраструктуры.

 

Коттеджи и домики будут возведены в чистой экологической зоне, для которой характерны колоритные живописные места: леса, озера и пруды, поля и луга.

 

www.stroimdom.com.ua/forum/attachment.php?attachmentid=299835&stc=1&d=1376311360

1804474159_._123.thumb.jpg.942ed0cf5cb12aadd6ab84664659a185.jpg

z.png.7b86aea7bbcb37985ab4f975912a6af0.png

ACCamera_1-1-e1374833233620-300x176.jpg.fb08cc4cc0223e76a0165005985c2dbc.jpg

475038833_.1.png.e6e1d482fcb5d5ffebbc9d54fc6d0ea3.png

Посилання на коментар
Поділитися на інших сайтах

Инфраструктура

 

«Ясный» сочетает в себе развитую инфраструктуру поселка Ясногородка: школа, магазины, маршрутки, а также свои собственные условия для комфортной жизни.

 

Частный городок строится на базе инновационных планировочных и строительных систем:

 

Открытая планировка городка с удобным пешеходным доступом от централизованной парковки к домам;

частный/общественный транспорт до городка от метро — минибус до- и от- станции метро (4 раза в день);

централизованное водоснабжение и децентрализованная канализация по 2-х трубной системе с возвратным использованием воды стимулирующие бережное отношение к водным ресурсам.

Плотность застройки будет составлять 9-11 % территории, что создаст высокий уровень экологичности и, соответственно, обеспечит озеленение и благоустройство городка на уровне 83–85 %.

 

Инфраструктура городка, также, будет включать такие важнейшие объекты и факторы, как:

 

городской общественный центр: магазин товаров первой необходимости, кафе, аптека, миниотель, планируется детская дежурная группа;

пешеходный бульвар по всей территории – 2,2 км;

европейский формат застройки: малоэтажные многоквартирные дома – 7 % застройки, сблокированные дома на 2–3 семьи – 20 %;

индивидуальные коттеджи;

детские и спортивные площадки;

артезианская скважина 95 м, централизованное водоснабжение, отопление, канализация;

минимальные эксплуатационные расходы за счет инновационных технологий энергосбережения;

плоские, эксплуатируемые кровли, панорамные окна от пола до потолка;

удобный пешеходный доступ к дому/квартире от стоянки автомобиля;

WiFi Интернет;

круглосуточный видео контроль несанкционированного доступа.

 

attachment.php?attachmentid=299837&stc=1&d=1376311529

573222539_17.thumb.jpg.d0d92f201f791e7978a026c1256cc622.jpg

Посилання на коментар
Поділитися на інших сайтах

Так как для нас очень важно создать инфраструктуру и обеспечить транспортную доступность городка, в первую очередь планируется создание небольших многоквартирных (до 9 квартир) домов, которые смогут оживить городок, а также обеспечат наполненность транспорта. Так же, во время первой стадии будет создано паркинг, дорогу и административное здание — гостиницу, магазин, кафе и аптека. На данный момент завершается строительство первых трех домов.

 

Следующая стадия подразумевает возведение первых уютных коттеджей. В дальнейшем будут построены парки, детские площадки, места отдыха. Стадии 3, 4, и 5 будут реализованы путем постройки коттеджей, а также домов.

attachment.php?attachmentid=299838&stc=1&d=1376311710

stadii-1024x723.thumb.jpg.6608213c99325da4a7f1ac33541507aa.jpg

Посилання на коментар
Поділитися на інших сайтах

Небольшие уютные квартиры в прекрасном экологически чистом месте позволят обрести свой собственный дом. Построенные по самым современным технологиям, дома в «Ясном» создают условия для счастливой и продолжительной жизни. Купить квартиру под Киевом недорого можно именно в «Ясном».

 

Доступность жилья в «Ясном» наглядно демонстрирует цена в 18 000 у. е. за 1-комнатную квартиру в готовом доме. При этом в городке действуют специальные акции которые позволяют купить квартиру за 14 900 у.е.! На данный момент завершается строительство первых трех домов.

 

Квартиры в «Ясном» имеют определенные преимущества:

 

экологичность: свежий воздух, деревья, чистая вода;

комфорт: свободная планировка и современные технологии строительства обеспечивают оптимальные условие проживания для Вас и Ваших близких;

месторасположение: жилье в «Ясном» сочетает в себе возможность работать в столице и жить в дали от городской суеты;

организованный транспорт и другая инфраструктура.

 

attachment.php?attachmentid=299839&stc=1&d=1376311900

 

Так же благодаря правилам застройки обеспечивается:

 

красная линия 5 м от границы участка;

отсутствие забора с фасада;

4 м от границ участка;

односторонне движение автомобилей.

Плотность застройки для сблокированных домов будет составлять до 3(4) человек/сотка (сблокированные). Всего население европейского городка может составить 1350 человек.

attachment.php?attachmentid=299841&stc=1&d=1376311965

6.jpg.658039b3f8beca66d871b0b06257810c.jpg

DSC_0399-e1374832872733-300x270.jpg.f104504a660cbb6c41c4a5befc062a59.jpg

Посилання на коментар
Поділитися на інших сайтах

attachment.php?attachmentid=299842&stc=1&d=1376312073

 

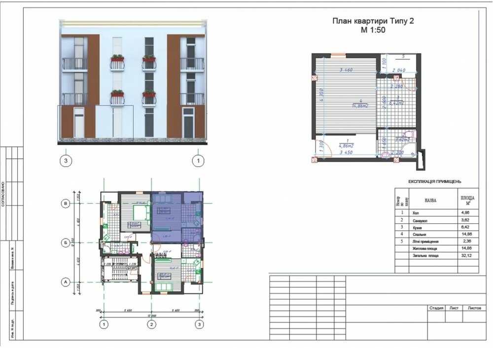
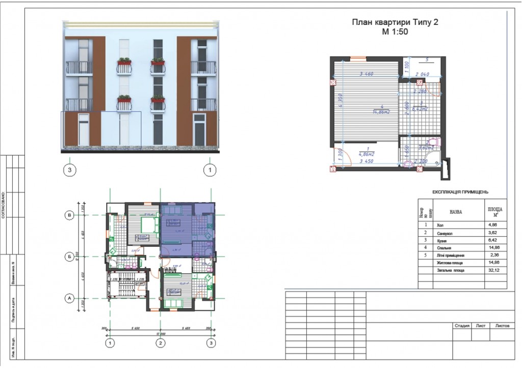
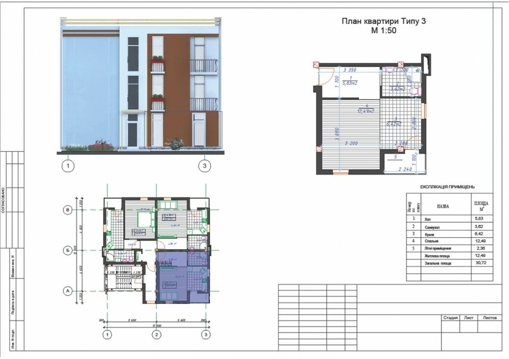
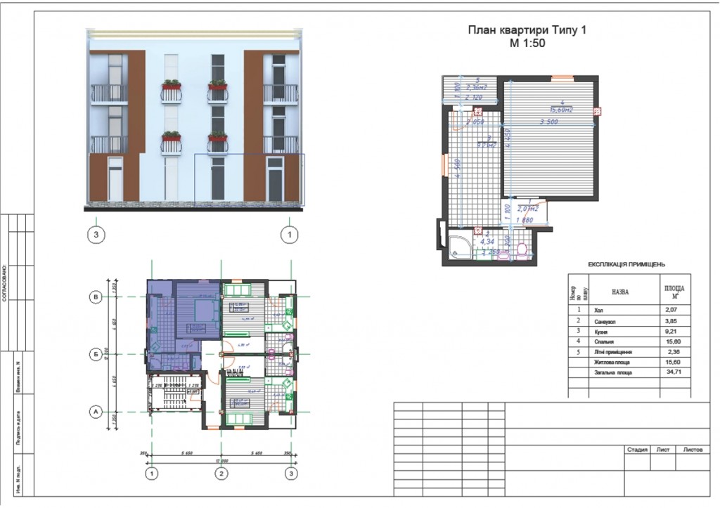
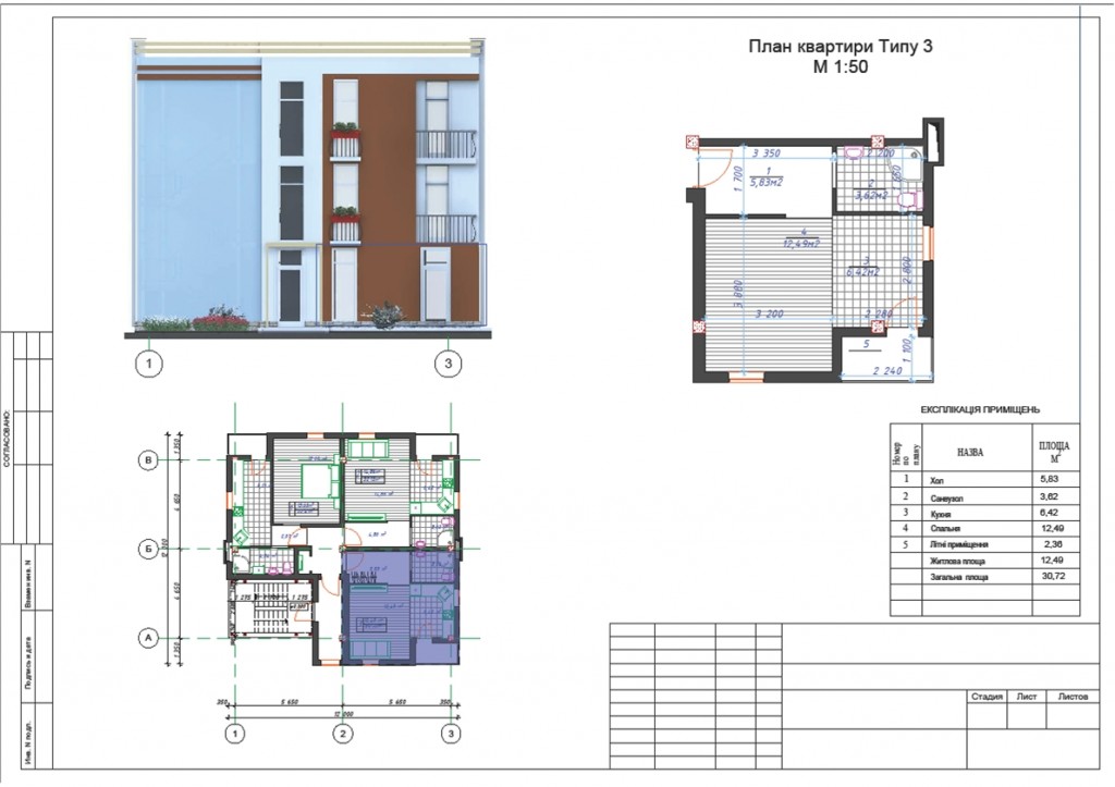
Квартира-студия площадью 30.72 м² в доме первой очереди по цене 550 у.е. за м²

 

attachment.php?attachmentid=299843&stc=1&d=1376312120

 

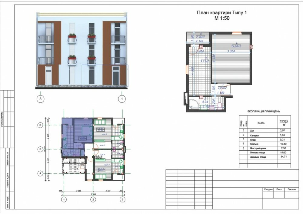
Квартира с отдельной кухней площадью 34.71 м² в доме первой очереди по цене 550 у.е. за м²

attachment.php?attachmentid=299844&stc=1&d=1376312170

Квартира с отдельной кухней на втором этаже площадью 36.72 м² в доме первой очереди по цене 550 у.е. за м²

1_1-1024x723.thumb.jpg.acd7dfb4bec807938af93a7692b1b57d.jpg

2.thumb.jpg.505fdf156e248491bf5a94b02779dfb6.jpg

3.thumb.jpg.eb885b88de9e2ff038ff4a5a16a5cd4a.jpg

4.thumb.jpg.0758169b52465c01b4b53c04a714af46.jpg

Посилання на коментар
Поділитися на інших сайтах

Возможна продажа участков

 

 

на территории сосновый самосев

 

к массиву подведена линия 10кВт.

Дорога отсыпана гравием.

Пробито 2 скважины по 100 метров.

43799130_1643.thumb.jpg.a908ed89d5aeb7022011d610248c4106.jpg

859761449_1642.thumb.jpg.c3a19bdc943ba212b489f292b92e5a98.jpg

Посилання на коментар
Поділитися на інших сайтах

мой предыдущий пост был конечно злой, поделом ему :)

annamarso, но скажите пожалуйста, чем Вам хрущовки неугодили? там какбы и планировки поприличней, и комуникации во внутренние стены попрятаны :(

но 50 паркомест на 180 квартир?

в Ясногородке?

Посилання на коментар
Поділитися на інших сайтах

мой предыдущий пост был конечно злой, поделом ему :)

annamarso, но скажите пожалуйста, чем Вам хрущовки неугодили? там какбы и планировки поприличней, и комуникации во внутренние стены попрятаны :(

но 50 паркомест на 180 квартир?

в Ясногородке?

 

Почему 50 ?) паркомест .

 

Такие проекты выбрал владелец земли . Я считайте просто организовываю сбыт ):beer:

Посилання на коментар
Поділитися на інших сайтах

Почему 50 ?) паркомест .

так я же и спросил, почему 50, нормально былобы штук 200. иначе затопчут ваши газоны.

да лано, давайте перейдем в конструктивное русло, дома полагаю без газа, как отапливать будем, электрокотлы?

на фотографии построенного дома, я один не вижу водоотвода с балкона? бассейн?

Посилання на коментар
Поділитися на інших сайтах

так я же и спросил, почему 50, нормально былобы штук 200. иначе затопчут ваши газоны.

да лано, давайте перейдем в конструктивное русло, дома полагаю без газа, как отапливать будем, электрокотлы?

на фотографии построенного дома, я один не вижу водоотвода с балкона? бассейн?

 

:)

там есть место для парковок - 17 га все же.

отопление - тепловые насосы

водоотвод есть. просто фото разного этапа строительства

ну и плюс... за годы строительства.. через парум месяцев после вселения все балконы превращаются в лоджии.

Посилання на коментар
Поділитися на інших сайтах

Гість
Ця тема закрита для публікації повідомлень.
×
×
  • Створити...