Перейти до публікації
Пошук в
  • Додатково...
Шукати результати, які містять...
Шукати результати в...

Запрос просчета по лестнице

yaroslav1624737697

Рекомендовані повідомлення

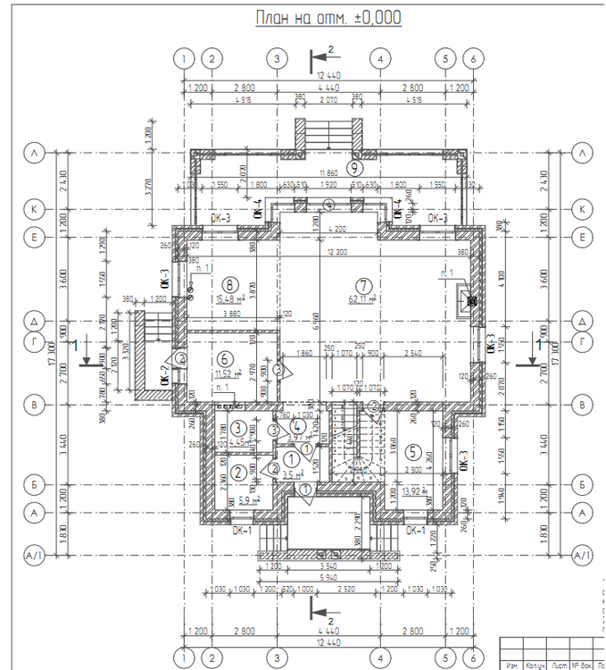
Нужно неспешно изготовить удобную бетонную лестницу. Подробности во вложении. Важен бюджет.

15-1.thumb.jpg.560c105312288207744095a65cba3ea6.jpg

1069169790_.thumb.png.18b5c909bd7381c6e3aa3e1acfd15c0f.png

Посилання на коментар
Поділитися на інших сайтах

Створіть акаунт або увійдіть у нього для коментування

Ви маєте бути користувачем, щоб залишити коментар

Створити акаунт

Зареєструйтеся для отримання акаунта. Це просто!

Зареєструвати акаунт

Увійти

Вже зареєстровані? Увійдіть тут.

Увійти зараз
×
×
  • Створити...