Перейти до публікації
Пошук в
  • Додатково...
Шукати результати, які містять...
Шукати результати в...

Нужен монтаж СО +водопровод и материалы

Oleg8510

Рекомендовані повідомлення

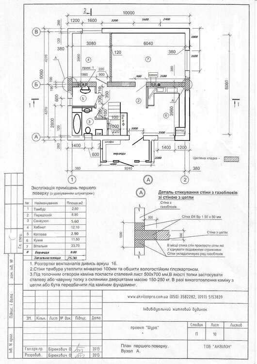
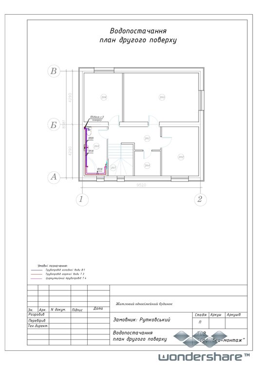
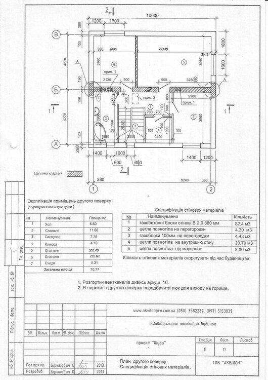
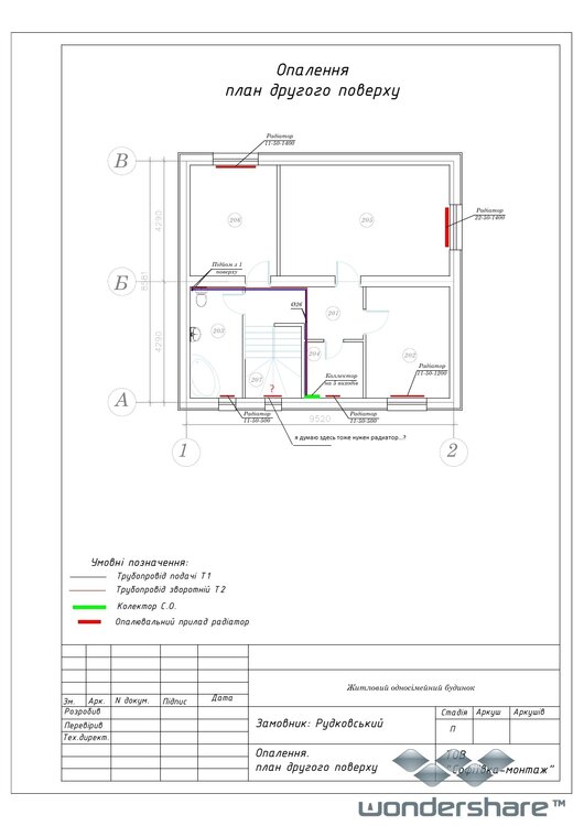
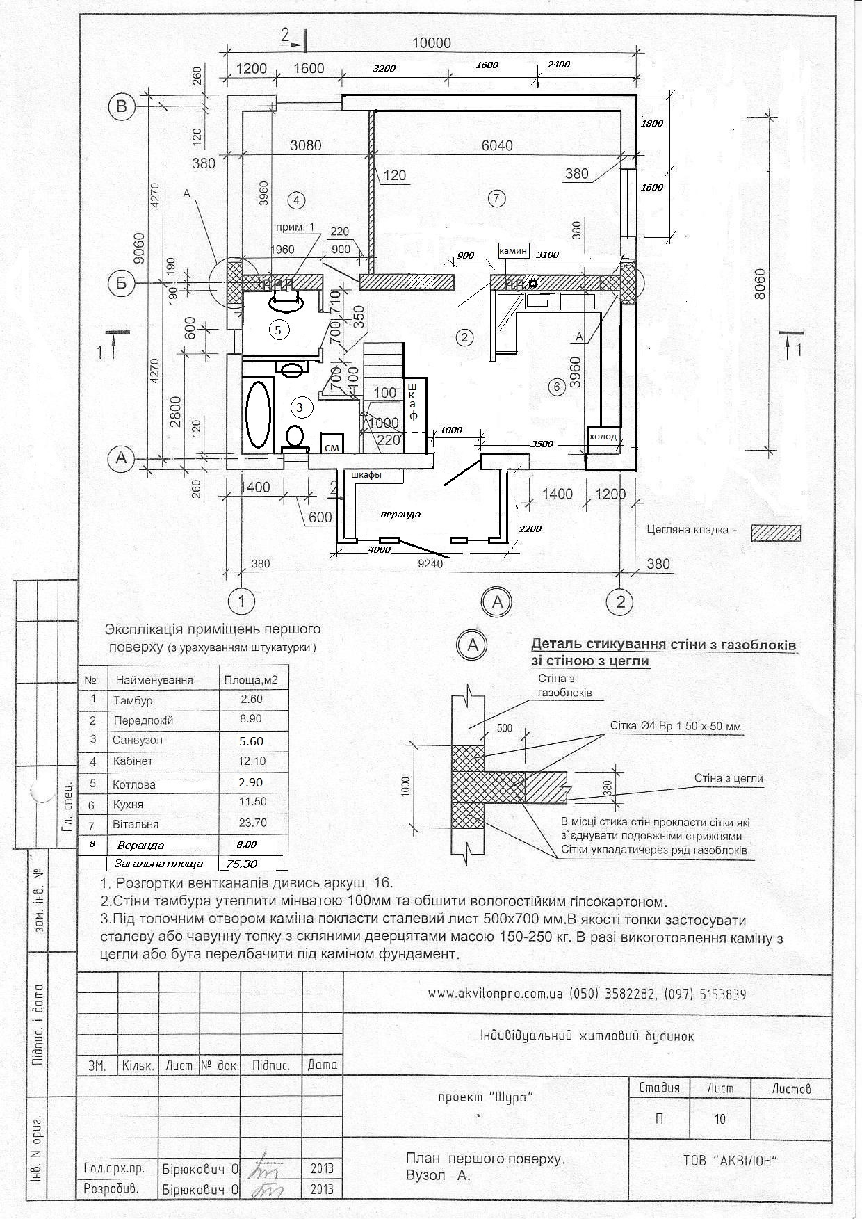
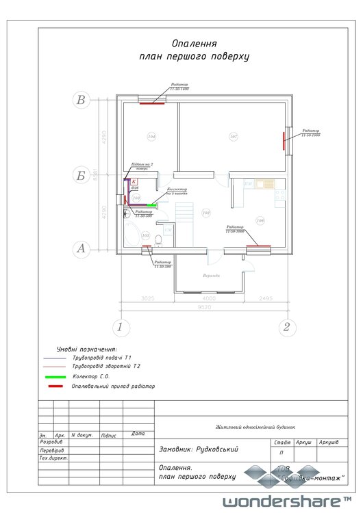
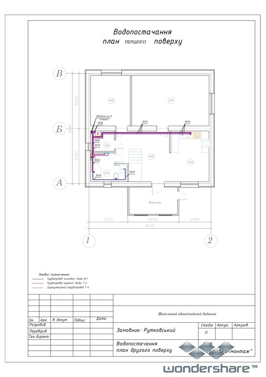
Дом в с.Гора Бориспольского р-на два этажа,148м2,стены газблок аэрок 400мм,плотность 400,утепление 50мм вата,второй этаж утепление 250мм,первый этаж тёплые полы везде кроме комнаты №4,второй этаж тёплый пол в санузле.

Предварительные просчёты сделаны,канализация сделана,жду предложений...схемы прилагаю.

1758256405_1--.thumb.JPG.4cd1a9758a3a1dbf9ed0199f147ce9e6.JPG

355922361_2-.thumb.JPG.b7cb3be0cf811e617e92ee9766124213.JPG

134617651_2_page_1.thumb.jpg.86320bb33476d5454871138e7f248cf0.jpg

838654072_-1_page_1(2).thumb.jpg.d88728bba5de33dbd80180ce34c2a64d.jpg

100026820_-1_page_1.thumb.jpg.3e0555808879d95b35bc4e12293e15aa.jpg

1383411201_-2_page_1.thumb.jpg.1925842bbe24a4dedbc367698be22a75.jpg

1484317258_-1_page_1.thumb.jpg.a2aed3bc6be66991315b20ab83291c1c.jpg

1246897641_-2_page_1.thumb.jpg.5af3c67d751eef9b451675d83eb209a7.jpg

  • Лайк 1
Посилання на коментар
Поділитися на інших сайтах

Створіть акаунт або увійдіть у нього для коментування

Ви маєте бути користувачем, щоб залишити коментар

Створити акаунт

Зареєструйтеся для отримання акаунта. Це просто!

Зареєструвати акаунт

Увійти

Вже зареєстровані? Увійдіть тут.

Увійти зараз
×
×
  • Створити...