Перейти до публікації
Пошук в
  • Додатково...
Шукати результати, які містять...
Шукати результати в...

Замена электропроводки, дом 100 м2 (до Нового года)

dday

Рекомендовані повідомлення

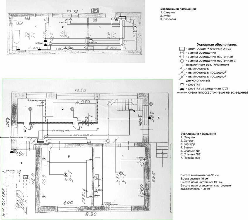
Необходимо выполнить первый этап электромонтажных работ:

штробы, прокладку кабеля, соединение в коммутационных коробках и монтаж щитка (2 шт.).

Без монтажа выключателей, розеток (без установки подрозетников) и светильников - только вывести провод в указанных местах.

 

Объект: дом 100 м2, 1980 год постройки, два этажа; стены: первый этаж бетон, второй силикатный кирпич, перекрытие бетонная плита. Вышгородский р-н.

 

Работы надо сделать в период 22-30 декабря.

Требования к исполнению:

- Монтаж соединительных коробок: никаких зачисток изоляции "ножиком" только нормальным инструментом

- не приемлю скруток

- кабель ВВГнг Одескабель

- штробы штроборезом с пылесосом

 

Начальный вариант схемы электромонтажа во вложении (могут вноситься некоторые изменения)

visio.thumb.jpg.44e39867f87a2b6e810bb375f702b197.jpg

Посилання на коментар
Поділитися на інших сайтах

Створіть акаунт або увійдіть у нього для коментування

Ви маєте бути користувачем, щоб залишити коментар

Створити акаунт

Зареєструйтеся для отримання акаунта. Це просто!

Зареєструвати акаунт

Увійти

Вже зареєстровані? Увійдіть тут.

Увійти зараз
×
×
  • Створити...