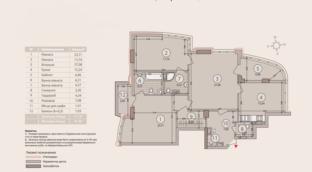
Любовь Опубліковано: 21 грудня 2013 Поділитись Опубліковано: 21 грудня 2013 Не могу сообразить как лучше перепланировать такую квартиру ,чтобы иметь 3 полноценные спальни ? Мудрые головы подскажите пожалуйста ) Посилання на коментар Поділитися на інших сайтах More sharing options...
Фрея Опубліковано: 21 грудня 2013 Поділитись Опубліковано: 21 грудня 2013 Я бы изменила комнату №1, преобразовав ее в спальню. Отделила бы ее от кухни стеной параллельной балкону, вход сделала бы дальше по стене из коридора, а все стены из коридора в кухню и кусок стены, который останется от комнаты - снесла. Это минимально, чтобы все не перестраивать. Правда, получится, что в этой спальне не будет личного санузла....Но раньше как-то жили, даже в 3-х комнатной квартире с одним санузлом посередине коридора, а здесь на всех хватит, только выхода из спальни не будет))) Или 11 - это не балкон? 1 Посилання на коментар Поділитися на інших сайтах More sharing options...
Kysil Опубліковано: 21 грудня 2013 Поділитись Опубліковано: 21 грудня 2013 Не могу сообразить как лучше перепланировать такую квартиру ,чтобы иметь 3 полноценные спальни ? Повноцінна спальня повинна мати вихід до ванної кімнати. У вас обидві ванні кімнати приватні. Теоретично можна було б обрізати спальню №3, щоб вхід у ванну №6 був загальним, відгородити вітальню від кухні і перетворити її на спальню. Але в такому разі у вас не буде вітальні. Різати вітальню на шматки не бачу сенсу: не буде ні нормальної спальні, ні нормальної вітальні. Є тільки один реальний компроміс: а) обрізати спальню №3, щоб вхід у ванну №6 був загальним; б) обладнати вітальню з прицілом можливого використання її як спальні. До речі, у такому разі туалет №7 можна демонтувати, а на його площі розмістити пральню. 1 Посилання на коментар Поділитися на інших сайтах More sharing options...
Любовь Опубліковано: 21 грудня 2013 Автор Поділитись Опубліковано: 21 грудня 2013 Я бы изменила комнату №1, преобразовав ее в спальню. Отделила бы ее от кухни стеной параллельной балкону, вход сделала бы дальше по стене из коридора, а все стены из коридора в кухню и кусок стены, который останется от комнаты - снесла. Это минимально, чтобы все не перестраивать. Правда, получится, что в этой спальне не будет личного санузла....Но раньше как-то жили, даже в 3-х комнатной квартире с одним санузлом посередине коридора, а здесь на всех хватит, только выхода из спальни не будет))) Или 11 - это не балкон? 11-ЭТО балкон , одну спальню можно сделать и без общего санузла или общий для детей , три спальни -это одна для родителей и две для детей Посилання на коментар Поділитися на інших сайтах More sharing options...
Любовь Опубліковано: 21 грудня 2013 Автор Поділитись Опубліковано: 21 грудня 2013 мне он кажется проще для перепланировки ? Вариант 3 -это основной ,а вариант 4 -это уже с перепланировкой Посилання на коментар Поділитися на інших сайтах More sharing options...
Kysil Опубліковано: 22 грудня 2013 Поділитись Опубліковано: 22 грудня 2013 мне он кажется проще для перепланировки ? Вариант 3 -это основной ,а вариант 4 -это уже с перепланировкой Тут у вас виходить кімната площею менше 8 кв. м (якщо рахувати без балкона) і шириною менше 2 м... Ну, не знаю. Простіше зробити спальню замість кабінета №5, там хоч світла багато, не буде клаустрофобійного ефекту. Односпальне ліжко, маленька шафка, столик зі стільцем - нормально розміщуються. В такому разі не треба нічого міняти із санвузлами: №1 - майстер-спальня, №2 - спальня для старшої дитини, №5 - спальня для молодшої дитини. Але! Раджу звернути увагу на вітальню, яка у цьому проекті, м'яко кажучи - великий коридор, а не місце сімейного затишку. Я так зрозумів, ви тільки приміряєтесь до купівлі. Є інші трикімнатні проекти з цієї ж "опери"? Посилання на коментар Поділитися на інших сайтах More sharing options...
Любовь Опубліковано: 22 грудня 2013 Автор Поділитись Опубліковано: 22 грудня 2013 Тут у вас виходить кімната площею менше 8 кв. м (якщо рахувати без балкона) і шириною менше 2 м... Ну, не знаю. Простіше зробити спальню замість кабінета №5, там хоч світла багато, не буде клаустрофобійного ефекту. Односпальне ліжко, маленька шафка, столик зі стільцем - нормально розміщуються. В такому разі не треба нічого міняти із санвузлами: №1 - майстер-спальня, №2 - спальня для старшої дитини, №5 - спальня для молодшої дитини. Але! Раджу звернути увагу на вітальню, яка у цьому проекті, м'яко кажучи - великий коридор, а не місце сімейного затишку. Я так зрозумів, ви тільки приміряєтесь до купівлі. Є інші трикімнатні проекти з цієї ж "опери"? №5 -це фактично балкон і він ну дуже маленький . Інший варіант є тільки в першому пості ,але мені він виглядає ще складнішим для перепланування ( Чи не так ? Посилання на коментар Поділитися на інших сайтах More sharing options...
Kysil Опубліковано: 22 грудня 2013 Поділитись Опубліковано: 22 грудня 2013 №5 -це фактично балкон і він ну дуже маленький . Інший варіант є тільки в першому пості ,але мені він виглядає ще складнішим для перепланування ( Чи не так ? Оба хуже, як казав товариш Сталін. :D В першому варіанті принаймні є ізольована вітальня-студіо, яка може бути ізольованою спальнею. В другому варіанті вітальня є прохідною в усі боки і для сну категорично не придатна. Так, лоджія маленька, але вона в якості кімнати все ж веселіша за вузький тонель з балконом. А загалом це добротні сучасні проекти, які просто НЕ розраховані на перепланування. Можливо, є сенс пошукати чотирикімнатні приблизно за ту ж вартість. ;) Посилання на коментар Поділитися на інших сайтах More sharing options...
Любовь Опубліковано: 22 грудня 2013 Автор Поділитись Опубліковано: 22 грудня 2013 Оба хуже, як казав товариш Сталін. :D В першому варіанті принаймні є ізольована вітальня-студіо, яка може бути ізольованою спальнею. В другому варіанті вітальня є прохідною в усі боки і для сну категорично не придатна. Так, лоджія маленька, але вона в якості кімнати все ж веселіша за вузький тонель з балконом. А загалом це добротні сучасні проекти, які просто НЕ розраховані на перепланування. Можливо, є сенс пошукати чотирикімнатні приблизно за ту ж вартість. ;) На жаль наразі це є єдині варіанти які нам підходять , або точніше в будинку ,який нам підходить за всіма параметрами ,бо квартира це не тільки планування ,але і місцерозташування будинку і якість буд-ва і тд і тп Посилання на коментар Поділитися на інших сайтах More sharing options...
Kysil Опубліковано: 22 грудня 2013 Поділитись Опубліковано: 22 грудня 2013 На жаль наразі це є єдині варіанти які нам підходять , або точніше в будинку ,який нам підходить за всіма параметрами ,бо квартира це не тільки планування ,але і місцерозташування будинку і якість буд-ва і тд і тп Зрозумів. Якщо питання стоїть так, я б радив варіант І. Батьки забирають собі спальню №2 із санвузлом №5. Двері до спальні №3 - між стіною та з/б опорою, вивільняючи загальний вхід до санвузла №6. Хтось із дітей спатиме у вітальні, хтось матиме власну кімнату. Якщо добре продумаєте дизайн студіо, та ще й поставите туди шкіряний диван з отоманкою, та ще й віддасте цій дитині балкон у приватне користування - навряд чи вона буде ображеною. ;) Я сам виріс у вітальні 18 кв. м Якби вітальня мала більше скла (з боку кухні) - можна було б відгородити куток з балконом як окрему спальню (лінією, паралельною лінії поділу вітальні/кухні). Але тут як не крути, як не ріж - замість вітальні залишається темний апендикс, абсолютно беззмістовний і нефункціональний. 1 Посилання на коментар Поділитися на інших сайтах More sharing options...
AlexMart Опубліковано: 13 січня 2014 Поділитись Опубліковано: 13 січня 2014 Не могу сообразить как лучше перепланировать такую квартиру ,чтобы иметь 3 полноценные спальни ? Мудрые головы подскажите пожалуйста ) Любовь, Есть чертеж в ArchiCAD, мы Вам сможем переделать и Вы определитесь как лучше. На пальцах не удобно вообразить.))) Чертеж на почту Mart200812@yandex.ru Посилання на коментар Поділитися на інших сайтах More sharing options...
Рекомендовані повідомлення
Створіть акаунт або увійдіть у нього для коментування
Ви маєте бути користувачем, щоб залишити коментар
Створити акаунт
Зареєструйтеся для отримання акаунта. Це просто!
Зареєструвати акаунтУвійти
Вже зареєстровані? Увійдіть тут.
Увійти зараз