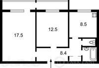
shu-shu Опубліковано: 21 грудня 2013 Поділитись Опубліковано: 21 грудня 2013 (змінено) Продам 2-х комнатную квартиру 51/31/8,3 кв.м., 1/14-эт. дома в Голосеевском районе. 50,6 общая площадь без балкона комнаты 17,2 и 12,3 кв.м. кухня 8,3, холл, лодж., есть погреб, стеклопакеты, интернет, балкон на две комнаты застеклен 1,2х7 м, бронедверь, домофон, консьерж, рядом "Магелан", рынок, метро - 10мин (Васильковская), 1 мин (Теремки), садик, школа, рядом лесопосадка. Своя. 85 тыс. у.е. Змінено 21 грудня 2013 користувачем shu-shu Посилання на коментар Поділитися на інших сайтах More sharing options...
orbital Опубліковано: 22 грудня 2013 Поділитись Опубліковано: 22 грудня 2013 Улица и номер дома? Посилання на коментар Поділитися на інших сайтах More sharing options...
Иствуд Опубліковано: 22 грудня 2013 Поділитись Опубліковано: 22 грудня 2013 Привет соседка, вот уж не ожидал встретить соседа форумчанина Посилання на коментар Поділитися на інших сайтах More sharing options...
orbital Опубліковано: 22 грудня 2013 Поділитись Опубліковано: 22 грудня 2013 По поводу соседки это надеюсь не мне? 2 Посилання на коментар Поділитися на інших сайтах More sharing options...
Иствуд Опубліковано: 22 грудня 2013 Поділитись Опубліковано: 22 грудня 2013 это я к продавцу Посилання на коментар Поділитися на інших сайтах More sharing options...
shu-shu Опубліковано: 22 грудня 2013 Автор Поділитись Опубліковано: 22 грудня 2013 глушкова 55 проспект Добавлено через 18 минут Иствуд, Посилання на коментар Поділитися на інших сайтах More sharing options...
shu-shu Опубліковано: 4 червня 2014 Автор Поділитись Опубліковано: 4 червня 2014 81 тысяча уже, даже не знаю по какому курсу. Хотим практически обменяться с другими людьми. Посилання на коментар Поділитися на інших сайтах More sharing options...
Specu Опубліковано: 5 червня 2014 Поділитись Опубліковано: 5 червня 2014 Дык меняйтесь без продаж, если обмен прямой. Продать без скидки 15% от вашей цены сейчас нереально. Посилання на коментар Поділитися на інших сайтах More sharing options...
shu-shu Опубліковано: 5 червня 2014 Автор Поділитись Опубліковано: 5 червня 2014 Не прямой, к сожалению. Хотим покупать взамен. В подходящих вариантах хотят деньги. Сейчас все так с этими ценами запутались. Мы б и рады хоть на 20%, интересует переезд только, но , мониторя цены на сайтах по недвижимости, смотрю, что все держат как и год назад. Как в реале , не знаю. Посилання на коментар Поділитися на інших сайтах More sharing options...
Татьяна5 Опубліковано: 5 червня 2014 Поділитись Опубліковано: 5 червня 2014 Не прямой, к сожалению. Хотим покупать взамен. В подходящих вариантах хотят деньги. Сейчас все так с этими ценами запутались. Мы б и рады хоть на 20%, интересует переезд только, но , мониторя цены на сайтах по недвижимости, смотрю, что все держат как и год назад. Как в реале , не знаю. в реале Теремки в Пентагоне так и стоят где-то, но минусовать придется из-за первого этажа, увы Посилання на коментар Поділитися на інших сайтах More sharing options...
shu-shu Опубліковано: 5 червня 2014 Автор Поділитись Опубліковано: 5 червня 2014 Пока что- то вообще глухо, несмотря на то, что мы доступны к общению по цене, с рынком совсем плохо наверное. Интересно долго еще такая нестабильность будет продолжаться? Посилання на коментар Поділитися на інших сайтах More sharing options...
papirinfo Опубліковано: 5 червня 2014 Поділитись Опубліковано: 5 червня 2014 пока как мимимум что либо одно не стабилизируется.. Посилання на коментар Поділитися на інших сайтах More sharing options...
shu-shu Опубліковано: 7 вересня 2014 Автор Поділитись Опубліковано: 7 вересня 2014 А мы снизили уже давно цену. 75000 уе Посилання на коментар Поділитися на інших сайтах More sharing options...
shu-shu Опубліковано: 20 вересня 2014 Автор Поділитись Опубліковано: 20 вересня 2014 Рассматриваем обмен на двушку в Киеве в другом районе, или на дом 10-20 км от Киева. Посилання на коментар Поділитися на інших сайтах More sharing options...
Laminart Опубліковано: 20 вересня 2014 Поділитись Опубліковано: 20 вересня 2014 Рассматриваем обмен на двушку в Киеве в другом районе, или на дом 10-20 км от Киева. Есть дом в новых безрадичах.Новострой. Тесть строил.Правда нужно сделать косм.ремонт Посилання на коментар Поділитися на інших сайтах More sharing options...
shu-shu Опубліковано: 20 вересня 2014 Автор Поділитись Опубліковано: 20 вересня 2014 Можно в личку подробности? Из чего дом, инфраструктура, т.д. Посилання на коментар Поділитися на інших сайтах More sharing options...
shu-shu Опубліковано: 4 жовтня 2014 Автор Поділитись Опубліковано: 4 жовтня 2014 Продажа или обмен на квартиру, дом. Посилання на коментар Поділитися на інших сайтах More sharing options...
Laminart Опубліковано: 5 жовтня 2014 Поділитись Опубліковано: 5 жовтня 2014 www.stroimdom.com.ua/forum/showthread.php?t=136790 тут моя тема про дом. Посилання на коментар Поділитися на інших сайтах More sharing options...
shu-shu Опубліковано: 5 жовтня 2014 Автор Поділитись Опубліковано: 5 жовтня 2014 Спасибо, уже находила по Вашему профилю. Дом хороший, но не располагаем такой разницей в стоимости. Ищем что- то равноценное, меньшее по площади возможно. Посилання на коментар Поділитися на інших сайтах More sharing options...
shu-shu Опубліковано: 2 листопада 2014 Автор Поділитись Опубліковано: 2 листопада 2014 Все еще в продаже. Посилання на коментар Поділитися на інших сайтах More sharing options...
shu-shu Опубліковано: 12 лютого 2015 Автор Поділитись Опубліковано: 12 лютого 2015 А Что сейчас с ценами на Теремках 1 на квартиры? Уже с этими курсами доллара запутались совсем. 65 тыщ? Посилання на коментар Поділитися на інших сайтах More sharing options...
ребята Опубліковано: 18 лютого 2015 Поділитись Опубліковано: 18 лютого 2015 А Что сейчас с ценами на Теремках 1 на квартиры? Уже с этими курсами доллара запутались совсем. 65 тыщ? имхо квартира переоценена процентов на 20. при чем что год назад, что сегодня по большому счету, квартира неликвид. первые этажи всегда шли с дисконтом, а тем более сейчас, когда количество покупателей уменьшилось в разы. к тому же, по сообщениям АН, именно Голосеевский район значительнее всего снизился в цене, т.к. популярность его окраин в последние несколько лет оказалась завышенной насколько я располагаю информацией, сейчас за 50 тысяч продаются однушки в хорошем состоянии в Шевченковском районе (на Черновола), Соломенском (Урицкого), Голосеевском (Демеевка). 65 тысяч на сегодня для двушки на Теремках ну очень хорошая цена. ну разве что она с ремонтом, мебелью, блек-джеком и другими элементами сладкой жизни 1 Посилання на коментар Поділитися на інших сайтах More sharing options...
shu-shu Опубліковано: 1 липня 2015 Автор Поділитись Опубліковано: 1 липня 2015 53000 тысячи Посилання на коментар Поділитися на інших сайтах More sharing options...
Fl.Dutchman Опубліковано: 1 липня 2015 Поділитись Опубліковано: 1 липня 2015 Шо-ж ви такі полохливі? Зараз скажуть, шо забагато). Ніхто ще тут квартири не продав. Продавайте на спеціалізованих сайтайх. А тут -спілкування( Об'яві - АП, Краще за Теремки в Києві району не знайти) P.S. А хочете, то міняймось на мій маєток у Путрівці ( що у підпису), доплати не треба) 2 Посилання на коментар Поділитися на інших сайтах More sharing options...
Рекомендовані повідомлення
Створіть акаунт або увійдіть у нього для коментування
Ви маєте бути користувачем, щоб залишити коментар
Створити акаунт
Зареєструйтеся для отримання акаунта. Це просто!
Зареєструвати акаунтУвійти
Вже зареєстровані? Увійдіть тут.
Увійти зараз