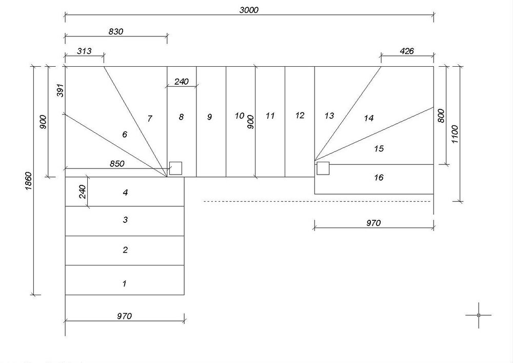
ENB Опубліковано: 8 січня 2014 Поділитись Опубліковано: 8 січня 2014 Добрый день. Предложите дерево для обшивки металлокаркаса лестницы, размеры лестницы прилагаются, фото тоже. Спасибо. Посилання на коментар Поділитися на інших сайтах More sharing options...
Misha_100 Опубліковано: 9 січня 2014 Поділитись Опубліковано: 9 січня 2014 У нас дома похожая лестница. Мы просто формально в эпицентре купили клееные буковые ступени и подступеньки и зашили. Обрезали сколько нужно и Вуаля лестница огонь. хотите могу фото сделать Посилання на коментар Поділитися на інших сайтах More sharing options...
ENB Опубліковано: 10 січня 2014 Автор Поділитись Опубліковано: 10 січня 2014 У нас дома похожая лестница. Мы просто формально в эпицентре купили клееные буковые ступени и подступеньки и зашили. Обрезали сколько нужно и Вуаля лестница огонь. хотите могу фото сделать Да. Интересно посмотреть. Посилання на коментар Поділитися на інших сайтах More sharing options...
ENB Опубліковано: 28 квітня 2014 Автор Поділитись Опубліковано: 28 квітня 2014 Предложите дерево для обшивки металлокаркаса лестницы Посилання на коментар Поділитися на інших сайтах More sharing options...
Рекомендовані повідомлення
Створіть акаунт або увійдіть у нього для коментування
Ви маєте бути користувачем, щоб залишити коментар
Створити акаунт
Зареєструйтеся для отримання акаунта. Це просто!
Зареєструвати акаунтУвійти
Вже зареєстровані? Увійдіть тут.
Увійти зараз