Перейти до публікації
Пошук в
  • Додатково...
Шукати результати, які містять...
Шукати результати в...

Нужен козырек над входной дверью в дом

namorvai

Рекомендовані повідомлення

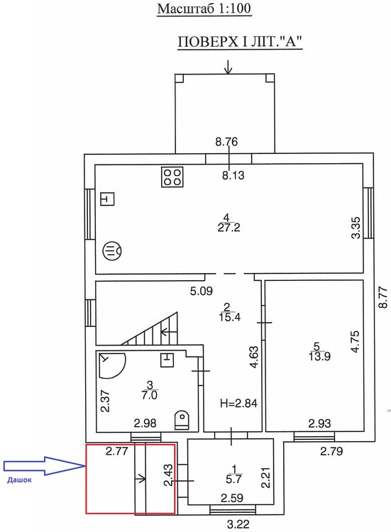
Нужен козырек над входной дверью в дом.

 

Каркас металический, сверху поликарбонат. Крепление в стены из газобетона.

 

Жду расчета стоимости самого козырька, а также стоимости установки. Место установки: г. Борисполь.

 

Фото с размерами и реальным видом дома во вложении.

Фото дома еще старое, там уже все выложено плиткой, земля - тротуарной, ступеньки обычной плиткой.

Dasok.thumb.jpg.9311c18d717ac669c13b2f2dde4e6472.jpg

1751587589_2013-06-2416_11_23.thumb.jpg.9f770442a4df6ad6e011cb0124d0ff80.jpg

Посилання на коментар
Поділитися на інших сайтах

Здравствуйте! Для просчета стоимости Вашего козырька неплохо было бы видеть реальные фото, привязочные размеры (для определения размеров козырька), желаемую форму козырька. Мой тел.: 097-953-25-84
Посилання на коментар
Поділитися на інших сайтах

  • 4 тижні потому...

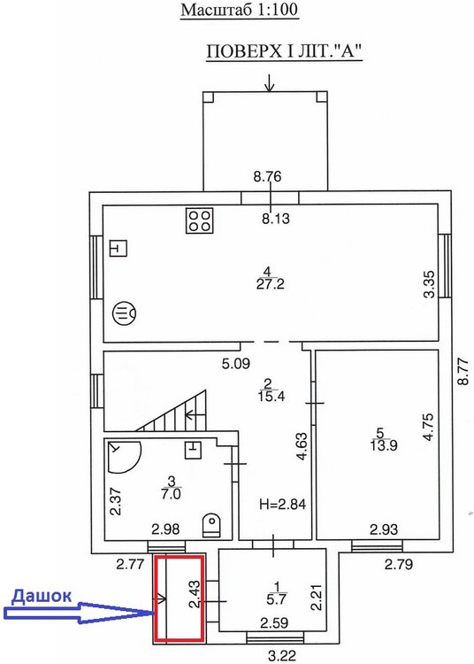
Нужен козырек над входной дверью в дом.

 

Каркас металлический, сверху поликарбонат. Крепление в стены из газобетона, одна опорная стойка.

Размер сторон крепления к стенам, м.: 2.77 х 2.43

 

Жду расчета стоимости материалов, изготовления самого козырька, а также стоимости установки и возможных дополнительных работ. Место установки: г. Борисполь.

 

Фото с размерами и реальным видом дома во вложении.

4.JPG.c52e14da8f71529707bd61bbf5deaadf.JPG

1453318982_2014-01-2616_02_34.thumb.jpg.f044283cc6a9e9c322367fd5554914a6.jpg

1506194638_2014-01-2616_03_04.thumb.jpg.8f9b555aba401cb8c65e008791e42fd8.jpg

1383810891_2014-01-2616_03_16.thumb.jpg.444941539449be2367656c0d233dcf9d.jpg

Dasok.thumb.jpg.d6788c05c8005461e68cfd047c7fdef0.jpg

Посилання на коментар
Поділитися на інших сайтах

  • 3 місяці потому...

Если вам еще актуально, посетите наш сайт для ознакомления с нашими работами arsenalstroy.com.ua/navesy_kozyrki/

 

Добавлено через 15 минут

Согласно ваших размеров сумма 8300 грн 16мм (чтобы градом не побило) поликарбонат

Посилання на коментар
Поділитися на інших сайтах

Створіть акаунт або увійдіть у нього для коментування

Ви маєте бути користувачем, щоб залишити коментар

Створити акаунт

Зареєструйтеся для отримання акаунта. Це просто!

Зареєструвати акаунт

Увійти

Вже зареєстровані? Увійдіть тут.

Увійти зараз
×
×
  • Створити...