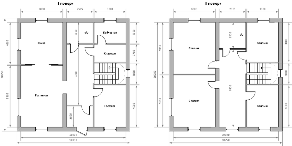
Alena_555 Опубліковано: 14 січня 2014 Поділитись Опубліковано: 14 січня 2014 (змінено) нужен архитектор, который: - разработает проект дома и реализует проектную документацию (АР + КС); - разработает ген.план участка; - выполнит привязку дома к участку для проведения геологии; - обеспечит архитектурный надзор при строительстве (вынос в натуру, топография выполнена); есть участок 12 соток, правильной прямоугольной формы, размером 30м х 40м; на нем планируется размещение: - жилой дом (11.2м х 11.2м); - гараж (6.75м х 6.75м) - беседка (предположительно 7м х 5м) - скважина на воду; - локальное очистное сооружение + дренажный колодец; планируется строительство 2х этажного дома из газобетона (Aeroc 375мм), квадрат с внутренним размером 10м х 10м; цоколь или подвал отсутствуют, фундамент приподнят над землей на 30см(?); крыша простая, 4х скатная, предполагается битумная; перекрытия этажей: плита или монолитные (терива?) - не определился; сейчас помещения (бойлерная, с/у, кухня) размещены так, чтобы канализация и водопровод были фактически на одной линии (северная сторона 1го этажа); в доме планируется как минимум один дымоход из бойлерной, необходимо предусмотреть вент.каналы в обоих с/у и на кухне; камин в гостинной под вопросом; высота 1-го этажа 3м, "дневная зона", в ней расположены: - кухня; - гостинная; - с/у; - бойлерная/топочная; - кладовая; - гостевая комната; - коридор, лестница; высота 2-го этажа 2.8м или 2.75, "приватная зона" в ней расположены: - 4 комнаты; - с/у; - коридор, лестница; внешняя отделка предполагает 2 варианта: - утепление "минватой" + штукатурка; - минвата (50мм) + воздушная прослойка (30мм) + кладка облицовочный кирпич (120мм) на данный момент хочу найти исполнителя, понять сроки и стоимость работ по проектированию плана дома (АР+КС) и ген.плана участка, а так же выполнение привязки дома к участку для последующего проведения геологии участка; Змінено 14 січня 2014 користувачем Alena_555 добавлены исходные данные Посилання на коментар Поділитися на інших сайтах More sharing options...
Alena_555 Опубліковано: 4 лютого 2014 Автор Поділитись Опубліковано: 4 лютого 2014 Благодарю всех кто откликнулся, архитектор найден. Посилання на коментар Поділитися на інших сайтах More sharing options...
armis Опубліковано: 5 лютого 2014 Поділитись Опубліковано: 5 лютого 2014 Alena 555, тему закройте Посилання на коментар Поділитися на інших сайтах More sharing options...
Alena_555 Опубліковано: 24 квітня 2014 Автор Поділитись Опубліковано: 24 квітня 2014 Хотела бы выразить благодарность за разработку проекта дома и гаража архитектору Антону Тиханскому "Галпроект" galproekt . Все было выполнено быстро, пожелания учтены. То что мы в разных городах неудобства не принесло. Общение по телефону и e-mail, всегда ответит, объяснит, если не понятно, еще раз объяснит . Были предложены несколько альтернативных решений планировки этажей. Кроме того, вначале был сделан Эскизный проект, чертежи которого были использованы для оформления стройпаспорта, так что, когда закончили с проектом, мы уже получили стройпаспорт. Осталась довольна, всем рекомендую. 1 Посилання на коментар Поділитися на інших сайтах More sharing options...
schweps Опубліковано: 26 квітня 2014 Поділитись Опубліковано: 26 квітня 2014 проектирование домов - наш сайт Профессионально выполним по вашему техзаданию. А так же при желании построим по проекту под ключ. Посилання на коментар Поділитися на інших сайтах More sharing options...
Alena_555 Опубліковано: 27 серпня 2014 Автор Поділитись Опубліковано: 27 серпня 2014 задуманные оба объекта воплотились в жизнь; еще раз благодарю архитектора нашего проекта - Тиханского Антона galproekt за грамотную реализацию проектов, составление документации, оперативную поддержку и консультации в процессе строительства 1 Посилання на коментар Поділитися на інших сайтах More sharing options...
Рекомендовані повідомлення
Створіть акаунт або увійдіть у нього для коментування
Ви маєте бути користувачем, щоб залишити коментар
Створити акаунт
Зареєструйтеся для отримання акаунта. Це просто!
Зареєструвати акаунтУвійти
Вже зареєстровані? Увійдіть тут.
Увійти зараз