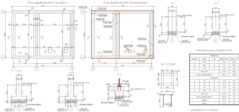
Владимир Донецк Опубліковано: 16 січня 2014 Поділитись Опубліковано: 16 січня 2014 Имеем отсутствие геологии и геодезии. Имеем проект двухэтажного дома из газоблока. Имеем чертеж фундамента у которого при глубине 1200 мм имеем подушку фундамента армированную арматурой диаметром 8 мм а сам фундамент по своей высоте не армированный в принципе. Интересует мнение профессионалов Форума. Не на сложном грунте не имея близко грунтовых вод. Нужен ли такой фундамент или это немного не профессиональный фундамент. Подушка фундамента имеет ширину 1 м высотой 20 см армирована, выше фундамент не имеет ни единой арматуры и имеет ширину 40 см. Проще говоря речь о монолитном фундаменте имеющего армированную подушку и не армированный фундамент-ленту фундамента. Правильно ли это в теории в принципе. Посилання на коментар Поділитися на інших сайтах More sharing options...
alexdev Опубліковано: 18 січня 2014 Поділитись Опубліковано: 18 січня 2014 Вот фото. Как по мне фундамент хороший и экономичный. Посилання на коментар Поділитися на інших сайтах More sharing options...
alexdev Опубліковано: 18 січня 2014 Поділитись Опубліковано: 18 січня 2014 Имеем отсутствие геологии и геодезии. Имеем проект двухэтажного дома из газоблока. Имеем чертеж фундамента у которого при глубине 1200 мм имеем подушку фундамента армированную арматурой диаметром 8 мм а сам фундамент по своей высоте не армированный в принципе. Интересует мнение профессионалов Форума. Не на сложном грунте не имея близко грунтовых вод. Нужен ли такой фундамент или это немного не профессиональный фундамент. Подушка фундамента имеет ширину 1 м высотой 20 см армирована, выше фундамент не имеет ни единой арматуры и имеет ширину 40 см. Проще говоря речь о монолитном фундаменте имеющего армированную подушку и не армированный фундамент-ленту фундамента. Правильно ли это в теории в принципе. Геология на основе скважины - глинистый песчаник грунт, плодородный слой земли 20-30 см. Геодезию померили вручную водяным уровнем перепад высот по углам постройки, после размещения на генплане. Армирование подушки фундамента 10 арматурой (несущая), вспомогательная поперечная арматура 8ка. Будет также армированный цоколь из бетона. Армироваться будет вверху. Тоже интересны мнения. Фундамент разработан конструктором. Посилання на коментар Поділитися на інших сайтах More sharing options...
Владимир Донецк Опубліковано: 19 січня 2014 Автор Поділитись Опубліковано: 19 січня 2014 Геология на основе скважины - глинистый песчаник грунт, плодородный слой земли 20-30 см. Геодезию померили вручную водяным уровнем перепад высот по углам постройки, после размещения на генплане. Армирование подушки фундамента 10 арматурой (несущая), вспомогательная поперечная арматура 8ка. Будет также армированный цоколь из бетона. Армироваться будет вверху. Тоже интересны мнения. Фундамент разработан конструктором. Устал я от вашего упорства. Вопрос. -100 мм это песчаная подушка -300 мм это подушка-фундамента -900 мм это сам фундамент. 300 мм бетонное основание фундамента причем армированное а 900 мм без армирования. Я вам уже неоднократно говорил. Что ленточный монолитный фундамент работает только тогда когда внутри данного фундамента находится пространственный арматурный каркас по всему периметру и высоте-ФУНДАМЕНТА. Повторюсь в последний раз и выйду из этой нечему не ведущей полемики. Вы выбрали проект, вы выбрали архитектора, вы тратите свои деньги, и у вас есть иллюзия-каких-то гарантий на что-то. Время их разрушит. Остается подождать. И на по следок. На фундамент в любом грунте воздействуют различные векторные силы. И отсутствие пространственного каркаса во всем периметре фундамента говорит только лишь о том что. Подошва-подушка которая армированная по сути своей живет своей жизнью а 900 мм самого ленточного фундамента живут своей жизнью. И это рациональный фундамент? Ну,ну. Есть различные грунты имеющие разную несущую способность. И ни кто не может запретить с имитировать искусственно несущую способность грунта и тем самым снизить затраты при строительстве без эксплуатируемого цокольного этажа а просто фундамента. Ну это бесполезно вам поскольку вы не слышите того что вам говорят. А ведь то что сейчас имеет толщину 400 мм на предоставленном чертеже раньше имело ширину 600 мм. И это по заверению архитектора был рациональный фундамент? Ну,ну. Посилання на коментар Поділитися на інших сайтах More sharing options...
alexdev Опубліковано: 19 січня 2014 Поділитись Опубліковано: 19 січня 2014 Тоже симпатизирует мне пространственный арматурный каркас по всему периметру и высоте-ФУНДАМЕНТА ломаю фундамент старого домика, где есть армирование - то очень тяжело ломать, а где без армирования сыпется как песок. Наверное стоит добавить, затраты только арматура, а на стоимость бетонирования не влияет. Уточню у архитектора. Посилання на коментар Поділитися на інших сайтах More sharing options...
Владимир Донецк Опубліковано: 19 січня 2014 Автор Поділитись Опубліковано: 19 січня 2014 Тоже симпатизирует мне пространственный арматурный каркас по всему периметру и высоте-ФУНДАМЕНТА ломаю фундамент старого домика, где есть армирование - то очень тяжело ломать, а где без армирования сыпется как песок. Наверное стоит добавить, затраты только арматура, а на стоимость бетонирования не влияет. Уточню у архитектора. Да какие там симпатии. Строительные нормы и правила по проектированию фундаментов. Посилання на коментар Поділитися на інших сайтах More sharing options...
alexdev Опубліковано: 19 січня 2014 Поділитись Опубліковано: 19 січня 2014 По крайней мере одно знаю, если хорошо заармировать потом будущие поколения будут долго ломать данный фундамент Вообщем если так то мне нужно в 3 раза больше арматуры не 300, а 900 кг. примерно - 18 000 грн вместо 6000 грн. в текущем варианте. Посилання на коментар Поділитися на інших сайтах More sharing options...
Владимир Донецк Опубліковано: 19 січня 2014 Автор Поділитись Опубліковано: 19 січня 2014 По крайней мере одно знаю, если хорошо заармировать потом будущие поколения будут долго ломать данный фундамент Вообщем если так то мне нужно в 3 раза больше арматуры не 300, а 900 кг. примерно - 18 000 грн вместо 6000 грн. в текущем варианте. Так если верить изложенному на чертеже. Армирование и на не на. Что ж вы Архитектору и Конструктору проекта не верите. Нехорошо. Посилання на коментар Поділитися на інших сайтах More sharing options...
alexdev Опубліковано: 19 січня 2014 Поділитись Опубліковано: 19 січня 2014 Я верю то что по его расчетам этого достаточно. Проконсультируюсь еще с несколькими конструкторами по этому поводу, чтобы все сомнения отбросить или дополнительно проармировать. Посилання на коментар Поділитися на інших сайтах More sharing options...
Владимир Донецк Опубліковано: 19 січня 2014 Автор Поділитись Опубліковано: 19 січня 2014 Откапываем грунт ниже глубины промерзания шириной 1 метр. Но из расчета, что ширина откапываемой траншеи это центр фундамента. Итак, откапываем траншеи. В виде трапеции, в которой основание это срез земли основание траншеи 1 метр ширина у среза грунта 1 метр 60 см. И начинаем заполнять крупным речным песком. Слоями толщиной 40 см с промежуточным слоем гранитного щебня такой же толщины фракцией 5-25 мм. Разбив высоту траншеи на 3-4 равные части, но обязательно, чтобы последним слоем был песок. Каждый слой обильно проливается водой и трамбуется. По окончании трамбования каждого слоя переходим к следующему слою. Заполняем до отметки 0. После чего собираем опалубку по уровню соблюдая горизонтальность 0. Вкладываем тепличный целлофан, вкладываем арматурный каркас, собранный из такого расчета, чтобы каркас по высоте не доходил 100 мм до отметки 0 фундамента и 100 мм не доставал до основания фундамента и 50 мм не доставал наружной и внутренней стенки опалубки. После выставления каркаса заливаем весь фундамент за один раз с применением вибратора до отсутствия усадки бетона. Заворачиваем остатки целлофана на ленту с двух сторон и поливаем фундамент неделю. Поддерживая фундамент во влажном состоянии неделю. После прошествии недели. Снимаем опалубку и раскладываем целлофан на грунт по внутренней и внешней стороне фундамента. На внешнюю сторону целлофана насыпам гранитный щебень фракцией 5-25 мм слоем 100-150 мм с уклоном от фундамента раскладываем арматурный каркас по всей получившейся плоскости. Ширина отмостки 600 мм лучше 1 000 мм. Бетонируем. Отмостка готова. Накрываем ее минимизируя испарения влаги. Не забываем поливать каждый день, тем самым поддерживаем отмостку во влажном состоянии неделю. После переходим к внутренней части фундамента. Заворачиваем внутренний целлофан на фундамент и засыпаем грунтом внутреннюю часть фундамента. Трамбуем. Выравниваем на отметку 0. после чего раскатываем рубероид по плоскости фундамента и начинаем кладку стен. Критика приветствуется. Добавлено через 59 секунд Я верю то что по его расчетам этого достаточно. Проконсультируюсь еще с несколькими конструкторами по этому поводу, чтобы все сомнения отбросить или дополнительно проармировать. Так непонятно что тогда обсуждаем 2 недели. Все же уже решено. 1 Посилання на коментар Поділитися на інших сайтах More sharing options...
alexdev Опубліковано: 19 січня 2014 Поділитись Опубліковано: 19 січня 2014 Критика приветствуется. Лучше наверное продублировать в раздел Фундаменты. Посилання на коментар Поділитися на інших сайтах More sharing options...
Владимир Донецк Опубліковано: 19 січня 2014 Автор Поділитись Опубліковано: 19 січня 2014 Лучше наверное продублировать в раздел Фундаменты. А выложено где в Кровле? Вы не обижайтесь но Вы не перестаете удивлять тема какая не поленитесь прочитайте. Посилання на коментар Поділитися на інших сайтах More sharing options...
alexdev Опубліковано: 19 січня 2014 Поділитись Опубліковано: 19 січня 2014 (змінено) А выложено где в Кровле? Вы не обижайтесь но Вы не перестаете удивлять тема какая не поленитесь прочитайте. Выложено в региональном разделе Донецк. Раздел фундаменты и бетон тут - www.stroimdom.com.ua/forum/forumdisplay.php?f=116 www.stroimdom.com.ua/forum/showthread.php?p=2681099#post2681099 вот я там тему создал туда перенес. Змінено 19 січня 2014 користувачем alexdev Посилання на коментар Поділитися на інших сайтах More sharing options...
Владимир Донецк Опубліковано: 19 січня 2014 Автор Поділитись Опубліковано: 19 січня 2014 Выложено в региональном разделе Донецк. Радел фундаменты и бетон тут - www.stroimdom.com.ua/forum/forumdisplay.php?f=116 Мы же своем регионе обсуждаем. Какое дело мне до фундаментов в Киеве или Червонограде, Львовской области? Посилання на коментар Поділитися на інших сайтах More sharing options...
Рекомендовані повідомлення
Створіть акаунт або увійдіть у нього для коментування
Ви маєте бути користувачем, щоб залишити коментар
Створити акаунт
Зареєструйтеся для отримання акаунта. Це просто!
Зареєструвати акаунтУвійти
Вже зареєстровані? Увійдіть тут.
Увійти зараз