Перейти до публікації
Пошук в
  • Додатково...
Шукати результати, які містять...
Шукати результати в...

Нужен проект по электрике в дом.

AMG72

Рекомендовані повідомлення

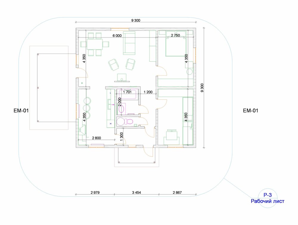
Дом площадью 87кв, 3 комнаты, одноэтажный, холодный чердак. Проект нужен не для разрешительных органов, а для меня лично чтобы я смог по нему закупить и смонтировать проводку в доме от ввода до каждой точки. Хоть от руки но подробно и понятно. И недорого:)

Предложения в личку.

1947218913_.thumb.jpg.e0e664cabe5dcad2a5c197d9b4e6fa59.jpg

Посилання на коментар
Поділитися на інших сайтах

Створіть акаунт або увійдіть у нього для коментування

Ви маєте бути користувачем, щоб залишити коментар

Створити акаунт

Зареєструйтеся для отримання акаунта. Це просто!

Зареєструвати акаунт

Увійти

Вже зареєстровані? Увійдіть тут.

Увійти зараз
×
×
  • Створити...