Перейти до публікації
Пошук в
  • Додатково...
Шукати результати, які містять...
Шукати результати в...

нужны рабочие чертежи

Katerina_

Рекомендовані повідомлення

Так как проект дома уже разработан в плане расстановки мебели и распланировано жилое пространство собственноручно, нужен архитектор, который сделает рабочие чертежи на такую вот постройку.

Двухэтажный дом из кератерма 38 с битумной крышей. Без цоколя и гаража. Так как работаю в мебельном салоне - понимаю, что и где должно располагаться. При сильном желании можно и самой все сделать - но каждый должен заниматься своим делом. Потому прошу откликнуться архитектора с лицензией для выполнения конструктивного раздела, водоснабжения, канализации, отопления. Без внесения ненужных корректив в проект.

Очень жду предложений от понимающих и знающих мастеров своего дела с указанием стоимости работы.

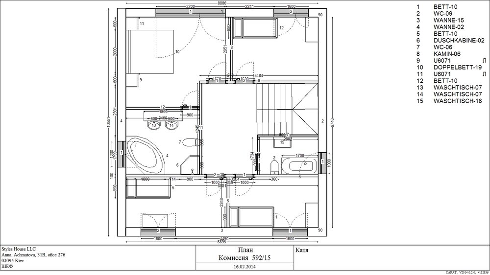
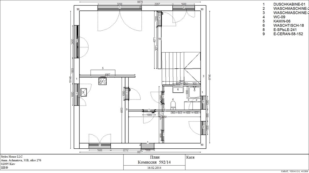
1839615141_2.thumb.JPG.9e271618e54210c85fa92cdbfad5518c.JPG

2008190326_.thumb.JPG.47a7b896b0bec55c229b8639ad11bbb3.JPG

653429435_.jpg.5209dc87b96d4d7643731761d4ab94be.jpg

592-12_PSV.thumb.JPG.95f520b7e5f82c8e0bfbf3414ba17ca5.JPG

592-13_PSV.thumb.JPG.bd691fd65d39c0ac52056bd23233a360.JPG

  • Лайк 1
Посилання на коментар
Поділитися на інших сайтах

Судя по штампу в чертеже, Вы работаете в Киеве, поэтому предполагаю, что и дом находится в Киеве или Киевской области
Посилання на коментар
Поділитися на інших сайтах

Ваше сообщение написано в стиле "Пионерской правды":

"Мы с одноклассниками решили полететь на Луну. Уже сделали корпус из качественной бочки и элюминатор из дна аквариума. Осталось только найти качественный двигатель и собрать рюкзак для продуктов".

Ваш проект - это проекция Вашего понимания задач стоящих перед архитектором. Точнее, полного его непонимания.

Я допускаю, что расстановка мебели - это важная стадия проектирования, а на Ваш взгля, судя по всему - венец архитектурной мысли:).

И Райт, и Растрели, наверное, всю жизнь мечтали добраться до таких вершин творчества, но все же пообщайтесь с архитекторами или просто для начала выставьте свое творение на обсуждение форумчан...

  • Лайк 2
Посилання на коментар
Поділитися на інших сайтах

Створіть акаунт або увійдіть у нього для коментування

Ви маєте бути користувачем, щоб залишити коментар

Створити акаунт

Зареєструйтеся для отримання акаунта. Це просто!

Зареєструвати акаунт

Увійти

Вже зареєстровані? Увійдіть тут.

Увійти зараз
×
×
  • Створити...