bisoffice Опубліковано: 25 березня 2014 Поділитись Опубліковано: 25 березня 2014 Доброго времени суток! Сразу прошу не пинать за, может быть, не конкретную формулировку тендера, но все же необходмы услуги электрика для разводки электричества по дому. Объект в К-Святошинском р-не, с. Дмитровка. Дом 145 м2 с мансардой. Стены - газоблок, перестенки - кирпич. Планы этажей с приблизительной расстановкой мебели во вложении. Интересует приблизительная стоимость работ + материалов. Конечно же ищу хорошее качество работы "занедорого" Отвечу на любые вопросы. Посилання на коментар Поділитися на інших сайтах More sharing options...
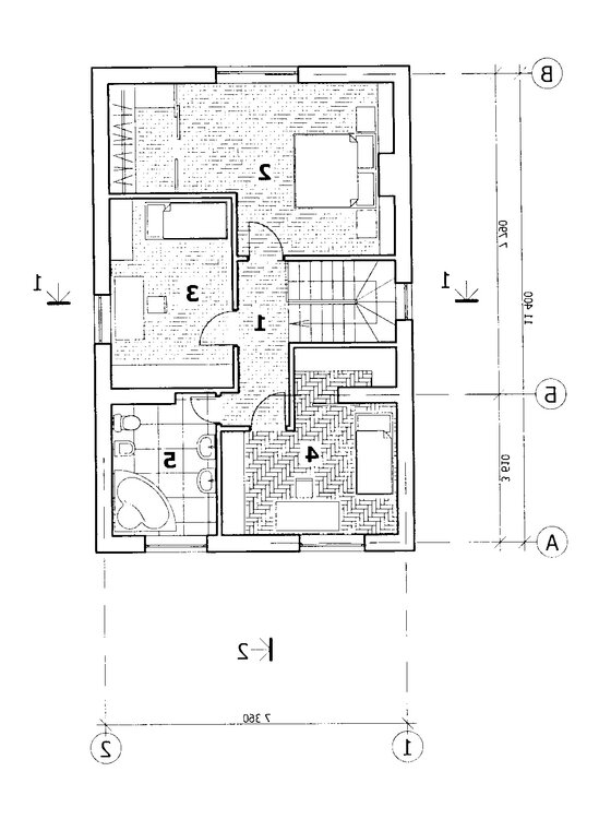
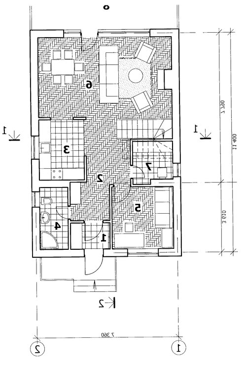
bisoffice Опубліковано: 26 березня 2014 Автор Поділитись Опубліковано: 26 березня 2014 Вот попробывал амматорски нарисовать точки на планеScan1.PDF Посилання на коментар Поділитися на інших сайтах More sharing options...
Konstruktor Опубліковано: 26 березня 2014 Поділитись Опубліковано: 26 березня 2014 Цены на работы можете посмототреть у меня в профиле. На вскидку, очень грубо метров 200 кабеля 3*2,5 и метров 200-250 3*1,5. Еще нужно считать гофру(за подвесным потолком), еще слаботочку( компьютер, ТВ, охранка). Заземление есть нет. Стены нужно будет штробить или нет, перекроеться слоем штукатурки? Посилання на коментар Поділитися на інших сайтах More sharing options...
Вадим электрик Опубліковано: 26 березня 2014 Поділитись Опубліковано: 26 березня 2014 400- 450 метров кабеля вроде как и маловато... 2 Посилання на коментар Поділитися на інших сайтах More sharing options...
Konstruktor Опубліковано: 27 березня 2014 Поділитись Опубліковано: 27 березня 2014 Чтобы понять мало или нет, нужно общаться с заказчиком. Понять разбивку на группы и тогда от этого плясать. Посилання на коментар Поділитися на інших сайтах More sharing options...
an_drejka11 Опубліковано: 27 березня 2014 Поділитись Опубліковано: 27 березня 2014 Якщо робити нормально- дві групи в кожне приміщення і три в ванних кімнатах,плюс вуличне освітлення,плюс керування вуличним освітленням, плюс ворота , хвіртка і домофон, то не знаю чи влізете в 1000 м проводда...... Без слаботочки....... Посилання на коментар Поділитися на інших сайтах More sharing options...
Вадим электрик Опубліковано: 28 березня 2014 Поділитись Опубліковано: 28 березня 2014 Примерно 10- 15 м./ м.кв. расход провода при таком способе монтажа. Посилання на коментар Поділитися на інших сайтах More sharing options...
Nikova Опубліковано: 16 квітня 2014 Поділитись Опубліковано: 16 квітня 2014 Цены на работы можете посмототреть у меня в профиле. На вскидку, очень грубо метров 200 кабеля 3*2,5 и метров 200-250 3*1,5. Еще нужно считать гофру(за подвесным потолком), еще слаботочку( компьютер, ТВ, охранка). Заземление есть нет. Стены нужно будет штробить или нет, перекроеться слоем штукатурки? Доброго времени суток. Ищу электрика г. Харьков. Нужна электрическая проводка в двух комнатной квартире.Стены бетон. Посилання на коментар Поділитися на інших сайтах More sharing options...
TarasOnEscort Опубліковано: 10 травня 2014 Поділитись Опубліковано: 10 травня 2014 Доброго времени суток. Ищу электрика г. Харьков. Нужна электрическая проводка в двух комнатной квартире.Стены бетон. Готов приехать сделать Посилання на коментар Поділитися на інших сайтах More sharing options...
Рекомендовані повідомлення
Створіть акаунт або увійдіть у нього для коментування
Ви маєте бути користувачем, щоб залишити коментар
Створити акаунт
Зареєструйтеся для отримання акаунта. Це просто!
Зареєструвати акаунтУвійти
Вже зареєстровані? Увійдіть тут.
Увійти зараз