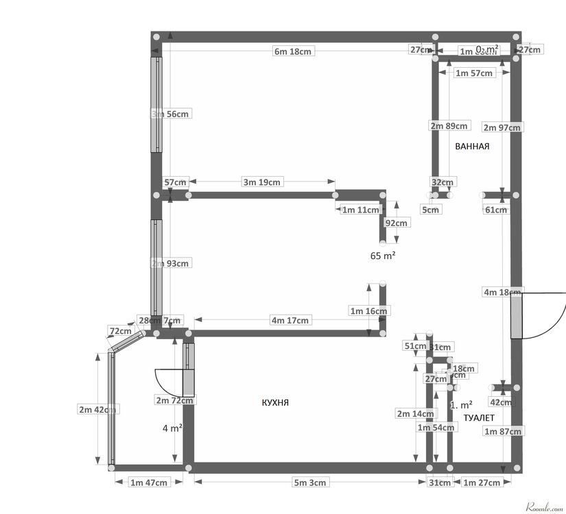
-Sergey- Опубліковано: 10 квітня 2014 Поділитись Опубліковано: 10 квітня 2014 Уважаемые форумчане! Помогите, пожалуйста, с идеями для перепланировки квартиры в новострое. Во вложении план квартиры: (1) с планировкой, предлагаемой застройщиком, и уже возведенными стенами, (2) без стен с отмеченными ж/б пилонами и сантехшахтами. По площадям: 1. маленькая комната - 13,5 м2 2. большая комната - 18,9 м2 3. кухня - 13.75 м2 4. холл - 9.5 м2 5. ванная комната - 4.4 м2 6. туалет - 1.94 м2 7. лоджия - 3.4 м2 (хотим оставить как есть) Большое спасибо всем откликнувшимся. Посилання на коментар Поділитися на інших сайтах More sharing options...
Юлия_дизайнер Опубліковано: 10 квітня 2014 Поділитись Опубліковано: 10 квітня 2014 Вы не написали, что хотите/ждете и почему не устраивает вполне удачная планировка двушки. Посилання на коментар Поділитися на інших сайтах More sharing options...
-Sergey- Опубліковано: 10 квітня 2014 Автор Поділитись Опубліковано: 10 квітня 2014 Вы не написали, что хотите/ждете и почему не устраивает вполне удачная планировка двушки. В данной планировке под спальню можно отвести малую комнату (14,5 м). Но в таком случае спальня получается сразу напротив входа в квартиру, что считаем не очень удобным. Если же менять местами, то 14,5 для гостинной будет маловато (при том, что спальня будет почти 19 м). Были идеи объединить кухню со смежной малой комнатой (заложив вход на кухню и демонтировав стену (либо ее часть) между комнатой и кухней) и сделать некую кухню-гостинную. С учетом заложенного входа можно было бы сделать П-образную кухонную зону. Однако есть ли смысл? Что посоветуете? Также не нравится узкая и длинная ванная комната. Квартира для семьи из 2-х человек с последующим пополнением. Посилання на коментар Поділитися на інших сайтах More sharing options...
Юлия_дизайнер Опубліковано: 10 квітня 2014 Поділитись Опубліковано: 10 квітня 2014 В данной планировке под спальню можно отвести малую комнату (14,5 м). Но в таком случае спальня получается сразу напротив входа в квартиру, что считаем не очень удобным. Если же менять местами, то 14,5 для гостинной будет маловато (при том, что спальня будет почти 19 м). Были идеи объединить кухню со смежной малой комнатой (заложив вход на кухню и демонтировав стену (либо ее часть) между комнатой и кухней) и сделать некую кухню-гостинную. С учетом заложенного входа можно было бы сделать П-образную кухонную зону. Однако есть ли смысл? Что посоветуете? Также не нравится узкая и длинная ванная комната. Квартира для семьи из 2-х человек с последующим пополнением. ИМХО, если квартира для двоих, с будущим пополнением, то нет смысла объединять кухню и гостиную, из большой комнаты сделать спальню, в будущем, пока ребенок маленький он будет первое время в комнате с родителями ( нужно больше места, соответственно, лучше для спальни большая комната), когда подрастет - с мал.комнаты сделать детскую. Для ребенка вполне достаточно и мал.комнаты, он всеравно занимает ВСЕ пространство квартиры и будет везде, а не в своей комнате. Можно подумать в спальне сделать небольшую гардеробную или вместительный шкаф, т.к. мест хранения в квартире всегда не хватает. Также, можно рассмотреть вариант, раздвижных дверей с кухни в гостиную ( мал.комнату), как временный вариант до момента, пока не понадобиться детская ( при этом оставить существующую дверь в мал.комнату с коридора). Что касается ванной, то здесь сложнее с законными вариантами перепланировки. Это так называемая "мокрая зона" и ее увеличение за счет жилых помещений запрещена. Т.е. ширины ванной добавить не выйдет. Здесь можно оптимально расставить сантех.приборы и визуально увеличить помещение по ширине. Посилання на коментар Поділитися на інших сайтах More sharing options...
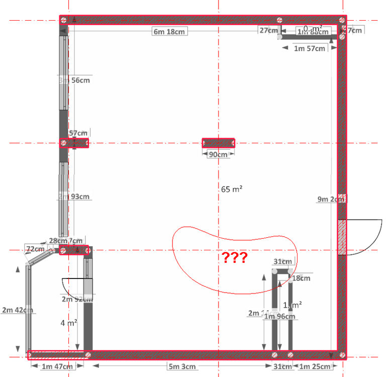
MaryAr Опубліковано: 10 квітня 2014 Поділитись Опубліковано: 10 квітня 2014 Я, быть может, ошибаюсь, но на второй схеме отсутствует ещё один ж/б пилон. Зона, в которой он должен быть, обведена. Возможно часть «хвостика» стены, ограждающей вентшахту, имеющаяся на первой схеме, и есть «недостающее звено», но скорее всего пилон должен быть на пересечении осей. Проверьте, пожалуйста, – от этого может зависеть дизайнерское решение. Посилання на коментар Поділитися на інших сайтах More sharing options...
-Sergey- Опубліковано: 10 квітня 2014 Автор Поділитись Опубліковано: 10 квітня 2014 (змінено) Я, быть может, ошибаюсь, но на второй схеме отсутствует ещё один ж/б пилон. Зона, в которой он должен быть, обведена. Возможно часть «хвостика» стены, ограждающей вентшахту, имеющаяся на первой схеме, и есть «недостающее звено», но скорее всего пилон должен быть на пересечении осей. Проверьте, пожалуйста, – от этого может зависеть дизайнерское решение. На пересечении пилона нет, "хвостик" от шахты тоже не пилон (пилон отсутсвует, возможно, из-за того, что ж/б является межквартирная стена на кухне почти во всю длину (от лоджии и до проведенной Вами вертикальной оси)). Изначально также интересовал вопрос о наличии пилона в указанном Вами месте. В остальных указанных местах пилоны (3 шт.) присутствуют. Змінено 10 квітня 2014 користувачем -Sergey- Посилання на коментар Поділитися на інших сайтах More sharing options...
MaryAr Опубліковано: 10 квітня 2014 Поділитись Опубліковано: 10 квітня 2014 Подскажите, в ванной комнате есть канализационный стояк d100мм для унитаза? Или по проекту унитаз с умывальником - в малом санузле, а в ванной комнате только ванная и умывальник? Посилання на коментар Поділитися на інших сайтах More sharing options...
-Sergey- Опубліковано: 11 квітня 2014 Автор Поділитись Опубліковано: 11 квітня 2014 Подскажите, в ванной комнате есть канализационный стояк d100мм для унитаза? Или по проекту унитаз с умывальником - в малом санузле, а в ванной комнате только ванная и умывальник? По проекту место для унитаза предусмотрено в малом санузле. Однако в ванной комнате канализационный стояк 100мм, к нему подведена труба 50мм. Но не ясно и пока нет возможности проверить, каким образом (через какое колено) 50-ка соединена со стояком, т.е. можно ли к стояку подвести трубу 100-ку либо только 50-ку. Посилання на коментар Поділитися на інших сайтах More sharing options...
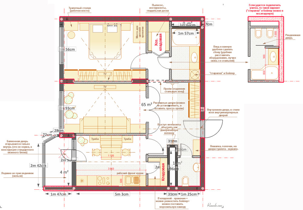
MaryAr Опубліковано: 11 квітня 2014 Поділитись Опубліковано: 11 квітня 2014 Вы напрасно считаете, что спальня должна занимать меньше места, чем гостиная. Двуспальная кровать и шкаф-купе самая габаритная мебель в квартире. Добавьте туда детскую кроватку, пеленальный столик, рабочее место – и Вы сразу передумаете переносить спальню в маленькую комнату. В проекте немного уменьшена площадь спальни и площадь кухни за счёт устройства двух кладовых (увеличение подсобной площади допускается действующими нормами). Новая планировка не будет считаться «самостроем», т.к. санузлы остались на проектном месте, лоджия не присоединена, стена между кухней и комнатой сохранена. Пояснения и рекомендации смотрите на чертеже. Надеюсь, мои советы Вам пригодятся. Если планируете делать ремонт, могу выполнить чертежи планов потолков, полов, развёрток стен, расположения электроточек и т.д. 1 Посилання на коментар Поділитися на інших сайтах More sharing options...
-Sergey- Опубліковано: 11 квітня 2014 Автор Поділитись Опубліковано: 11 квітня 2014 Вы напрасно считаете, что спальня должна занимать меньше места, чем гостиная. Двуспальная кровать и шкаф-купе самая габаритная мебель в квартире. Добавьте туда детскую кроватку, пеленальный столик, рабочее место – и Вы сразу передумаете переносить спальню в маленькую комнату. В проекте немного уменьшена площадь спальни и площадь кухни за счёт устройства двух кладовых (увеличение подсобной площади допускается действующими нормами). Новая планировка не будет считаться «самостроем», т.к. санузлы остались на проектном месте, лоджия не присоединена, стена между кухней и комнатой сохранена. Пояснения и рекомендации смотрите на чертеже. Надеюсь, мои советы Вам пригодятся. Если планируете делать ремонт, могу выполнить чертежи планов потолков, полов, развёрток стен, расположения электроточек и т.д. Большое спасибо за предложение!!! Будем изучать данный вариант. Посилання на коментар Поділитися на інших сайтах More sharing options...
Юлия_дизайнер Опубліковано: 12 квітня 2014 Поділитись Опубліковано: 12 квітня 2014 MaryAr, очень хороший вариант 1 Посилання на коментар Поділитися на інших сайтах More sharing options...
Рекомендовані повідомлення
Створіть акаунт або увійдіть у нього для коментування
Ви маєте бути користувачем, щоб залишити коментар
Створити акаунт
Зареєструйтеся для отримання акаунта. Це просто!
Зареєструвати акаунтУвійти
Вже зареєстровані? Увійдіть тут.
Увійти зараз