Перейти до публікації
Пошук в
  • Додатково...
Шукати результати, які містять...
Шукати результати в...

Нужен дизайн-проект 3х комнатной квартиры 66м

Kyriia1

Рекомендовані повідомлення

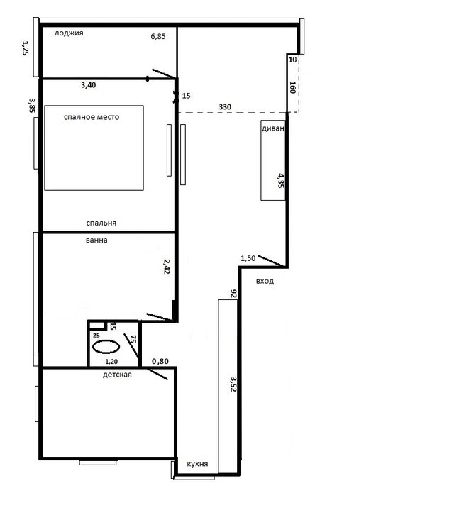
Добрый день, нужен толковый дизайнер,который помог бы нам оформить то,что мы имеем в то, что нам нужно.После того,ка собрали на первый взнос за квартиру,наконец-то собрали и на то,чтобы начать ремонт.Просьба всех неравнодушных откликнуться,и предложить свои варианты. Вобщем-то,чего хотим уже определились(насколько вообще можно определиться),то есть проект уже перепланирован,и мы даже имеем представление что где будет стоять. Нужно теперь понять как это будет выглядеть. Хотелось бы, чтобы проект был не какой попало,на пять-десять лет,как свадьба,раз и на всю жизнь,поэтому морально готовимся к тому, что красота потребует жертв...:sorry: и что возможно какие-то очень ключевые материалы или краеугольные камни дизайна поразят нас в самое уязвимое место - семейный бюджет. Но вообще,мы не цари и у нас не Хонка. Надеюсь мы найдем общий язык. Проект квартиры (уже перепланированой) прилагаю.

Подробности:квартира на 1м этаже,в доме живет собак и ребенок-аутист. Задавайте ваши вопросы и кидайте ваши предложения...

274747159_.thumb.jpg.0e728b3d965e10687444328efa583362.jpg

  • Лайк 1
Посилання на коментар
Поділитися на інших сайтах

  • 1 місяць потому...

Створіть акаунт або увійдіть у нього для коментування

Ви маєте бути користувачем, щоб залишити коментар

Створити акаунт

Зареєструйтеся для отримання акаунта. Це просто!

Зареєструвати акаунт

Увійти

Вже зареєстровані? Увійдіть тут.

Увійти зараз
×
×
  • Створити...