Перейти до публікації
Пошук в
  • Додатково...
Шукати результати, які містять...
Шукати результати в...

Делаю родителям вентиляцию. Прокомментируйте, пожалуйста

Scorpi0

Рекомендовані повідомлення

Приветствую, форумчане.

 

Год назад родители въехали в дом, построенный без проекта, кое-как.

Зима показала, что есть проблемы с вентиляцией и утеплением.

 

Что имеем:

  • Проблемы: на окнах жуткий конденсат, начал появляться грибок
  • Имеем широкие подоконники, препятствующие теплым потокам к окну
  • Отсутствие притока воздуха
  • Отсутствие вытяжной вентиляции. Вернее она как-бы есть, но совершенно не работает. В один горизонтальный вент. канал выведены кухонная вытяжка, вентилятор из ванной и вент. решетка из туалета.

 

В этом году будем делать вентиляцию, а на следующий год - наружное утепление.

 

Сейчас собираемся сделать:

  • установить решетки в широких подоконниках так, чтобы теплый воздух от радиаторов обдувал окна. Это уже сделано и действительно, конденсат почти "ушел".
  • Утеплить внутренние откосы
  • Врезать в пластиковые окна жилых помещений приточные клапаны
  • Врезать в двери вентиляционные решетки
  • Сделать нормальную принудительную вытяжную вентиляцию из кухни и санузлов. При этом отдельно оставить кухонную вытяжку в существующем вент. канале.

 

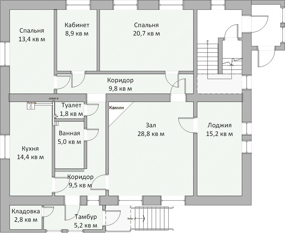
В первых двух вложениях планировка с текущей "вентиляцией".

В третьем и четвертом - планируемая вентиляция.

В пятом вложении таблица с расчетами сечения воздуховодов и мощности канальных вентиляторов.

 

Методику расчета взял отсюда.

Вентиляторы (2 шт.) - Вентс 125 ВКО

Воздуховоды пластиковые, диам. 125 мм - 2 шт. (из кухни и из санузлов).

 

Прошу специалистов прокомментировать правильность выбранных решений.

1632426669_-.thumb.png.05caa3bc3ac79fd7725b7d5b6732f827.png

1939361066_Image021.png.a44940ef81f3f30bd7d5702d3f0c3380.png

38762563_-.thumb.png.483b74a7454c97fdd81e04487bb609e4.png

2064224311_Image022.png.a85d3a2a213a9ea5193947a369517ed1.png

914816477_Image020.png.c678cb25e43def8e00047f4017cbc0de.png

Посилання на коментар
Поділитися на інших сайтах

Добрый день!

Свяжитесь по емеил a-vilpe@yandex.ru 0674010105 Алексей

Я вас проконсультирую, подскажу где приобрести, кто смонтирует и проблема с вентиляцией полностью исчезнет, ощутите на сколько приятно будет времяпровождения в данном доме!

Посилання на коментар
Поділитися на інших сайтах

Створіть акаунт або увійдіть у нього для коментування

Ви маєте бути користувачем, щоб залишити коментар

Створити акаунт

Зареєструйтеся для отримання акаунта. Це просто!

Зареєструвати акаунт

Увійти

Вже зареєстровані? Увійдіть тут.

Увійти зараз
×
×
  • Створити...