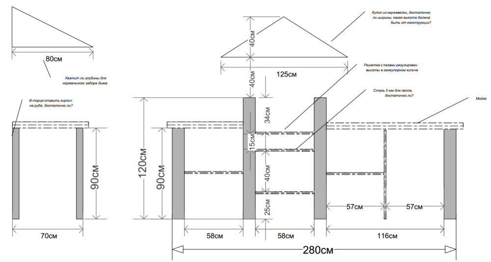
azeff Опубліковано: 10 червня 2014 Поділитись Опубліковано: 10 червня 2014 Картинку прилагаю. Хотелось бы услышать что не правильно или не учел. Вводные данные: 1. Стяжка под конструкцию есть, ширина фиксированная. 2. Есть остаток газоблока можно ли сделать низ из него? 3. Мангал будет с примыканием к стене гаража, нужно ли между огнеупорным кирпичем и и стеной например миноваты минимально дать, нужно ли? 4. Нормально ли подобраны размеры димоприемника и его высота над конструкцией? 5. Для пепла и для дров какую конструкцию сделать, есть лист сталь 5 мм, хватит ли, и на долго ли? 6. Из чего сделать столешню кроме как гранита, есть варианты подешевле? 7. Размеры топки как? Посилання на коментар Поділитися на інших сайтах More sharing options...
azeff Опубліковано: 10 червня 2014 Автор Поділитись Опубліковано: 10 червня 2014 Всё идеально? Посилання на коментар Поділитися на інших сайтах More sharing options...
Рекомендовані повідомлення
Створіть акаунт або увійдіть у нього для коментування
Ви маєте бути користувачем, щоб залишити коментар
Створити акаунт
Зареєструйтеся для отримання акаунта. Це просто!
Зареєструвати акаунтУвійти
Вже зареєстровані? Увійдіть тут.
Увійти зараз