Перейти до публікації
Пошук в
  • Додатково...
Шукати результати, які містять...
Шукати результати в...

Фундамент. Малютянка

SouthWest

Рекомендовані повідомлення

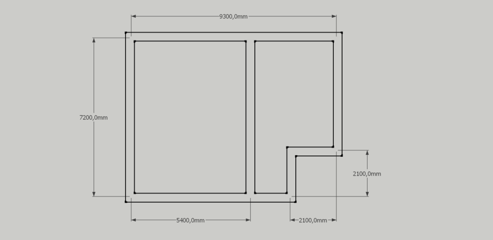
Планирую строительство фундамента на сентябрь месяц.

с Малютянка (К-Святош. р-н). На участке КУНГ, электричество и вода.

Ориентировочный чертеж фундамента на картинках. (Детальные чертежи и проект - присутствуют)

Нужны строители на такие виды работ:

- Выемка грунта ~57 м3. (почва в основном суглинок)

- Трамбовка щебень-песок 100 мм.

- Бетонная подготовка 100 мм.

- Монолитный фундамент (с миксера) с армированием 300 мм. (ширина 600...1200 мм. средняя ~800 мм) Арматура 12 и 6.

- Монтаж ФБС (2 слоя):

24.4.6 - 20 шт

12.4.6 - 16 шт

9.4.6 - 13 шт

- Гидроизоляция (обмазка) снаружи

- Утепление пенополистиролом снаружи (под вопросом)

- Обратная засыпка песком.

 

foundament.thumb.png.42a2d8eb463054de11fd40e174b57731.png

 

foundament2.thumb.png.f2be04217c5488cd2d2b424a2c8bee39.png

 

Заливка плиты пока не требуется (в зависимости от времени/погоды/финансов)

Готов рассмотреть любые предложения: с приблизетельной сметой и без. С материалами и без.

Просьба отвечать на электронную почту. Или прямо здесь.

Посилання на коментар
Поділитися на інших сайтах

К сожалению отдельно фундаментами не занимаемся, но можем начинать просчет дома из дерева - каркасный дом, дом из клееного бруса, сруб. Возможно я заинтерисую вас ценой и характеристиками дома.

 

www.sddu.com.ua/

Посилання на коментар
Поділитися на інших сайтах

Створіть акаунт або увійдіть у нього для коментування

Ви маєте бути користувачем, щоб залишити коментар

Створити акаунт

Зареєструйтеся для отримання акаунта. Це просто!

Зареєструвати акаунт

Увійти

Вже зареєстровані? Увійдіть тут.

Увійти зараз
×
×
  • Створити...