shvedmax Опубліковано: 28 липня 2014 Поділитись Опубліковано: 28 липня 2014 Добрый день,друзья.Долго читаю и учусь на форуме как надо строить дома.Думал создавать или нет тему,так как "писака" из меня никакой,решил таки попробовать ,а вдруг кому и помогу своими "каляками". И так выбрали мы с женой участок в прошлом году и залили фундамент. фундамент решили сделать столбчатый.Геология показала что надо рыть на полтора метра и если лить ленту слишком много бетона и денег(я тогда ещё не знал,что столбы сделать и выставить это ещё тот гемор) 2 Посилання на коментар Поділитися на інших сайтах More sharing options...
shvedmax Опубліковано: 28 липня 2014 Автор Поділитись Опубліковано: 28 липня 2014 Минное поле Посилання на коментар Поділитися на інших сайтах More sharing options...
shvedmax Опубліковано: 28 липня 2014 Автор Поділитись Опубліковано: 28 липня 2014 Столбы вот такие (ох и попили у меня они кровушки) Посилання на коментар Поділитися на інших сайтах More sharing options...
shvedmax Опубліковано: 28 липня 2014 Автор Поділитись Опубліковано: 28 липня 2014 Был куплен вибратор и процесс пошёл Посилання на коментар Поділитися на інших сайтах More sharing options...
shvedmax Опубліковано: 28 липня 2014 Автор Поділитись Опубліковано: 28 липня 2014 Ну и собственно проект на котором остановились Посилання на коментар Поділитися на інших сайтах More sharing options...
svettl Опубліковано: 28 липня 2014 Поділитись Опубліковано: 28 липня 2014 Ну и собственно проект на котором остановились Симпатичный апгрейд, со стартом Посилання на коментар Поділитися на інших сайтах More sharing options...
shvedmax Опубліковано: 28 липня 2014 Автор Поділитись Опубліковано: 28 липня 2014 сняли опалубку и вокруг дома заменили грунт на песок что бы зимой не "пучило" фундамент Посилання на коментар Поділитися на інших сайтах More sharing options...
shvedmax Опубліковано: 28 липня 2014 Автор Поділитись Опубліковано: 28 липня 2014 Симпатичный апгрейд, со стартом Спасибо, я за Вашими стройками тоже люблю наблюдать Посилання на коментар Поділитися на інших сайтах More sharing options...
svettl Опубліковано: 28 липня 2014 Поділитись Опубліковано: 28 липня 2014 Спасибо, я за Вашими стройками тоже люблю наблюдать ну скока там у меня тех строек (фраза с одесским акцентом:D) Посилання на коментар Поділитися на інших сайтах More sharing options...
shvedmax Опубліковано: 28 липня 2014 Автор Поділитись Опубліковано: 28 липня 2014 вязка арматуры Посилання на коментар Поділитися на інших сайтах More sharing options...
shvedmax Опубліковано: 28 липня 2014 Автор Поділитись Опубліковано: 28 липня 2014 И наконец то гости приехали Посилання на коментар Поділитися на інших сайтах More sharing options...
shvedmax Опубліковано: 28 липня 2014 Автор Поділитись Опубліковано: 28 липня 2014 Весной снял опалубку(все кто будут читать не надо лить в клеёнку лишняя трата денег + гемор к ней что то прилепить) Посилання на коментар Поділитися на інших сайтах More sharing options...
shvedmax Опубліковано: 28 липня 2014 Автор Поділитись Опубліковано: 28 липня 2014 Заказал маленький трактор он вынул весь плодородный грунт,потом засыпал щебня 20-40 высотой сантиметров 20 и наверх отсев с трамбовкой Посилання на коментар Поділитися на інших сайтах More sharing options...
shvedmax Опубліковано: 28 липня 2014 Автор Поділитись Опубліковано: 28 липня 2014 Соорудил главный объект на стройке,модернизирован,идёт вместе с душевой кабиной 3 Посилання на коментар Поділитися на інших сайтах More sharing options...
shvedmax Опубліковано: 28 липня 2014 Автор Поділитись Опубліковано: 28 липня 2014 Ну и для затравочки вот так мы должны выглядеть 3 Посилання на коментар Поділитися на інших сайтах More sharing options...
medovik Опубліковано: 28 липня 2014 Поділитись Опубліковано: 28 липня 2014 Думал создавать или нет тему,так как "писака" из меня никакой,решил таки попробовать ,а вдруг кому и помогу своими "каляками". Очень хорошо Вы пишите, Максим, чего это Вы прибедняетесь))). Поздравляю со стартом! С удовольствием буду следить за ходом Вашей строительной жизни! Внедрения всех Ваших мечт в жизнь! Добавлено через 2 минуты главный объект на стройке,модернизирован,идёт вместе с душевой кабиной Ничего себе так, со вкусом, даже сердечко романтично так смотрится Начало положено Посилання на коментар Поділитися на інших сайтах More sharing options...
shvedmax Опубліковано: 28 липня 2014 Автор Поділитись Опубліковано: 28 липня 2014 спасибо и ещё несколько видов 1 Посилання на коментар Поділитися на інших сайтах More sharing options...
medovik Опубліковано: 28 липня 2014 Поділитись Опубліковано: 28 липня 2014 А сколько квадратов ожидается? Он кажется таким большим Посилання на коментар Поділитися на інших сайтах More sharing options...
shvedmax Опубліковано: 28 липня 2014 Автор Поділитись Опубліковано: 28 липня 2014 Ожидается малюсенький бюджетный одноэтажник 146 кв\м Посилання на коментар Поділитися на інших сайтах More sharing options...
shvedmax Опубліковано: 29 липня 2014 Автор Поділитись Опубліковано: 29 липня 2014 А тем временем мы потихоньку подросли 5 Посилання на коментар Поділитися на інших сайтах More sharing options...
shvedmax Опубліковано: 29 липня 2014 Автор Поділитись Опубліковано: 29 липня 2014 с разных сторон 2 Посилання на коментар Поділитися на інших сайтах More sharing options...
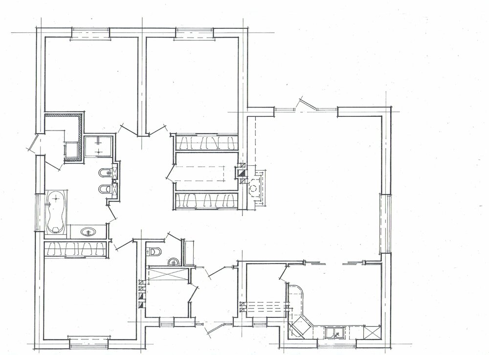
mvm1003 Опубліковано: 30 липня 2014 Поділитись Опубліковано: 30 липня 2014 А помещение, в которое вход из ванной и выход на улицу - это постирочная? Из-за нее аппендикс в спальне получается... Посилання на коментар Поділитися на інших сайтах More sharing options...
shvedmax Опубліковано: 30 липня 2014 Автор Поділитись Опубліковано: 30 липня 2014 домик прекрасен, но проем над входными дверьми я бы уменьшил до стандартного, дешевле будет потом двери вставлять Спасибо,что зашли.Виртуально знаю Ваш дом,наверное,так же как и Вы реально,в теме Вашей сижу невылазно.Касательно двери,как по мне,то полуторные двери с фрамугами очень красиво смотрится,дополняя фасад дома и добавляют больше света в помещение.Деньги и стройка вечная война.Как не старался ,но не смог обойти любимый всеми садовый инструмент-грабли.По проекту планировал перекрывать плитами,но потом выяснилось,что через коридор слева(там где ванная и комнаты),будет идти балка высотой с полметра и разделять помещение на две части пополам,то есть-попа,полная попа(извиняюсь),а смотреть на неё ну совсем не хочется,посоветовшись,решили лить монолит и эту балку вынести на чердак вот где реально дорого и ничего нельзя сделать Посилання на коментар Поділитися на інших сайтах More sharing options...
shvedmax Опубліковано: 30 липня 2014 Автор Поділитись Опубліковано: 30 липня 2014 А помещение, в которое вход из ванной и выход на улицу - это постирочная? Из-за нее аппендикс в спальне получается... Да это постирочная.Для этих дел сразу решили,что будет отдельное помещение,а то я как вывешу свои "паруса" сушиться ,то закрою всю красоту нашей будущей ванной комнаты.На сегодня планируется,что это будет кабинет=гостевая спальня там около 15кв.м так ,что не критично. Посилання на коментар Поділитися на інших сайтах More sharing options...
ЧП Ненашев А Б Опубліковано: 30 липня 2014 Поділитись Опубліковано: 30 липня 2014 домик прекрасен, но проем над входными дверьми я бы уменьшил до стандартного, дешевле будет потом двери вставлять Не уменьшайте - всю красоту испортите. Очень красивый вход в дом. 2 Посилання на коментар Поділитися на інших сайтах More sharing options...
Рекомендовані повідомлення
Створіть акаунт або увійдіть у нього для коментування
Ви маєте бути користувачем, щоб залишити коментар
Створити акаунт
Зареєструйтеся для отримання акаунта. Це просто!
Зареєструвати акаунтУвійти
Вже зареєстровані? Увійдіть тут.
Увійти зараз